Onder bod: Het Penseel 30, 8253 ZE Dronten

€ 465.000,- k.k. € 3.522,73/m2

Beschrijving

Nieuw te koop: Het Penseel 30 in Dronten. Wakker worden met uitzicht op een groen plantsoen, terwijl de kinderen voor de deur spelen en je de buurt écht nog kent, welkom aan het Penceel 30 in Dronten.

Deze jonge, tot in de puntjes verzorgde woning uit 2020 voelt direct als thuis. Hier komen comfort, sfeer en duurzaamheid moeiteloos samen. De woning wordt aangeboden met een bieden-vanaf prijs. De ligging is precies wat je als gezin zoekt. De speeltuin ligt letterlijk voor de deur, waardoor kinderen vrij en veilig kunnen spelen terwijl jij vanuit huis een oogje in het zeil houdt. Tegelijk woon je hier rustig, maar met alle voorzieningen binnen handbereik. Het centrum van Dronten, scholen, winkels en horeca liggen op korte afstand. En werk je in de Randstad? Met de trein sta je binnen ongeveer een uur in zowel Amsterdam Centraal als Amsterdam Zuid.

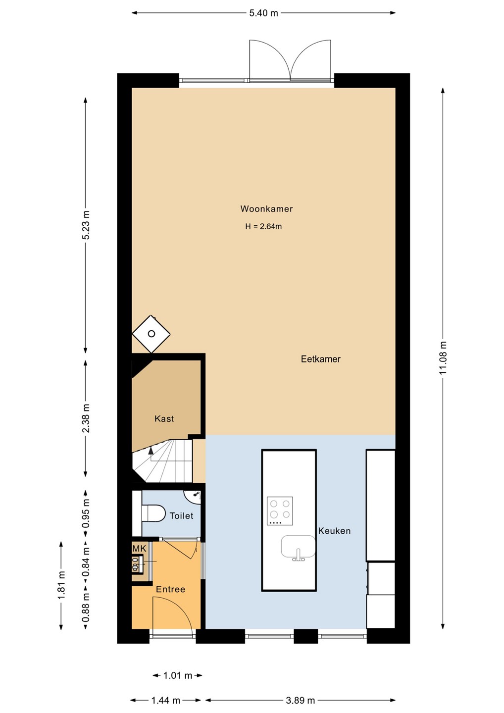
Begane grond:
Binnen word je verrast door de warme en stijlvolle afwerking. De woonkamer is een echte eyecatcher, met een sfeervolle houtkachel en een unieke vloer. In combinatie met de comfortabele vloerverwarming ontstaat hier een plek waar je het hele jaar door wilt zijn.

De luxe keuken vormt het hart van het huis. Met een ruim spoeleiland, een strak Dekton werkblad, Quooker en hoogwaardige inbouwapparatuur zoals een oven met stoomfunctie en een combi-oven/magnetron is dit de ideale plek voor kookliefhebbers en gezellige avonden met familie en vrienden.

Eerste verdieping:
Hier vind je drie ruime slaapkamers, allemaal voorzien van een eigen thermostaat voor optimaal comfort. De moderne badkamer straalt rust en luxe uit en is eveneens voorzien van vloerverwarming. De vernieuwde trap (2025) met levenslange garantie onderstreept het hoge afwerkingsniveau van de woning.

Tweede verdieping:
De tweede verdieping maakt het geheel verrassend compleet. Met een ruime voorzolder, een volwaardige vierde slaapkamer en een aparte wasruimte is dit de perfecte plek voor een thuiswerkplek, tienerkamer of logeerkamer.

Buitenruimte:
De achtertuin is een plek waar je direct wilt neerploffen. Hier geniet je van privacy en comfort, met een zonnescherm voor warme dagen. Achterin de tuin vind je een prachtige overkapping met geïsoleerd dak, houtkachel en zelfs een pizzaoven. Dit is dé plek voor lange zomeravonden, gezellige diners en knusse wintermomenten.

Extra pluspunten:
De woning is volledig voorbereid op de toekomst met energielabel A++, een waterontharder, 3-fase aansluiting en recent vernieuwd buitenschilderwerk (2024). Alle dakramen zijn voorzien van zonwering en horren, wat het wooncomfort compleet maakt. Hier koop je niet alleen een huis, maar een zorgeloze en duurzame woonbeleving.

Bijzonderheden:
- Strak afgewerkt en direct beschikbaar
- 4 slaapkamers van keurig formaat
- 11 zonnepanelen
- Sfeervolle overkapping in de achtertuin voor gezellige avondjes
- Bouwjaar 2020
- Heerlijke ligging!

Het Penseel 30 is zo’n woning waar alles klopt: de sfeer, de afwerking en de ligging. Een plek waar je direct wilt wonen en niet meer weg wilt. Plan snel een bezichtiging en ervaar het zelf. De woning is gelegen in een mandelig gebied met een actieve VvE, bijdrage circa € 56,- per maand.

Kenmerken

Overdracht
Prijs € 465.000,- k.k.
Servicekosten € 56,-
Status Onder bod
Aanvaarding In overleg
Aangeboden sinds Vrijdag 8 mei 2026
Laatste wijziging Donderdag 21 mei 2026
Bouw
Type object Eengezinswoning, woonhuis, tussenwoning
Soort bouw Bestaande bouw
Bouwjaar 2020
Isolatievormen Volledig geïsoleerd
Oppervlaktes en inhoud
Perceeloppervlakte 147 m²
Woonoppervlakte 132 m²
Inhoud 475 m³
Oppervlakte externe bergruimte 24 m²
Indeling
Aantal bouwlagen 3
Aantal kamers 5 (waarvan 4 slaapkamers)
Locatie
Ligging Aan rustige weg
In woonwijk
Tuin
Type Achtertuin
Hoofdtuin Ja
Oriëntering Zuiden
Heeft een achterom Ja
Staat Prachtig aangelegd
Tuin 2 - Type Achtertuin
Tuin 2 - Staat Prachtig aangelegd
Tuin 3 - Type Voortuin
Tuin 3 - Staat Prachtig aangelegd
Energieverbruik
Energielabel A++
CV ketel
CV ketel Intergas
Warmtebron Gas
Bouwjaar 2020
Combiketel Ja
Eigendom Eigendom
Uitrusting
Warm water CV-ketel
Verwarmingssysteem Centrale verwarming
Badkamervoorzieningen Dubbele wastafel
Inloopdouche
Toilet
Wastafelmeubel
Heeft een rookkanaal Ja
Glasvezelaansluiting aanwezig Ja
Tuin aanwezig Ja
Heeft schuur/berging Ja
Heeft zonwering Ja
Heeft zonnepanelen Ja
Heeft ventilatie Ja
Kadastrale gegevens
Kadastrale aanduiding Dronten B 3986
Perceeloppervlakte 147 m²
Omvang Geheel perceel
Eigendomsituatie Eigen grond
Neem contact met mij op
Sluiten

Recent bekeken