Nieuw in verkoop

Te koop: Veenmospad 8, 1314 MP Almere

€ 475.000,- k.k. € 4.130,43/m2

Beschrijving

Veenmospad 8 in Almere Stad | Tussenwoning met luxe afwerking, dakkapel, 4 slaapkamers én parkeren op eigen terrein! Staat Makelaars presenteert met trots de Veenmospad 8 aan middels een bieden-vanaf-prijs.

Zeg je instapklaar? Dan zeg je Veenmospad 8.
Welkom bij deze moderne en verzorgde woning in Almere Stad, een huis waar alles klopt. Van de strak gestucte wanden tot de vernieuwde keuken, van de stijlvolle PVC-vloer tot de recent geplaatste dakkapel: hier is het direct thuiskomen.
Met een energielabel A, dakisolatie en vernieuwde elektra woon je hier bovendien comfortabel én duurzaam.

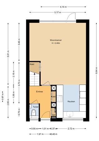
Begane grond
Je komt binnen via de hal met toegang tot het moderne toilet, de vernieuwde meterkast en de trapopgang naar boven. Vanuit de hal stap je de lichte woonkamer binnen, een fijne leefruimte met een visgraat PVC-vloer en gestucte wanden. Dankzij de grote ramen en de deur naar de tuin geniet je van veel lichtinval en een directe verbinding met buiten.

Aan de voorzijde van de woning bevindt zich de moderne keuken (2021). Deze is uitgevoerd met een composiet werkblad en voorzien van alle benodigde inbouwapparatuur. De keuken oogt fris, strak en ruim door de praktische u opstelling.

De woonkamer biedt daarnaast extra praktische details, zoals een trapkast met legplanken en verlaagde stopcontacten.

Eerste verdieping
De eerste verdieping beschikt over twee slaapkamers. De master bedroom aan de achterzijde is extra ruim, omdat hier oorspronkelijk twee slaapkamers zijn samengevoegd. Hierdoor is een prachtige kamer met inloopkast ontstaan, een echte eyecatcher! Deze kamer is bovendien voorzien van zonwering. Liever een extra slaapkamer? Dan is het eenvoudig om deze ruimte weer op te splitsen, zodat de woning in totaal vijf slaapkamers telt.

De tweede slaapkamer bevindt zich aan de voorzijde van de woning. Ook deze kamer is keurig afgewerkt en beschikt over een royale afmeting.

De badkamer is een heerlijke plek om volledig tot rust te komen. Deze is voorzien van een ligbad, een inloopdouche, een zwevend toilet en een dubbele wastafel met meubel.

Tweede verdieping
De tweede verdieping is in 2024 flink aangepakt. Dankzij de nieuwe dakkapel en dakisolatie is hier een volwaardige verdieping ontstaan met twee ruime slaapkamers, een aparte bureauruimte met internetaansluiting, wat deze verdieping perfect maakt voor thuiswerken of studeren. Ook is hier voldoende ruimte voor de wasmachine en de droger.

Tuin
De achtertuin is in 2022 volledig opnieuw aangelegd en ligt heerlijk op het zuiden, hier geniet je de hele dag van de zon! Dankzij het elektrisch bedienbare zonnescherm bepaal je zelf wanneer je in de zon of schaduw wilt zitten. De tuin is strak aangelegd met moderne bestrating, groen en een fijne zithoek.

Achter de tuin vind je een eigen parkeerplaats met carport, comfortabel, veilig en direct bereikbaar via de achterom. De hor in de achterdeur maakt het wooncomfort helemaal compleet.

Bijzonderheden:
- Instapklare tussenwoning met luxe afwerking
- Energielabel A
- Keuken uit 2021 met composiet blad
- Vernieuwde elektra en meterkast
- PVC-vloer en gestucte wanden
- Dakkapel en dakisolatie (2024)
- Tuin opnieuw aangelegd in 2022, gelegen op het zuiden
- Elektrisch zonnescherm en zonwering op 1e verdieping
- 4 slaapkamers (mogelijkheid tot 5)
- Master bedroom met inloopkast
- Parkeren onder carport én op eigen terrein achter de woning
- Rustige, kindvriendelijke straat
- 5 minuten fietsen naar centrum en strand Noorderplassen
- Mechanische ventilatie en internetaansluitingen op zolder en slaapkamer
- Oplevering: begin februari 2026

Kortom:
Veenmospad 8 is een verzorgde en energiezuinige woning waar je zó in kunt trekken. Perfect voor gezinnen of stellen die op zoek zijn naar ruimte, comfort en een fijne ligging dicht bij alle voorzieningen. Plan snel een bezichtiging en ontdek zelf waarom dit jouw nieuwe thuis kan worden!

Kenmerken

Overdracht
Prijs € 475.000,- k.k.
Status Nieuw in verkoop
Aanvaarding In overleg
Aangeboden sinds Vrijdag 31 oktober 2025
Bouw
Type object Eengezinswoning, woonhuis, tussenwoning
Soort bouw Bestaande bouw
Bouwjaar 1986
Dakbedekking Dakpannen
Type dak Zadeldak
Isolatievormen Volledig geïsoleerd
Oppervlaktes en inhoud
Perceeloppervlakte 140 m²
Woonoppervlakte 115 m²
Inhoud 389 m³
Oppervlakte externe bergruimte 6 m²
Indeling
Aantal bouwlagen 3
Aantal kamers 5 (waarvan 4 slaapkamers)
Locatie
Ligging Aan rustige weg
In woonwijk
Tuin
Type Achtertuin
Hoofdtuin Ja
Oriëntering Zuiden
Heeft een achterom Ja
Staat Prachtig aangelegd
Tuin 2 - Type Achtertuin
Tuin 2 - Staat Prachtig aangelegd
Tuin 3 - Type Voortuin
Tuin 3 - Staat Prachtig aangelegd
Energieverbruik
Energielabel A
Uitrusting
Aantal parkeerplaatsen 1
Verwarmingssysteem Stadsverwarming
Glasvezelaansluiting aanwezig Ja
Tuin aanwezig Ja
Heeft schuur/berging Ja
Heeft een dakraam Ja
Heeft ventilatie Ja
Kadastrale gegevens
Kadastrale aanduiding Almere O 2446
Perceeloppervlakte 140 m²
Omvang Geheel perceel
Eigendomsituatie Eigen grond
Neem contact met mij op
Sluiten

Recent bekeken