Nieuw in verkoop

Te koop: Schildmeerstraat 7, 1317 BE Almere

€ 450.000,- k.k. € 3.409,09/m2

Beschrijving

Staat Makelaars presenteert met trots: Schildmeerstraat 7 in Almere, aangeboden middels een bieden-vanaf-prijs.

Instapklare en uitgebouwde gezinswoning met energielabel A+, 4 slaapkamers, 15 zonnepanelen en een zonnige tuin op het zuidoosten! Bekijk de woningpresentatie voor een goede indruk van deze royale en perfect onderhouden woning, die dankzij de uitbouwen op zowel de begane grond als de eerste verdieping (2022) beschikt over maar liefst 132 m² woonoppervlak en een uitzonderlijk ruime indeling.

Welkom bij Schildmeerstraat 7
Deze verrassend ruime tussenwoning ligt in de populaire en kindvriendelijke wijk Waterwijk in Almere. U woont hier rustig, met volop groen in de omgeving én alle voorzieningen binnen handbereik. Scholen, winkels, openbaar vervoer en uitvalswegen richting de A6 en A27 bevinden zich op korte afstand.

Indeling
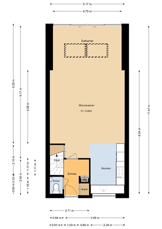
Begane grond
Via de entree komt u in de hal met toilet, meterkast en trapopgang naar de eerste verdieping.

De woonkamer is werkelijk een eyecatcher: dankzij de uitbouw is deze maar liefst circa 11,5 meter lang. Dit zorgt voor een heerlijke leefruimte met volop lichtinval en een prettige verbinding met de achterzijde van de woning.

Aan de voorzijde bevindt zich de moderne keuken (2018), welke volledig is uitgerust met diverse inbouwapparatuur. Daarnaast biedt de keuken veel werkruimte en praktische bergruimte – ideaal voor kookliefhebbers.

Eerste verdieping
Op de eerste verdieping bevinden zich drie ruime slaapkamers. Door de uitbouw aan de achterzijde zijn de slaapkamers aan de achterzijde uitgegroeid tot de grootste kamers van de woning en fungeren deze nu als volwaardige master bedrooms.

De moderne badkamer (2019) is stijlvol afgewerkt en voorzien van een ruime inloopdouche, toilet en een dubbele wastafel met meubel.

Tweede verdieping
De tweede verdieping beschikt over een vierde slaapkamer, mede dankzij het geplaatste dakkapel (2019). Hierdoor is een volwaardige en lichte ruimte ontstaan.

Daarnaast vindt u hier de wasruimte en extra bergruimte, wat deze verdieping zeer praktisch maakt.

Tuin & buitenruimte
De achtertuin is gelegen op het zonnige zuidoosten en is ondanks de uitbouwen nog steeds verrassend diep en volwaardig te noemen. Hierdoor is er meer dan voldoende ruimte om te genieten van het buitenleven.

De tuin beschikt over een overkapping, waardoor u ook op minder zonnige dagen comfortabel buiten kunt zitten. Door de gunstige ligging geniet u hier van veel zon in de ochtend en middag.

Direct achter de tuin ligt een groen plantsoen, wat zorgt voor extra privacy en een vrij gevoel – een zeldzame en fijne toevoeging.

Bijzonderheden
- Energielabel A+
- Woonoppervlak ca. 132 m²
- Uitbouw begane grond én eerste verdieping (2022)
- Zeer royale woonkamer van ca. 11,5 meter lang
- Moderne keuken (2018)
- Luxe badkamer (2019)
- Vier slaapkamers
- Dakkapel tweede verdieping (2019)
- Achtertuin op het zuidoosten, met overkapping
- Gelegen aan een groen plantsoen
- Voorzien van 15 zonnepanelen
- Gedeeltelijk kunststof kozijnen met HR++ beglazing
- Instapklare en uitstekend onderhouden woning
- Gewenste oplevering: eind juli 2026

De locatie
Schildmeerstraat 7 is gelegen in de gewilde wijk Waterwijk, een rustige en groene woonomgeving in Almere. In de directe omgeving vindt u scholen, winkels, sportvoorzieningen en openbaar vervoer. Ook de bereikbaarheid richting Amsterdam, Utrecht en Lelystad is uitstekend via de nabijgelegen uitvalswegen.

Maak kennis met deze ruime gezinswoning
Bent u op zoek naar een instapklare, uitgebouwde woning met veel ruimte, comfort en een uitstekende ligging?

Dan is Schildmeerstraat 7 absoluut een bezichtiging waard.

Neem vandaag nog contact op met Staat Makelaars voor een afspraak – wij laten u deze woning graag zien!

Kenmerken

Overdracht
Prijs € 450.000,- k.k.
Status Nieuw in verkoop
Aanvaarding In overleg
Aangeboden sinds Maandag 18 mei 2026
Bouw
Type object Eengezinswoning, woonhuis, tussenwoning
Soort bouw Bestaande bouw
Bouwjaar 1983
Dakbedekking Dakpannen
Type dak Zadeldak
Isolatievormen Dubbel glas
Volledig geïsoleerd
Oppervlaktes en inhoud
Perceeloppervlakte 140 m²
Woonoppervlakte 132 m²
Inhoud 425 m³
Oppervlakte externe bergruimte 7 m²
Indeling
Aantal bouwlagen 3
Aantal kamers 5 (waarvan 4 slaapkamers)
Locatie
Ligging Aan rustige weg
In woonwijk
Tuin
Type Achtertuin
Hoofdtuin Ja
Oriëntering Zuidoost
Heeft een achterom Ja
Staat Goed onderhouden
Tuin 2 - Type Achtertuin
Tuin 2 - Staat Goed onderhouden
Tuin 3 - Type Voortuin
Tuin 3 - Staat Goed onderhouden
Energieverbruik
Energielabel A+
Uitrusting
Verwarmingssysteem Stadsverwarming
Badkamervoorzieningen Dubbele wastafel
Inloopdouche
Toilet
Wastafelmeubel
Glasvezelaansluiting aanwezig Ja
Tuin aanwezig Ja
Heeft schuur/berging Ja
Heeft een schuifpui Ja
Heeft zonnepanelen Ja
Heeft ventilatie Ja
Kadastrale gegevens
Kadastrale aanduiding Almere O 5927
Perceeloppervlakte 140 m²
Omvang Geheel perceel
Eigendomsituatie Eigen grond
Neem contact met mij op
Sluiten

Recent bekeken