Verkocht: Sambastraat 67, 1326 NT Almere

Beschrijving

Staat Makelaars biedt aan: Sambastraat 67 in Almere, middels een keurige bieden-vanaf-prijs. Bekijk de woningvideo om een perfecte indruk te krijgen van de woning.

In de geliefde en kindvriendelijke Danswijk staat deze goed onderhouden eengezinswoning met een diepe tuin op het zuiden. De woning is instapklaar, heeft een energielabel A en beschikt over een moderne keuken en badkamer uit 2021. Met twee (voorheen drie) ruime slaapkamers en een grote zolderverdieping is dit de ideale woning voor starters én gezinnen.

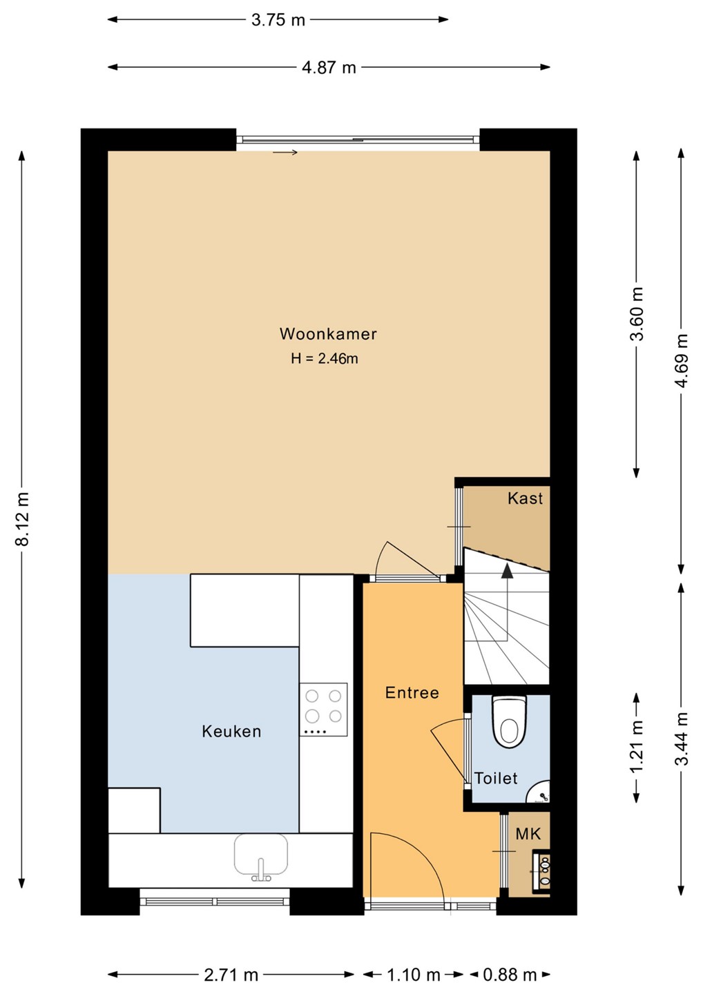
Begane grond:
Bij aankomst valt meteen op hoe netjes de woning is onderhouden. In de hal vind je een modern toilet, de meterkast en de trapopgang naar boven. De tuingerichte woonkamer is heerlijk licht dankzij de grote schuifpui over de volle breedte. Hierdoor ontstaat er een fijne verbinding met de zonnige achtertuin. De praktische trapkast biedt extra bergruimte en maakt de begane grond compleet.

De keuken aan de voorzijde is in 2021 geplaatst en verkeert in uitstekende staat. Deze moderne U-keuken is uitgerust met alle denkbare inbouwapparatuur zoals een Quooker, inductiekookplaat, combi-oven, koel-/vriescombinatie en vaatwasser. De keuken heeft veel werkruimte en is voorzien van een gezellig barretje, perfect voor een kop koffie of een snelle maaltijd. Dankzij de doordachte opstelling is koken hier echt een plezier.

Eerste verdieping:
Op de eerste verdieping bevinden zich twee ruime slaapkamers. De slaapkamer aan de achterzijde bestond voorheen uit twee aparte kamers en biedt daardoor nu opvallend veel ruimte. Indien gewenst is deze eenvoudig weer terug te brengen naar de oorspronkelijke indeling met drie slaapkamers. De hele verdieping is voorzien van een nette laminaatvloer.

De badkamer is eveneens vernieuwd in 2021 en is modern en compleet uitgevoerd met een zitbad, douche, wastafel met meubel en een zwevend toilet. Een stijlvolle en comfortabele ruimte waar je helemaal tot rust komt.

Tweede verdieping:
De open zolder is royaal en multifunctioneel. Deze ruimte kan eenvoudig worden omgebouwd tot een derde/vierde slaapkamer, thuiskantoor of hobbyruimte. De aansluiting voor wasmachine en droger bevinden zich ook op deze verdieping. Het dakraam zorgt voor voldoende daglicht.

Tuin:
De achtertuin is een absolute troef van deze woning. Dankzij de ligging op het zuiden en het diepe formaat is dit een heerlijke plek om te ontspannen. De tuin is netjes aangelegd en voorzien van een terras, groen en een vrijstaande berging. Via de achterom is de tuin ook goed bereikbaar. Op warme dagen biedt het zonnescherm extra comfort.

De omgeving:
Danswijk is een rustige en groene wijk met volop voorzieningen in de buurt. Denk aan scholen, kinderopvang, sportvelden, supermarkten en recreatie bij de Hoge Vaart. De bereikbaarheid is uitstekend: met het openbaar vervoer ben je zo in Almere Centrum en via de A6 en A27 ben je binnen no time in Amsterdam of Utrecht.

Bijzonderheden:
- Energielabel A
- Moderne keuken (2021) met bar en volledige inbouwapparatuur
- Luxe badkamer uit 2021
- Twee grote slaapkamers (voorheen drie)
- Ruime zolder met mogelijkheden voor extra slaapkamer
- Diepe en zonnige tuin op het zuiden
- Gelegen in een kindvriendelijke wijk
- Nabij scholen, winkels, openbaar vervoer en uitvalswegen

Wil jij wonen in een instapklare woning op een toplocatie in Almere?
Neem dan snel contact met ons op voor een bezichtiging van Sambastraat 67!

Kenmerken

Overdracht
Prijs € 425.000,- k.k.
Status Verkocht
Aanvaarding In overleg
Aangeboden sinds Maandag 18 augustus 2025
Bouw
Type object Eengezinswoning, woonhuis, tussenwoning
Soort bouw Bestaande bouw
Bouwjaar 1997
Dakbedekking Dakpannen
Type dak Tentdak
Isolatievormen Volledig geïsoleerd
Oppervlaktes en inhoud
Perceeloppervlakte 124 m²
Woonoppervlakte 97 m²
Inhoud 332 m³
Oppervlakte externe bergruimte 7 m²
Indeling
Aantal bouwlagen 3
Aantal kamers 4 (waarvan 3 slaapkamers)
Tuin
Type Achtertuin
Hoofdtuin Ja
Oriëntering Zuiden
Heeft een achterom Ja
Staat Prachtig aangelegd
Tuin 2 - Type Achtertuin
Tuin 2 - Staat Prachtig aangelegd
Tuin 3 - Type Voortuin
Tuin 3 - Staat Prachtig aangelegd
Energieverbruik
Energielabel A
Uitrusting
Verwarmingssysteem Stadsverwarming
Badkamervoorzieningen Douche
Toilet
Wastafel
Wastafelmeubel
Zitbad
Glasvezelaansluiting aanwezig Ja
Tuin aanwezig Ja
Heeft schuur/berging Ja
Heeft een schuifpui Ja
Heeft ventilatie Ja
Kadastrale gegevens
Kadastrale aanduiding Almere U 3722
Perceeloppervlakte 124 m²
Omvang Geheel perceel
Eigendomsituatie Eigen grond
Sluiten

Recent bekeken