Nieuw in verkoop

Te koop: Roer 72, 1319 CM Almere

€ 395.000,- k.k. € 4.759,04/m2

Beschrijving

Staat Makelaars presenteert met trots: Roer 72. Een bijzonder nette en smaakvol afgewerkte eindwoning met een speelse woonindeling, veel licht, volop buitenruimte en een uitstekende energieprestatie (energielabel A). Bekijk de woningvideo om een perfecte indruk te krijgen van deze fijne woning en haar groene ligging. De woning wordt aangeboden middels een bieden-vanaf-prijs.

Ben je op zoek naar een woning die tot in de puntjes verzorgd is en waar je zó in kunt trekken? Dan is Roer 72 absoluut het bekijken waard. De woning is keurig afgewerkt en met oog voor detail ingericht, wat zorgt voor een prettige en verzorgde uitstraling. Met twee slaapkamers verdeeld over twee verdiepingen, een royale woonkeuken op de begane grond die ook perfect kan functioneren als woonkamer met keuken, én een zonnige gezamenlijke achtertuin op het zuiden, biedt deze woning volop wooncomfort.

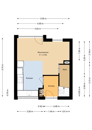
Begane grond:
Via de entree kom je binnen op de begane grond, waar zich de ruime woonkeuken bevindt. Deze ruimte wordt momenteel gebruikt als woonkeuken, maar leent zich uitstekend voor een combinatie van wonen en koken. De nette afwerking, prettige lichtinval en royale afmetingen maken dit tot een fijne leefruimte met volop mogelijkheden voor een eethoek én zithoek.

Eerste verdieping:
Op de eerste verdieping bevindt zich een royale slaapkamer, die momenteel in gebruik is als woonkamer. Ook deze ruimte is keurig afgewerkt en veelzijdig in te delen. Aangrenzend bevindt zich een praktische inloopkast met aansluitingen voor wasmachine en droger. Tevens vind je op deze verdieping het eerste toilet.

Tweede verdieping:
De bovenste verdieping beschikt over een tweede, volwaardige slaapkamer en de badkamer. De badkamer is netjes afgewerkt en voorzien van een inloopdouche en een tweede toilet. Een fijne, complete ruimte waar functionaliteit en comfort samenkomen.

Buitenruimte:
De gezamenlijke achtertuin is gelegen op het zonnige zuiden en biedt veel ruimte, groen en een prettige sfeer. Op de eigen vlonder bestaat de mogelijkheid om een schutting te plaatsen voor extra privacy. Daarnaast beschikt de woning aan de voorzijde over een ruime voortuin, die eveneens privacy biedt en uitnodigt om heerlijk van het buitenleven te genieten.

De omgeving:
Noorderplassen West is een geliefde en waterrijke woonwijk in Almere, bekend om de moderne architectuur, ruime opzet en groene omgeving. Op loopafstand liggen de Noorderplassen, waar je heerlijk kunt wandelen, fietsen of ontspannen aan het water. De wijk is rustig en kindvriendelijk, met diverse speelplekken en voorzieningen in de buurt.

Voor dagelijkse boodschappen en overige faciliteiten ben je snel bij winkelcentrum Noorderplassen of in het centrum van Almere-Stad. Ook scholen, kinderopvang en sportvoorzieningen zijn goed bereikbaar. Met een uitstekende verbinding naar de A6 en het openbaar vervoer woon je hier rustig, maar met alle gemakken van de stad binnen handbereik.

Pluspunten van de woning
- Energielabel A
- Twee slaapkamers verdeeld over twee verdiepingen
- Flexibele indeling met meerdere woonmogelijkheden
- Royale woonkeuken op de begane grond
- Inloopkast met wasmachine- en drogeraansluiting
- Badkamer met inloopdouche
- Zonnige gezamenlijke achtertuin op het zuiden
- Ruime voortuin met veel privacy
- De woning maakt onderdeel uit van een VvE en wordt verkocht als appartementsrecht
- VvE bijdrage: € 107,50 p/mnd

Kortom:
Roer 72 is een verrassend ingedeelde, energiezuinige eindwoning met veel licht, ruimte en buitenmogelijkheden. Een ideale woning voor starters, stellen of iedereen die op zoek is naar iets anders dan standaard. Zie jij jezelf hier al wonen? Plan dan snel een bezichtiging en laat je verrassen door de mogelijkheden!

Kenmerken

Overdracht
Prijs € 395.000,- k.k.
Status Nieuw in verkoop
Aanvaarding In overleg
Aangeboden sinds Vrijdag 27 februari 2026
Bouw
Type object Eengezinswoning, woonhuis, eind woning
Soort bouw Bestaande bouw
Bouwjaar 2008
Dakbedekking Bitumen
Dakpannen
Type dak Samengesteld
Isolatievormen Volledig geïsoleerd
Oppervlaktes en inhoud
Woonoppervlakte 83 m²
Inhoud 316 m³
Oppervlakte externe bergruimte 22 m²
Indeling
Aantal bouwlagen 3
Aantal kamers 3 (waarvan 2 slaapkamers)
Locatie
Ligging Aan rustige weg
In woonwijk
Vrij uitzicht
Tuin
Type Achtertuin
Hoofdtuin Ja
Oriëntering Zuiden
Heeft een achterom Ja
Staat Normaal
Tuin 2 - Type Achtertuin
Tuin 2 - Staat Normaal
Tuin 3 - Type Voortuin
Tuin 3 - Staat Normaal
Energieverbruik
Energielabel A
Uitrusting
Verwarmingssysteem Stadsverwarming
Badkamervoorzieningen Inloopdouche
Toilet
Wastafel
Wastafelmeubel
Glasvezelaansluiting aanwezig Ja
Tuin aanwezig Ja
Heeft schuur/berging Ja
Heeft ventilatie Ja
Kadastrale gegevens
Kadastrale aanduiding Almere E 609
Omvang Appartementsrecht of complex
Eigendomsituatie Eigen grond
Indexnummer 45
Neem contact met mij op
Sluiten

Recent bekeken