Te koop: Laurence Olivierstraat 23a, 1325 KC Almere

€ 295.000,- k.k. € 5.363,64/m2

Beschrijving

Laurence Olivierstraat 23A in Filmwijk. Een ideaal appartement op een perfecte locatie! Deze woning wordt u aangeboden middels een bieden-vanaf-prijs.

Wonen op een plek waar rust en stadse dynamiek samenkomen? Dan zit je hier precies goed. Dit fijne appartement is gelegen in de populaire Filmwijk, een ruim opgezette en groene woonomgeving in Almere. De ligging ten opzichte van het stadscentrum is werkelijk uitstekend. Binnen enkele minuten sta je midden in Almere Stad, het bruisende hart met een breed aanbod aan winkels, horeca, terrassen, het NS-station en diverse culturele voorzieningen. Hier woon je rustig, maar altijd verbonden met alles wat de stad te bieden heeft.

Ook de bereikbaarheid is ideaal. Via de nabijgelegen uitvalswegen ben je snel onderweg richting onder andere Amsterdam. Of je nu dagelijks forenst of regelmatig de stad opzoekt, de verbindingen zijn snel en comfortabel. Op korte afstand bevindt zich bovendien de Cinemadreef met onder andere Kinepolis Almere en diverse horecagelegenheden. Dit zorgt ervoor dat je letterlijk en figuurlijk verbonden bent met het stadse leven, terwijl je thuis geniet van een prettige en rustige woonomgeving.

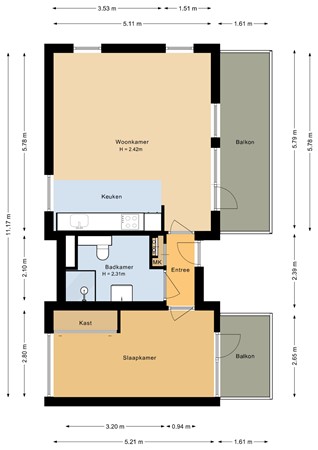
Via de centrale entree op de begane grond bereik je het appartement op de eerste verdieping. Bij binnenkomst kom je in de hal die toegang biedt tot de slaapkamer, de badkamer en de woonkamer. Zodra je de woonkamer binnenstapt, ervaar je direct de ruimte en vooral het prachtige licht. Dit betreft een hoekappartement met grote raampartijen aan de voor-, zij- en achterkant, waardoor het daglicht rijkelijk naar binnen stroomt. De lichtinval geeft de woning een open en aangename sfeer en biedt bovendien een leuk uitzicht de wijk in.

De woonkamer is ruim opgezet en afgewerkt met een nette laminaatvloer. Er is volop ruimte voor een royale eettafel, een comfortabele zithoek en een groot tv-meubel, zonder dat het geheel aan ruimte inboet. Vanuit de woonkamer geven twee deuren toegang tot het dakterras aan de straatzijde. Dit dakterras is gunstig gelegen op het oosten, waardoor je hier in de ochtend heerlijk van de zon kunt genieten. Een fijne plek om de dag rustig te beginnen met een kop koffie.

De open keuken sluit mooi aan op de woonkamer en is praktisch ingericht. Deze is voorzien van diverse inbouwapparatuur, waaronder een kookplaat, een vaatwasser (2026), een combi-oven met magnetron functie, een ingebouwde koelkast en een recirculatie afzuigkap. Daarnaast is er veel kastruimte aanwezig, waardoor de keuken niet alleen ruim oogt, maar ook bijzonder functioneel is.

Badkamer:
De badkamer is in 2024 geplaatst en modern afgewerkt. De ruimte is netjes betegeld en beschikt over een inloopdouche, een toilet, een wasmeubel, designradiator en een aansluiting voor de wasmachine. Alles is verzorgd en direct te gebruiken.

Slaapkamer met dakterras:
De slaapkamer is royaal van formaat en biedt voldoende ruimte voor een groot bed en kastenwand. Wat deze kamer extra bijzonder maakt, is de directe toegang tot een tweede dakterras. Dit geeft een gevoel van vrijheid en comfort; ’s ochtends stap je zo vanuit je bed naar buiten om even te genieten van de frisse lucht en de rust van de wijk.

Laurence Olivierstraat 23A is een licht, ruim en comfortabel appartement op een toplocatie in de Filmwijk. De combinatie van de uitstekende bereikbaarheid, de nabijheid van het centrum en de fijne indeling met twee dakterrassen maakt dit een bijzonder aantrekkelijke woning.

Graag plannen wij een bezichtiging met je in, zodat je zelf de ruimte, het licht en de ligging kunt ervaren.

Kenmerken

Overdracht
Prijs € 295.000,- k.k.
Servicekosten € 158,-
Aanvaarding In overleg
Aangeboden sinds Donderdag 30 april 2026
Laatste wijziging Vrijdag 15 mei 2026
Bouw
Type object Appartement, bovenwoning
Woonlaag 1e woonlaag
Soort bouw Bestaande bouw
Bouwjaar 1991
Isolatievormen Dubbel glas
Oppervlaktes en inhoud
Woonoppervlakte 55 m²
Inhoud 174 m³
Oppervlakte gebouwgebonden buitenruimte 14 m²
Indeling
Aantal bouwlagen 1
Aantal kamers 2 (waarvan 1 slaapkamer)
Locatie
Ligging Aan rustige weg
In woonwijk
Energieverbruik
Energielabel B
Uitrusting
Verwarmingssysteem Stadsverwarming
Badkamervoorzieningen Inloopdouche
Toilet
Wastafelmeubel
Heeft een balkon Ja
Glasvezelaansluiting aanwezig Ja
Vereniging van Eigenaren
Ingeschreven bij de KvK Ja
Jaarlijkse vergadering Ja
Periodieke bijdrage Ja
Reservefonds Ja
Onderhoudsverwachting Ja
Opstal verzekering Ja
Kadastrale gegevens
Kadastrale aanduiding Almere U 4120
Omvang Appartementsrecht of complex
Eigendomsituatie Eigen grond
Indexnummer 1
Neem contact met mij op
Sluiten

Recent bekeken