Onder bod: Heerenbeekplantsoen 6, 1333 XG Almere

€ 425.000,- k.k. € 4.166,67/m2

Beschrijving

Ruime, instapklare gezinswoning met zonnige tuin aan het plantsoen!
Staat Makelaars presenteert met trots: Heerenbeekplantsoen 6 in Almere Buiten. Deze aantrekkelijke eengezinswoning wordt aangeboden met een bieden-vanaf-prijs.
Wil je alvast een goede indruk krijgen van de woning én de omgeving? Bekijk dan zeker de woningvideo voor het perfecte sfeerbeeld!

Deze ruime en keurig onderhouden gezinswoning met energielabel A is gelegen op een rustige, groene locatie in de geliefde Landgoederenbuurt. De woning beschikt over een moderne keuken, een stijlvolle badkamer, drie ruime slaapkamers (vier mogelijk) en een zonnige tuin met overkapping – een heerlijke plek voor het hele gezin!

Indeling
Begane grond
Via de entree bereik je de hal met meterkast en een modern afgewerkt toilet (2022). De lichte woonkamer heeft een fijne indeling, veel natuurlijk licht en een directe verbinding met de achtertuin.
Aan de voorzijde van de woning ligt de moderne keuken (2021) in praktische U-opstelling. Hier kook je met uitzicht op het groene plantsoen. De keuken is uitgerust met diverse inbouwapparatuur en biedt volop werk- en opbergruimte.

De verzorgde tuin op het noordwesten is volledig aangelegd in stijl met het interieur. Dankzij het ruime terras en de gezellige overkapping is dit een ideale plek om te ontspannen of te genieten van lange zomeravonden.

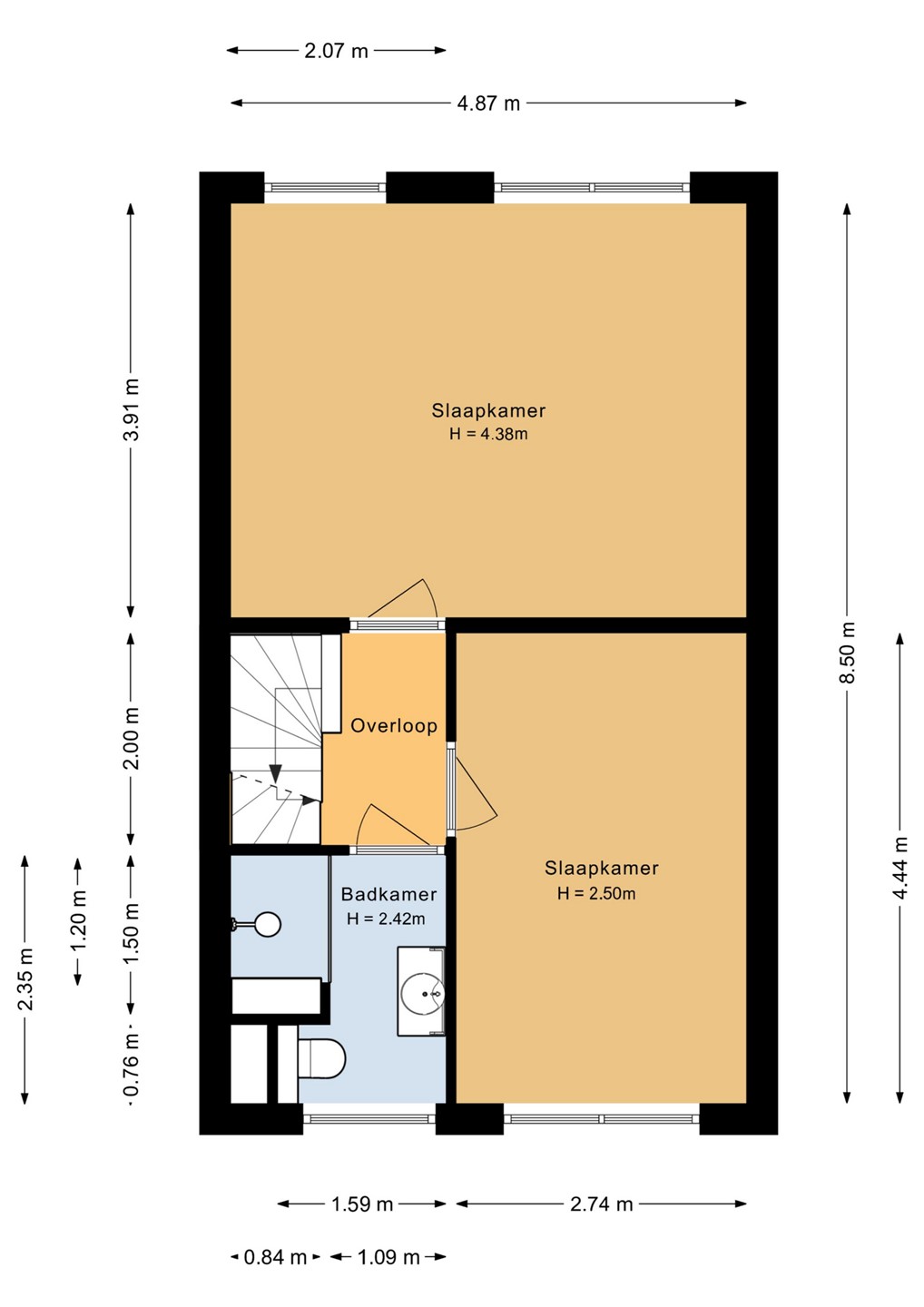
Eerste verdieping
Hier bevinden zich twee royale slaapkamers, waarvan de slaapkamer aan de achterzijde eenvoudig is op te splitsen in twee aparte kamers. Een vierde slaapkamer is dus eenvoudig te realiseren.
De badkamer (2022) is modern uitgevoerd en beschikt over een ruime inloopdouche, tweede toilet, dubbele wastafel met meubel en een raam voor natuurlijk daglicht. Alles is strak afgewerkt en perfect onderhouden.

Tweede verdieping
Op de zolderverdieping bevindt zich een ruime overloop met aansluitingen voor wasmachine en droger. Daarnaast is hier een derde volwaardige slaapkamer, ideaal als werk-, hobby- of logeerkamer.

Bijzonderheden
- Energielabel A
- Moderne keuken (2021) met uitzicht op het plantsoen
- Badkamer en toilet vernieuwd in 2022
- Drie slaapkamers, vierde eenvoudig mogelijk
- Zonnige tuin met overkapping op het noordwesten
- Cv-ketel in huur €35,98 per maand
- Gelegen aan een rustig en groen plantsoen
- Schilderwerk volledig in 2025 gedaan
- Gewenste overdracht: maart 2026

Centrale ligging
Heerenbeekplantsoen 6 ligt in de rustige en kindvriendelijke Landgoederenbuurt van Almere Buiten. Op korte afstand vind je het winkelcentrum, NS-station, scholen, kinderopvang en natuurgebieden zoals de Oostvaardersplassen. Ook uitvalswegen als de A6 en A27 zijn snel bereikbaar.
Ben je op zoek naar een instapklare woning met ruimte, comfort en een fijne tuin? Maak dan snel een afspraak voor een bezichtiging. Je bent van harte welkom!

Kenmerken

Overdracht
Prijs € 425.000,- k.k.
Status Onder bod
Aanvaarding In overleg
Aangeboden sinds Donderdag 9 oktober 2025
Bouw
Type object Eengezinswoning, woonhuis, tussenwoning
Soort bouw Bestaande bouw
Bouwjaar 1991
Dakbedekking Dakpannen
Type dak Zadeldak
Isolatievormen Volledig geïsoleerd
Oppervlaktes en inhoud
Perceeloppervlakte 124 m²
Woonoppervlakte 102 m²
Inhoud 356 m³
Oppervlakte externe bergruimte 6 m²
Indeling
Aantal bouwlagen 3
Aantal kamers 4 (waarvan 3 slaapkamers)
Locatie
Ligging Aan rustige weg
In woonwijk
Tuin
Type Achtertuin
Hoofdtuin Ja
Oriëntering Noord west
Heeft een achterom Ja
Staat Prachtig aangelegd
Tuin 2 - Type Achtertuin
Tuin 2 - Staat Prachtig aangelegd
Tuin 3 - Type Voortuin
Tuin 3 - Staat Prachtig aangelegd
Energieverbruik
Energielabel A
CV ketel
CV ketel Intergas compact HRE
Warmtebron Gas
Bouwjaar 2021
Combiketel Ja
Eigendom Huur
Uitrusting
Warm water CV-ketel
Verwarmingssysteem Centrale verwarming
Badkamervoorzieningen Inloopdouche
Toilet
Wastafel
Wastafelmeubel
Glasvezelaansluiting aanwezig Ja
Tuin aanwezig Ja
Heeft rolluiken Ja
Heeft schuur/berging Ja
Heeft ventilatie Ja
Kadastrale gegevens
Kadastrale aanduiding Almere N 2336
Perceeloppervlakte 124 m²
Omvang Geheel perceel
Eigendomsituatie Eigen grond
Neem contact met mij op
Sluiten

Recent bekeken