Onder bod: Gipskruidweg 186, 1313 CX Almere

€ 445.000,- k.k. € 3.771,19/m2

Beschrijving

Gipskruidweg 186 in Almere, een comfortabele woning met 4 slaapkamers, kunststof kozijnen en fijne ligging. Daarnaast een heerlijke speelveldje direct achter de tuin! Deze woning wordt u aangeboden middels een bieden-vanaf-prijs.

Welkom bij deze verzorgde eengezinswoning in de kindvriendelijke kruidenwijk. Hier woon je rustig en groen, maar toch met alle voorzieningen op korte afstand. Winkels, scholen, sportfaciliteiten en openbaar vervoer zijn allemaal snel te bereiken. Bovendien ligt de woning ideaal ten opzichte van uitvalswegen richting Amsterdam, Lelystad en Utrecht.

Wat dit huis extra bijzonder maakt, is de ligging aan de achterzijde: direct achter de tuin vind je een fijn speelveldje waar kinderen veilig kunnen spelen, terwijl jij vanaf je overkapping een oogje in het zeil houdt. Een plek die meteen zorgt voor een extra stukje wooncomfort en plezier voor het hele gezin.

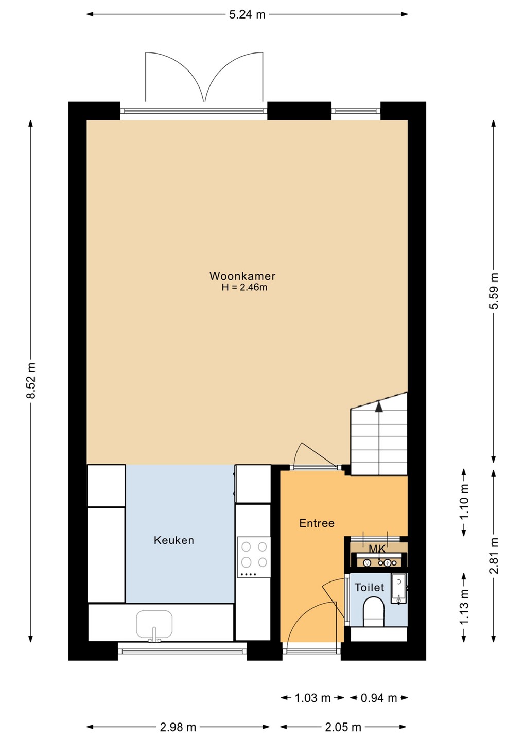
Begane grond:
Je komt binnen in de hal met toegang tot het toilet, de trapopgang naar de eerste verdieping en de woonkamer.

De woonkamer voelt ruim aan doordat de trapkast is weggehaald. Grote kunststof kozijnen (2022) en de kunststof dubbele openslaande deuren zorgen voor veel licht. De begane grond is afgewerkt met een nette tegelvloer inclusief vloerverwarming. Extra pluspunt is de airco die zowel kan koelen als verwarmen.

De keuken is aan de voorzijde gelegen en deze is voorzien van moderne inbouwapparatuur zoals een oven, magnetron (2020), vaatwasser (2023), inductiekookplaat en een afzuigkap (2023). Daarnaast bezit de keuken over voldoende opberg- en kastruimte.

Eerste verdieping:
Op de eerste verdieping bevinden zich drie slaapkamers: één aan de voorzijde en twee aan de achterzijde. Alle kozijnen zijn uitgevoerd in kunststof (2022). De badkamer is uitgevoerd in rustige tinten en beschikt over een douche, wastafelmeubel en toilet. Een heerlijke ruime verdieping die elk gezinslid voorziet van een eigen plekje.

Tweede verdieping:
De zolderverdieping is verrassend ruim en ingericht als riante vierde slaapkamer met veel lichtinval dankzij de kunststof raamkozijnen. Ook hier vind je een airco die kan koelen en verwarmen. Daarnaast is er volop bergruimte, slim weggewerkt achter knieschotten en in een keurige ingebouwde kast bevind zich de wasmachine en droger opstelling.

De eerste en tweede verdieping zijn afgewerkt met laminaatvloeren.

Buitenruimte:
De achtertuin is onderhoudsvriendelijk aangelegd met een keurige tegel en een overkapping voorzien van verlichting. Achterin de tuin staat een stenen berging met kunststof deur. Via de achterom loop je zo het speelveldje achter de woning op, ideaal voor kinderen om buiten te spelen of voor een gezellige buurtbarbecue. De tuin is gelegen op het noordwesten, waardoor je hier in de middag en avond heerlijk kunt genieten van de zon.

Pluspunten van deze woning:
- Kunststof kozijnen (2022)
- Kunststof schuifpui achterzijde
- Vloerverwarming op de begane grond
- Airco in woonkamer en tweede verdieping (koelen én verwarmen)
- Keuken met diverse vernieuwde apparatuur (vaatwasser 2023, afzuigkap 2023, magnetron 2020)
- Ruime zolder met veel licht en bergruimte
- Achtertuin met overkapping, berging en achterom
- Speelveldje direct achter de woning
- Gelegen in kindvriendelijke en centrale woonwijk

Kortom: Gipskruidweg 186 biedt je niet alleen een fijne, instapklare woning maar ook een fantastische ligging met een speelveld direct achter de tuin. Ideaal voor gezinnen die comfort, ruimte én een kindvriendelijke omgeving zoeken.

Kenmerken

Overdracht
Prijs € 445.000,- k.k.
Status Onder bod
Aanvaarding In overleg
Aangeboden sinds Woensdag 15 oktober 2025
Bouw
Type object Eengezinswoning, woonhuis, tussenwoning
Soort bouw Bestaande bouw
Bouwjaar 1989
Isolatievormen Dubbel glas
Oppervlaktes en inhoud
Perceeloppervlakte 119 m²
Woonoppervlakte 118 m²
Inhoud 401 m³
Oppervlakte externe bergruimte 7 m²
Indeling
Aantal bouwlagen 3
Aantal kamers 5 (waarvan 3 slaapkamers)
Locatie
Ligging In woonwijk
Tuin
Type Achtertuin
Hoofdtuin Ja
Oriëntering Noord west
Heeft een achterom Ja
Staat Goed onderhouden
Tuin 2 - Type Achtertuin
Tuin 2 - Staat Goed onderhouden
Energieverbruik
Energielabel A
Uitrusting
Verwarmingssysteem Stadsverwarming
Badkamervoorzieningen Douche
Toilet
Wastafelmeubel
Heeft airco Ja
Heeft een alarm Ja
Glasvezelaansluiting aanwezig Ja
Tuin aanwezig Ja
Heeft schuur/berging Ja
Heeft ventilatie Ja
Kadastrale gegevens
Kadastrale aanduiding Almere O 3727
Perceeloppervlakte 119 m²
Omvang Geheel perceel
Eigendomsituatie Eigen grond
Neem contact met mij op
Sluiten

Recent bekeken