Nieuw in verkoop

Te koop: Bergmolenstraat 9, 1333 AA Almere

€ 385.000,- k.k. € 3.701,92/m2

Beschrijving

Staat Makelaar biedt aan: Bergmolenstraat 9 in Almere-Buiten – een verzorgde tussenwoning met 4 slaapkamers, keurige afwerking en een zonnige tuin op het zuidwesten!

Op zoek naar een fijne gezinswoning in een rustige, groene en kindvriendelijke buurt van Almere-Buiten? Dan is deze verzorgde woning aan de Bergmolenstraat 9 precies wat u zoekt. Met een lichte woonkamer, nette keuken, vier slaapkamers, keurige badkamer en een zonnige tuin met speelse indeling is dit huis helemaal klaar voor nieuwe bewoners. De woning beschikt bovendien over energielabel A en 8 zonnepanelen, wat bijdraagt aan lagere energiekosten en een duurzame leefomgeving.

De omgeving
De woning ligt in de populaire en rustige Molenbuurt, een wijk die bekendstaat om de ruime opzet, het vele groen en de nabijheid van de natuur van de Oostvaardersplassen en het Bosrijk. Hier kunt u heerlijk wandelen, fietsen en genieten van rust en ruimte.

Voor gezinnen is de ligging ideaal: diverse basisscholen, middelbare scholen, kinderopvang, sportfaciliteiten en speeltuinen liggen op korte afstand. Winkelcentrum DoeMere en het centrum van Almere-Buiten bevinden zich op fietsafstand voor uw dagelijkse boodschappen, winkels en horeca.

Ook de bereikbaarheid is uitstekend. Binnen enkele minuten fietsen staat u op NS-station Almere-Buiten, met snelle verbindingen richting Almere-Centrum, Amsterdam en Lelystad. Met de auto bereikt u via de A6 en A27 eenvoudig steden zoals Amsterdam, Utrecht en ’t Gooi.

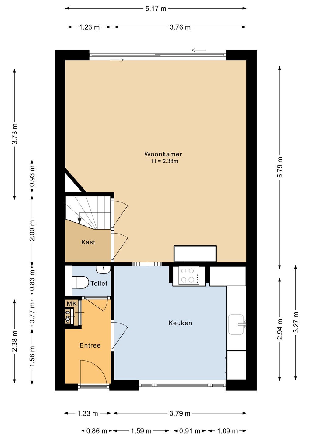
Begane grond
U komt binnen in de hal met toegang tot de meterkast en het toilet. Aan de voorzijde vindt u de keuken, netjes uitgevoerd en voorzien van diverse apparatuur en voldoende opbergruimte. De lichte woonkamer bevindt zich aan de achterzijde en biedt door de brede schuifpui een prettige lichtinval en een mooi uitzicht op de zonnige tuin. De woonkamer is daarnaast voorzien van airconditioning, wat zorgt voor een aangenaam binnenklimaat het hele jaar door. Vanuit de woonkamer bereikt u de trapopgang naar de eerste verdieping.

De tuin is gelegen op het zuidwesten en heeft een speels split level ontwerp, wat zorgt voor een sfeervolle en praktische indeling. Hier geniet u in alle rust van de middag- en avondzon.

Eerste verdieping
Op de eerste verdieping vindt u drie slaapkamers, waarvan twee aan de voorzijde en één aan de achterzijde. Daarnaast is er een keurige badkamer met ligbad, douche, toilet en een wastafelmeubel.

Tweede verdieping
De tweede verdieping biedt een ruime zolderkamer met dakramen die zorgen voor veel lichtinval. Hier bevindt zich ook de wasmachineaansluiting. Deze verdieping is ideaal als vierde slaapkamer, werkruimte of hobbykamer.

Bijzonderheden
- Energielabel A
- 8 zonnepanelen
- Verzorgde eengezinswoning met 4 slaapkamers
- Woonoppervlakte ca. 105 m²
- Airconditioning in de woonkamer en master bedroom
- Tuin op het zuidwesten met speels split-level ontwerp
- Keurige badkamer met ligbad, douche, toilet en wastafelmeubel
- Rustige, groene en kindvriendelijke woonomgeving
- Nabij scholen, winkels, sportfaciliteiten en natuur
- Goede aansluiting richting Almere, Amsterdam en Utrecht

Wilt u deze fijne en centraal gelegen woning zelf ervaren? Plan dan snel een bezichtiging en laat u verrassen door de ruimte en de mooie ligging!

Kenmerken

Overdracht
Prijs € 385.000,- k.k.
Status Nieuw in verkoop
Aanvaarding In overleg
Aangeboden sinds Donderdag 20 november 2025
Bouw
Type object Eengezinswoning, woonhuis, tussenwoning
Soort bouw Bestaande bouw
Bouwjaar 1984
Dakbedekking Dakpannen
Type dak Zadeldak
Oppervlaktes en inhoud
Perceeloppervlakte 116 m²
Woonoppervlakte 104 m²
Inhoud 354 m³
Oppervlakte externe bergruimte 7 m²
Indeling
Aantal bouwlagen 3
Aantal kamers 5 (waarvan 4 slaapkamers)
Tuin
Type Achtertuin
Hoofdtuin Ja
Oriëntering Zuid-west
Heeft een achterom Ja
Staat Prachtig aangelegd
Tuin 2 - Type Achtertuin
Tuin 2 - Staat Prachtig aangelegd
Tuin 3 - Type Voortuin
Tuin 3 - Staat Prachtig aangelegd
Energieverbruik
Energielabel A
CV ketel
CV ketel Vaillant - ecotec plus
Warmtebron Gas
Bouwjaar 2013
Eigendom Eigendom
Uitrusting
Warm water CV-ketel
Verwarmingssysteem Centrale verwarming
Badkamervoorzieningen Douche
Ligbad
Toilet
Wastafel
Wastafelmeubel
Glasvezelaansluiting aanwezig Ja
Tuin aanwezig Ja
Heeft schuur/berging Ja
Heeft een schuifpui Ja
Heeft zonnecollectoren Ja
Heeft ventilatie Ja
Kadastrale gegevens
Kadastrale aanduiding Almere M 1764
Perceeloppervlakte 116 m²
Omvang Geheel perceel
Eigendomsituatie Eigen grond
Neem contact met mij op
Sluiten

Recent bekeken