Nieuw in verkoop

Te koop: Benny Goodmanstraat 5, 1311 PT Almere

€ 695.000,- k.k. € 3.657,89/m2

Beschrijving

Staat Makelaars biedt aan: Benny Goodmanstraat 5, een royale hoekwoning met luxe afwerking, speelse indeling en een zonnige tuin op het zuidwesten. De Benny Goodmanstraat 5 wordt aangeboden middels een bieden-vanaf prijs.

Op zoek naar een ruime en instapklare gezinswoning waar comfort, kwaliteit en flexibiliteit samenkomen? Dan is Benny Goodmanstraat 5 absoluut een woning die je gezien moet hebben. Dankzij de grote uitbouw, het betrekken van de garage bij de woning en een slaapkamer op de begane grond is dit een ideale woning voor nu én de toekomst. De begane grond is voorzien van een echte houten visgraatvloer, een sfeervolle woonkamer met open haard, een aparte eetkamer met lichtkoepel en een royale woonkeuken met hoogwaardige inbouwapparatuur. Met in totaal vier slaapkamers, energielabel A, parkeermogelijkheden op eigen terrein voor twee auto’s en een zonnige tuin op het zuidwesten is dit wonen op bijzonder hoog niveau.

De omgeving:
De woning is gelegen in een rustige en kindvriendelijke woonwijk in Muziekwijk, Almere Stad. Hier woon je met alle voorzieningen binnen handbereik. Scholen, kinderopvang, sportclubs en winkelcentrum Muziekwijk bevinden zich op korte afstand. De wijk staat bekend om zijn centrale ligging: station Muziekwijk is binnen enkele minuten bereikbaar en met de auto rijd je zo naar de A6 en de uitvalswegen richting Amsterdam, 't Gooi en Lelystad. Daarnaast liggen natuur, water en recreatiemogelijkheden vlakbij, waardoor deze locatie zowel praktisch als prettig is.

Begane grond:
Via de voortuin betreed je de ruime hal. Deze hal is indrukwekkend door de royale opzet en de prachtige handgemaakte designtrap, een echt statement in de ruimte. Vanuit de hal heb je toegang tot het toilet, de eerste slaapkamer, de woonkamer en de trapopgang naar boven.

De woonkamer is ruim en sfeervol. Dankzij grote raampartijen en de open haard voelt deze ruimte direct warm en uitnodigend. De afwerking is verzorgd en neutraal, waardoor je de ruimte gemakkelijk naar eigen smaak kunt inrichten.

Aan de voorzijde bevindt zich een ruime kantoorkamer, bereikbaar via dubbele deuren vanuit de woonkamer. Indien gewenst kan een toegang vanuit de hal worden gecreëerd, waardoor deze kamer volledige privacy krijgt en kan functioneren als slaapkamer op de begane grond. Ideaal voor logees, thuiswerken of gelijkvloers wonen.

Grenzend aan de woonkamer bevindt zich de aparte eetkamer. De lichtkoepel in het plafond zorgt voor bijzonder veel daglicht, waardoor dit een heerlijke plek is om te tafelen of samen te komen.

De royale woonkeuken is ontstaan door de grote uitbouw en het betrekken van de oorspronkelijke garage. Dit heeft geleid tot een heerlijke ruimte met volop werk- en kastruimte. De keuken is voorzien van een stijlvol stenen werkblad en hoogwaardige inbouwapparatuur, waaronder een Boretti dubbele oven, een inductiekookplaat, een koelkast, vriezer en een vaatwasser. De opstelling voelt luxe, licht en praktisch, waardoor zowel de hobbykok als het grote gezin hier perfect uit de voeten kan.

Grenzend aan de keuken bevindt zich de bijkeuken. Hier vind je de aansluitingen voor de wasmachine en droger en extra opbergruimte. Deze ruimte is niet alleen handig voor voorraad en huishoudelijke spullen.

De begane grond is volledig afgewerkt met een echte houten visgraatvloer en keurig gestucte wanden, wat zorgt voor een luxe en warme uitstraling die in de hele verdieping voelbaar is.

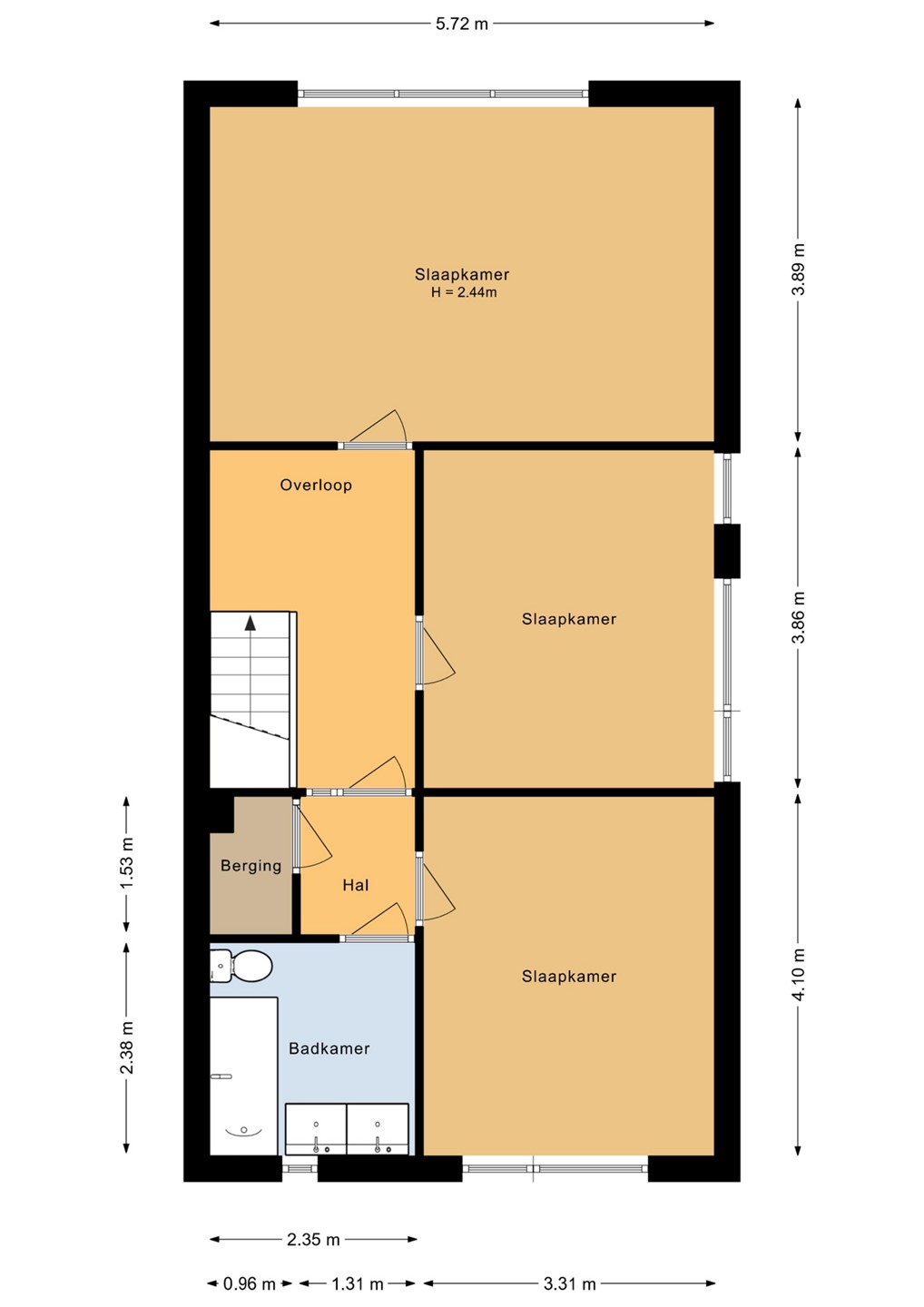
Eerste verdieping:
De eerste verdieping biedt een ruime overloop die toegang geeft tot drie volwaardige slaapkamers en een extra bergruimte. De slaapkamer aan de achterzijde is de master bedroom en valt op door zijn indrukwekkende grootte. Deze kamer is zó ruim dat hij eenvoudig kan worden opgesplitst in twee afzonderlijke slaapkamers, waardoor de woning nóg flexibeler wordt. De overige twee slaapkamers zijn eveneens prettig van formaat en geschikt als kinder-, werk- of logeerkamer.

De badkamer is netjes afgewerkt en voorzien van een dubbele wastafel, toilet en een ligbad met douche. De aanwezigheid van een extra berging op de verdieping, met een tweede wasmachine- en drogeraansluiting, maakt deze verdieping bijzonder praktisch in gebruik.

Het perceel en de tuin:
De woning staat op een mooi perceel en beschikt over een verzorgde tuin op het zuidwesten. Dankzij de hoekligging biedt de tuin veel privacy en meerdere knusse zitplekken om op elk moment van de dag van de zon te kunnen genieten. De tuin is bereikbaar via de zijkant van de woning, via twee openslaande deuren aan de kopse kant én via een achterom. Een heerlijke plek om te ontspannen, te tuinieren of met vrienden te borrelen.

Aan de voorzijde is ruimte om twee auto’s op eigen terrein te parkeren, waardoor je altijd verzekerd bent van een plek direct bij de woning.

Bijzonderheden woning:
- Energielabel A
- Woonoppervlak ca. 190 m²
- Hoekwoning met royale tuin op het zuidwesten
- Kantoorkamer op de begane grond
- Drie slaapkamers op de eerste verdieping
- Mogelijkheid tot extra kamer(s)
- Royale woonkeuken met luxe apparatuur
- Bijkeuken met wasruimte
- Sfeervolle woonkamer met open haard
- Lichtkoepel in de eetkamer
- Handgemaakte designtrap
- Oplevering: kan zo spoedig mogelijk

Kortom:
Benny Goodmanstraat 5 is een bijzonder ruime en luxe afgewerkte hoekwoning met een speelse indeling, vier slaapkamers, een royale woonkeuken en een zonnige tuin. Dankzij de combinatie van gelijkvloers wonen, hoogwaardige afwerking, parkeergelegenheid op eigen terrein en de centrale ligging in Muziekwijk is dit een woning die perfect is voor een breed publiek.

Wil je deze royale woning met eigen ogen ervaren? Maak dan snel een afspraak voor een bezichtiging, wij laten je dit unieke huis graag zien!

Kenmerken

Overdracht
Prijs € 695.000,- k.k.
Status Nieuw in verkoop
Aanvaarding In overleg
Aangeboden sinds Maandag 17 november 2025
Bouw
Type object Eengezinswoning, woonhuis, hoekwoning
Soort bouw Bestaande bouw
Bouwjaar 1990
Dakbedekking Bitumen
Type dak Platdak
Isolatievormen Dubbel glas
Oppervlaktes en inhoud
Perceeloppervlakte 296 m²
Woonoppervlakte 190 m²
Inhoud 647 m³
Oppervlakte externe bergruimte 18 m²
Indeling
Aantal bouwlagen 2
Aantal kamers 5 (waarvan 4 slaapkamers)
Locatie
Ligging Aan rustige weg
In woonwijk
Tuin
Type Achtertuin
Hoofdtuin Ja
Oriëntering Zuid-west
Heeft een achterom Ja
Staat Prachtig aangelegd
Tuin 2 - Type Achtertuin
Tuin 2 - Staat Prachtig aangelegd
Tuin 3 - Type Voortuin
Tuin 3 - Staat Prachtig aangelegd
Tuin 4 - Type Zijtuin
Tuin 4 - Staat Prachtig aangelegd
Energieverbruik
Energielabel A
Uitrusting
Aantal parkeerplaatsen 2
Verwarmingssysteem Stadsverwarming
Badkamervoorzieningen Douche
Dubbele wastafel
Ligbad
Toilet
Glasvezelaansluiting aanwezig Ja
Tuin aanwezig Ja
Heeft schuur/berging Ja
Kadastrale gegevens
Kadastrale aanduiding Almere Q 557
Perceeloppervlakte 296 m²
Omvang Geheel perceel
Eigendomsituatie Eigen grond
Neem contact met mij op
Sluiten

Recent bekeken