Te koop: Aprilstraat 5, 1335 BH Almere

€ 460.000,- k.k. € 3.865,55/m2

Beschrijving

Instapklaar wooncomfort met stijl en ruimte aan de Aprilstraat 5 in Almere. Staat Makelaars biedt deze woning aan middels een keurige bieden-vanaf-prijs.

Wonen aan de Aprilstraat 5 betekent comfort, ruimte en direct genieten. Deze tot in de puntjes afgewerkte eengezinswoning is helemaal instapklaar en voorzien van een splinternieuwe keuken en badkamer (beide 2025). Voeg daarbij de vier ruime slaapkamers, een riante woonkamer en de gunstige ligging van zowel de tuin als het dakterras, en je weet: dit is er één die je gezien moet hebben.

Met keurige vloeren, moderne afwerking en veel lichtinval biedt deze woning alles wat je zoekt in een comfortabel (t)huis. Ideaal voor gezinnen, thuiswerkers of gewoon voor wie ruimte en kwaliteit belangrijk vindt.

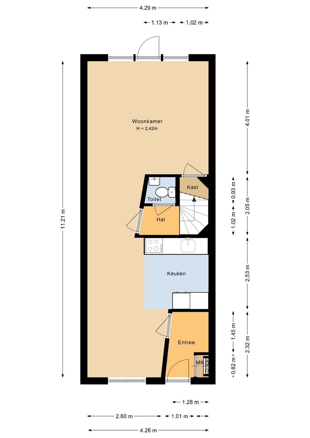
Begane grond:
Je betreedt de woning via een verzorgde voortuin en komt binnen in een hal met meterkast en toegang naar de woonkeuken en woonkamer. Vanuit de woonkamer heeft u toegang tot de hal met trapgang naar de eerste verdieping en een modern toilet met fonteintje.

De grote ramen zorgen hier voor een overvloed aan natuurlijk licht en bieden uitzicht op de tuin. De strakke wandafwerking en keurige vloer maken het geheel stijlvol en sfeervol. Aan de voorzijde van de woning vind je de gloednieuwe open keuken (2025), uitgevoerd in een modern design en voorzien van hoogwaardige inbouwapparatuur. Alles is nog gloednieuw en klaar om de eerste maaltijden te bereiden!

Via de woonkamer heb je toegang tot de achtertuin, gelegen op het zuidoosten. Hier geniet je van de ochtend- en middagzon; een heerlijke plek om de dag te starten of lekker te ontspannen.

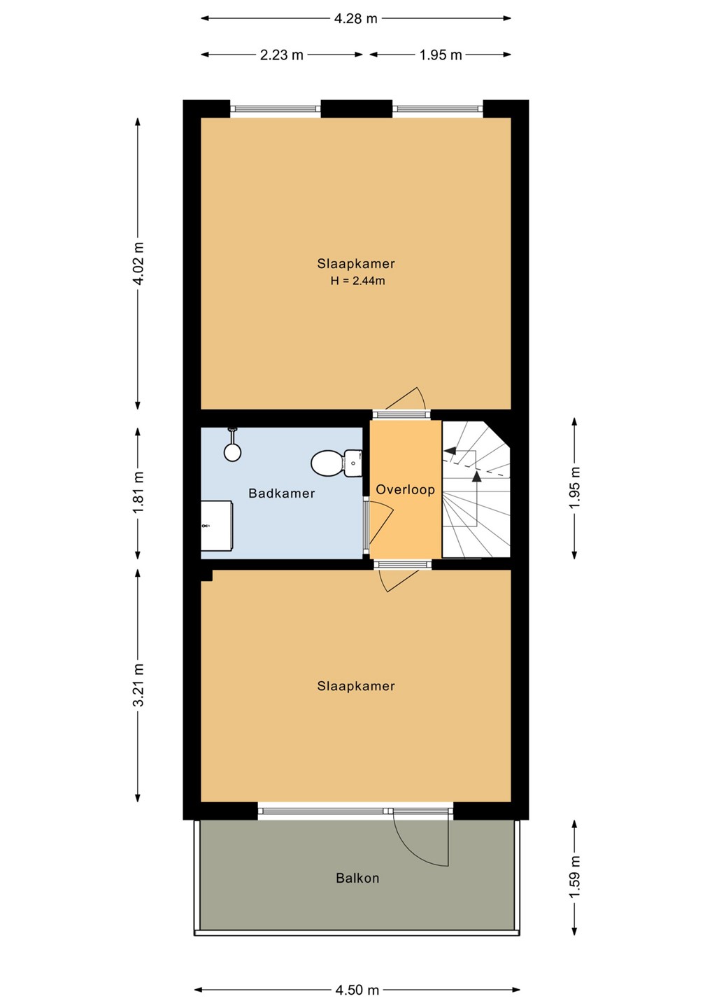
Eerste verdieping:
Op de eerste verdieping bevinden zich twee ruime slaapkamers, elk netjes afgewerkt en voorzien van veel lichtinval. De kamers zijn multifunctioneel: ideaal als kinderslaapkamer, werkkamer of hobbyruimte. De slaapkamer aan de voorkant geeft toegang tot een heerlijk dakterras. Door de ligging op het noordwesten is dit de perfecte plek voor een borrel of relaxmoment in de avondzon.

De moderne badkamer (2025) is een echte eyecatcher. Deze is volledig vernieuwd en voorzien van een inloopdouche, wastafelmeubel met spiegel, designradiator en een tweede toilet. Alles straalt frisheid en luxe uit.

Tweede verdieping:
Op de tweede verdieping vind je de derde en vierde, volwaardige slaapkamers. Een zee van ruimte en ideaal om hier eventueel nog een ruimte te creëeren voor een badkamer.

Pluspunten van deze woning:
- Instapklaar – nieuwe keuken en badkamer (2025)
- Vier ruime slaapkamers
- Riante en lichte woonkamer
- Keurig onderhouden vloeren en perfecte afwerking
- Tuin op het zuidoosten: ochtend- en middagzon
- Dakterras op het noordwesten: genieten van de avondzon
- Gelegen in een rustige, kindvriendelijke buurt met alle voorzieningen dichtbij

Omgeving:
De woning is gelegen in een rustige straat in de populaire Regenboogbuurt, met scholen, winkels, openbaar vervoer en uitvalswegen op korte afstand. Het centrum van Almere Buiten is op fietsafstand en ook het station is snel bereikbaar. Voor een wandeling of fietstocht zit je binnen no-time in het groen of aan het water.

Kortom: Aprilstraat 5 is een huis waar alles klopt. Ruimte, comfort, afwerking en een fijne ligging komen hier perfect samen. Kom kijken, laat je verrassen en ervaar zelf waarom dit jouw nieuwe thuis kan zijn!

Bel ons voor een bezichtiging, je bent van harte welkom!

Kenmerken

Overdracht
Prijs € 460.000,- k.k.
Aanvaarding In overleg
Aangeboden sinds Dinsdag 22 april 2025
Bouw
Type object Eengezinswoning, woonhuis, tussenwoning
Soort bouw Bestaande bouw
Bouwjaar 1998
Isolatievormen Dubbel glas
Volledig geïsoleerd
Oppervlaktes en inhoud
Perceeloppervlakte 112 m²
Woonoppervlakte 119 m²
Inhoud 393 m³
Oppervlakte externe bergruimte 7 m²
Oppervlakte gebouwgebonden buitenruimte 7 m²
Indeling
Aantal bouwlagen 3
Aantal kamers 5 (waarvan 4 slaapkamers)
Locatie
Ligging Aan rustige weg
In woonwijk
Tuin
Type Achtertuin
Hoofdtuin Ja
Oriëntering Zuidoost
Heeft een achterom Ja
Staat Normaal
Tuin 2 - Type Achtertuin
Tuin 2 - Staat Normaal
Energieverbruik
Energielabel B
CV ketel
Warmtebron Gas
Eigendom Eigendom
Uitrusting
Warm water CV-ketel
Verwarmingssysteem Centrale verwarming
Badkamervoorzieningen Inloopdouche
Toilet
Wastafel
Wastafelmeubel
Tuin aanwezig Ja
Heeft schuur/berging Ja
Heeft ventilatie Ja
Kadastrale gegevens
Kadastrale aanduiding Almere B 1868
Perceeloppervlakte 112 m²
Omvang Geheel perceel
Eigendomsituatie Eigen grond
Neem contact met mij op
Sluiten

Recent bekeken