Te koop: Parnassialaan 164, 8245 HD Lelystad

€ 639.000,- k.k. € 4.231,79/m2

Beschrijving

Welkom bij STAAT makelaars – welkom in jouw nieuwe thuis.

Er zijn huizen die direct indruk maken. Ze ademen sfeer, elegantie en karakter. Zodra je binnenstapt, voel je meteen: dit klopt. De ruimtes zijn licht, de afwerking is verzorgd tot in het kleinste detail en alles straalt kwaliteit uit. Parnassialaan 164 in Lelystad is precies zo’n woning. Een royale twee-onder-een-kap waar je niet alleen woont, maar waar je écht thuiskomt.

Deze prachtige woning, gebouwd in 2020, is een echte eyecatcher in de populaire wijk Warande. Met veel zorg afgewerkt, een heerlijke tuin, veel leefruimte binnen én buiten én voorzien van duurzame voorzieningen. Hier woon je comfortabel, stijlvol en ontspannen. De woning wordt aangeboden middels een nette bieden-vanaf-prijs.

Pluspunten van deze woning:
- Bouwjaar 2020, modern, instapklaar en energiezuinig
- Strakke en hoogwaardige afwerking
- Vloerverwarming op zowel de begane grond als de eerste verdieping en is per ruimte in te stellen.
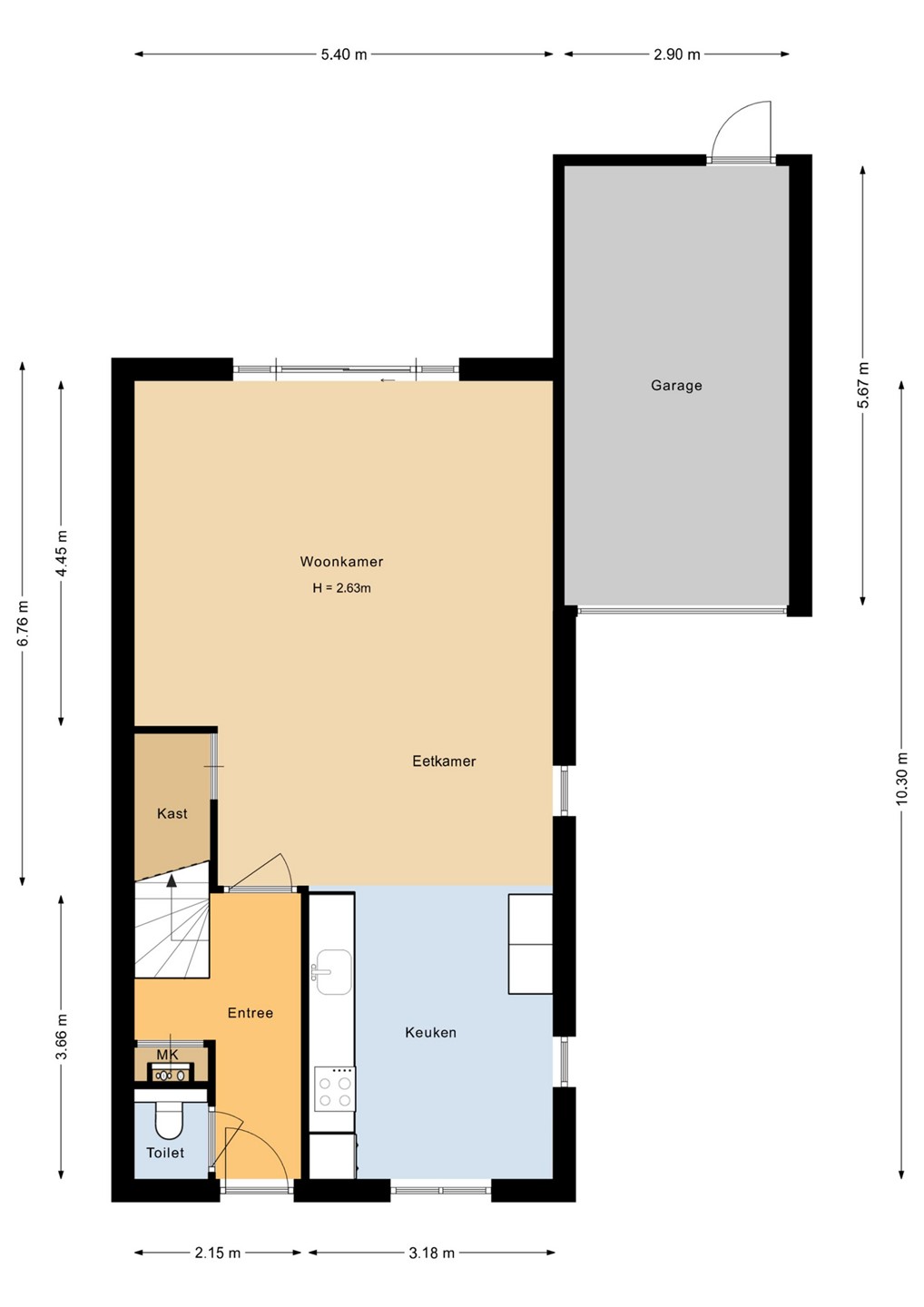
- Luxe keuken aan de voorzijde met o.a. 4-pits inductie, vaatwasser en grote koelkast omgeven door licht en glas
- Royale, fraai aangelegde achtertuin op het noordwesten, zon in de middag én avond
- Warm en koud water in de garage
- 8 zonnepanelen in eigendom, duurzaam en gunstig voor de energiekosten
- Parkeren op eigen terrein met ruimte voor minimaal twee auto’s

Indeling die klopt:
De royale woonkamer aan de achterzijde biedt een prachtig uitzicht op de tuin. Via de openslaande deuren vloeien binnen en buiten moeiteloos in elkaar over. Dankzij de vele raampartijen is de kamer heerlijk licht en ontstaat er een warme en uitnodigende sfeer.

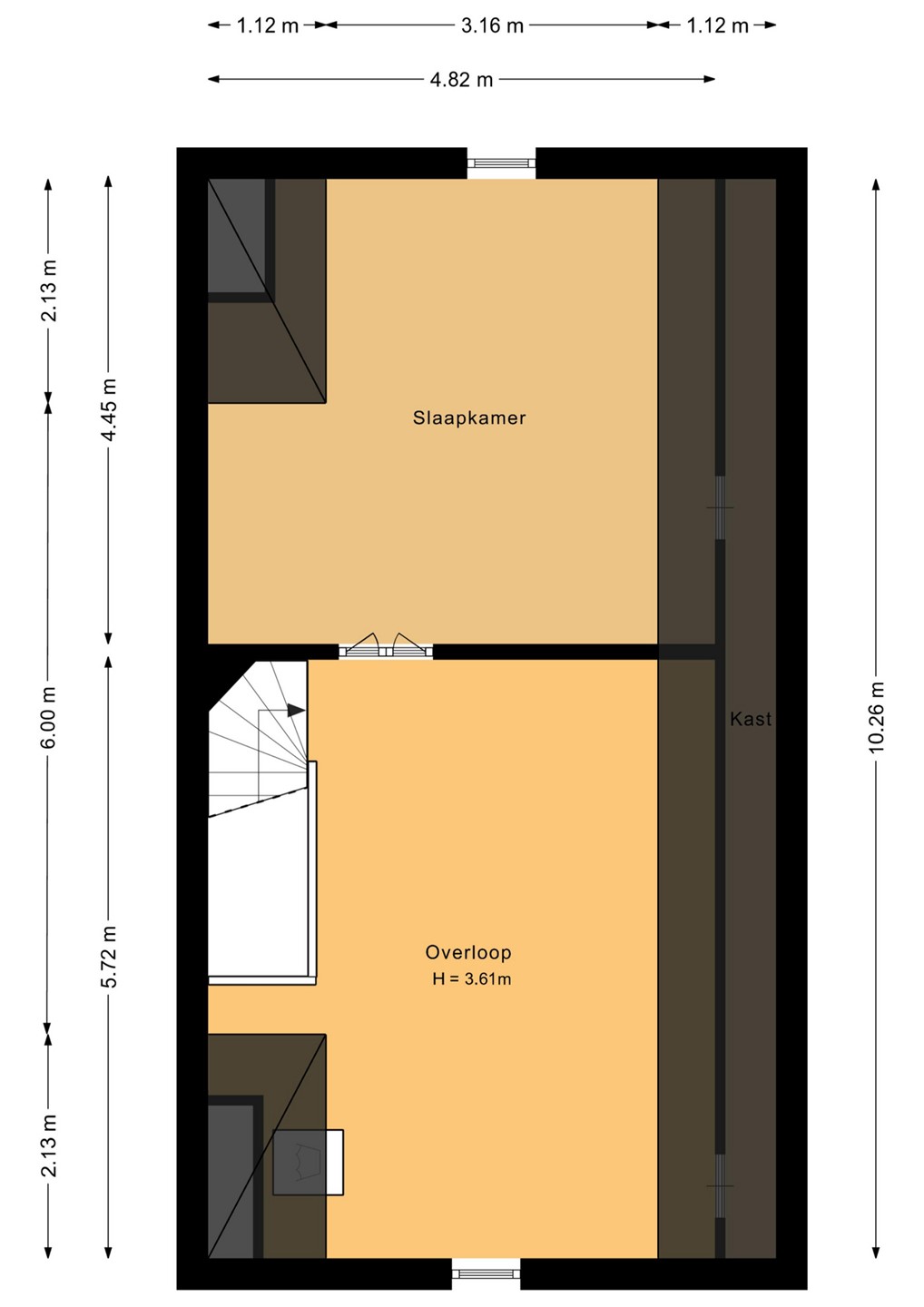
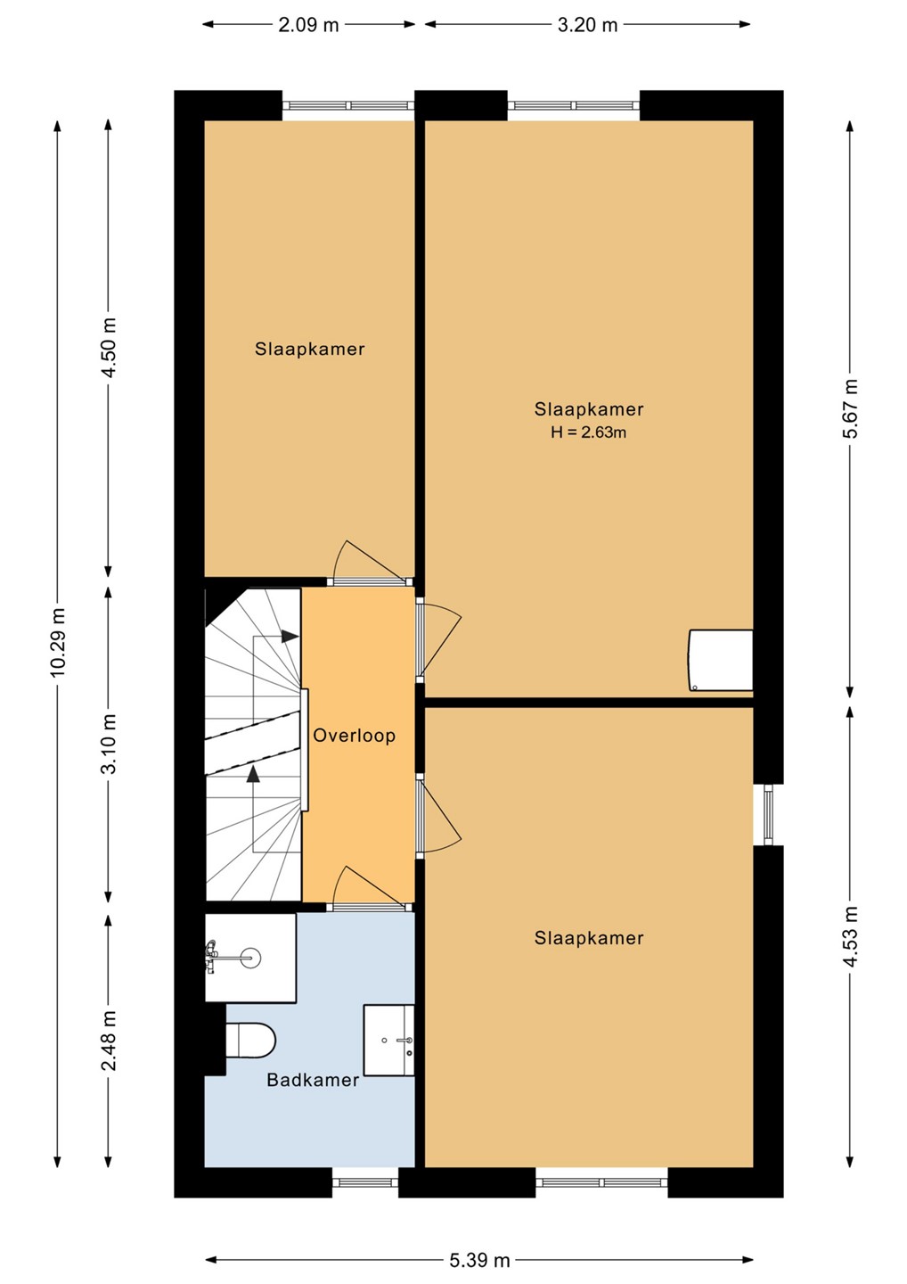
Op de eerste verdieping vind je drie ruime slaapkamers. Twee daarvan liggen aan de rustige achterzijde met zicht op de tuin. De derde kamer bevindt zich aan de voorzijde en profiteert van een brede raampartij waardoor de ruimte baadt in natuurlijk licht. Voor elk gezinslid is er zo een fijne plek om zich terug te trekken. De moderne badkamer maakt deze verdieping compleet. De badkamer is stijlvol ingericht en van alle gemakken voorzien.

De tweede verdieping is verrassend ruim. Hier vind je nu een riante slaapkamer en het wasgedeelte, maar er is zóveel ruimte dat je er eenvoudig twee slaapkamers kunt realiseren, een aparte wasruimte en zelfs een vliering.

Waarom kiezen voor deze woning?
Omdat je zoekt naar een royaal gezinshuis op een uitstekende locatie. Omdat je waarde hecht aan kwaliteit, comfort, duurzaamheid én ruimte. En vooral omdat dit een huis is dat klopt, van de eerste stap over de drempel tot in elk detail.

Wordt Parnassialaan 164 jouw nieuwe thuis? Maak snel een afspraak met STAAT makelaars en we laten je graag ervaren hoe bijzonder deze woning is.

Kenmerken

Overdracht
Prijs € 639.000,- k.k.
Aanvaarding In overleg
Aangeboden sinds Donderdag 18 september 2025
Bouw
Type object Eengezinswoning, woonhuis, twee onder een kap woning
Soort bouw Bestaande bouw
Bouwjaar 2020
Isolatievormen Volledig geïsoleerd
Oppervlaktes en inhoud
Perceeloppervlakte 283 m²
Woonoppervlakte 151 m²
Inhoud 606 m³
Oppervlakte overige inpandige ruimten 16 m²
Indeling
Aantal bouwlagen 3
Aantal kamers 5 (waarvan 4 slaapkamers)
Locatie
Ligging In woonwijk
Tuin
Type Achtertuin
Hoofdtuin Ja
Oriëntering Noord west
Heeft een achterom Ja
Staat Prachtig aangelegd
Tuin 2 - Type Achtertuin
Tuin 2 - Staat Prachtig aangelegd
Energieverbruik
Energielabel A
Energie-index 0,72
Uitrusting
Aantal parkeerplaatsen 3
Verwarmingssysteem Stadsverwarming
Badkamervoorzieningen Douche
Toilet
Wastafelmeubel
Glasvezelaansluiting aanwezig Ja
Tuin aanwezig Ja
Heeft zonnecollectoren Ja
Heeft ventilatie Ja
Kadastrale gegevens
Kadastrale aanduiding Lelystad A 886
Perceeloppervlakte 283 m²
Omvang Geheel perceel
Eigendomsituatie Eigen grond
Neem contact met mij op
Sluiten

Recent bekeken