Nieuw in verkoop

Te koop: Zaagvisplantsoen 52, 1317 HR Almere

€ 425.000,- k.k. € 3.794,64/m2

Beschrijving

Staat Makelaars biedt aan: Zaagvisplantsoen 52 in Almere
Comfortabel wonen aan een gezellig plantsoen, met volop lichtinval, een zonnige achtertuin op het westen en verrassend veel ruimte. Welkom op Zaagvisplantsoen 52 – een instapklare gezinswoning met energielabel A, kunststof kozijnen en maar liefst vier (mogelijk vijf) slaapkamers.

Bekijk de woningpresentatie voor een complete indruk van deze uitstekend onderhouden woning, gelegen in een rustige en kindvriendelijke woonomgeving met een groene binnenplaats en speeltuin direct achter de woning. De woning wordt aangeboden middels een bieden-vanaf-prijs.

Welkom bij Zaagvisplantsoen 52
Deze verzorgde tussenwoning is prachtig gelegen aan een plantsoen, waardoor u vrij en groen uitzicht heeft aan de voorzijde. Achter de woning bevindt zich een fijne, groene binnenplaats met speeltuin – ideaal voor gezinnen met kinderen. Hier woont u rustig, maar toch centraal, met scholen, winkels, openbaar vervoer en uitvalswegen binnen handbereik.

De woning is volledig voorzien van kunststof kozijnen, beschikt over energielabel A en is uitgerust met airconditioning in zowel de woonkamer als de master bedroom. Daarnaast is de gehele woning voorzien van rolluiken – comfortabel én praktisch.

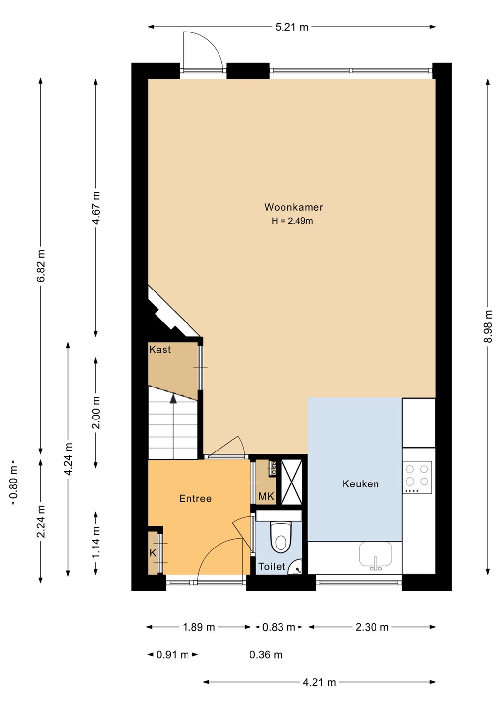
Indeling
Begane grond
Via de entree komt u in de hal met toilet, meterkast en trapopgang naar de eerste verdieping.
De woonkamer is keurig afgewerkt en biedt een heerlijke leefruimte met volop indelingsmogelijkheden. Dankzij de grote raampartijen aan de tuinzijde geniet u hier van veel natuurlijk daglicht en een prettige verbinding met buiten. Er is voldoende ruimte voor een grote eettafel én een comfortabele loungehoek. De aanwezige airco zorgt voor extra comfort tijdens warme zomerdagen.

Aan de voorzijde van de woning bevindt zich de ruime hoekkeuken, compleet uitgevoerd met diverse inbouwapparatuur en volop werk- en bergruimte. Een fijne plek om te koken met zicht op het plantsoen.

De achtertuin is gelegen op het westen, waardoor u hier tot in de avond van de zon kunt genieten. De tuin is speels ingedeeld met hoogteverschillen en gezellige zithoekjes, wat zorgt voor een verrassend en sfeervol geheel.

Eerste verdieping
Op de eerste verdieping geeft de overloop toegang tot drie slaapkamers en de badkamer. Aan de achterzijde bevinden zich twee slaapkamers die beide prettig van formaat zijn. Eén van deze kamers betreft de ruime master bedroom, welke bovendien is uitgerust met airconditioning voor extra comfort.

Aan de voorzijde ligt de derde slaapkamer, eveneens netjes afgewerkt en multifunctioneel in te richten als kinder-, werk- of logeerkamer.

De badkamer is verzorgd en compleet ingericht met een ligbad, inloopdouche, toilet en een wastafel met meubel. De ruimte is praktisch ingedeeld en biedt alles wat u nodig heeft voor een comfortabel begin of einde van de dag.

Tweede verdieping
De zolderverdieping is een echte verrassing. Dankzij de dakkapel is hier een royale slaapkamer gerealiseerd met veel extra ruimte en lichtinval. Deze verdieping biedt bovendien de mogelijkheid om eenvoudig twee slaapkamers te creëren, ideaal voor grotere gezinnen of voor wie behoefte heeft aan een extra werk- of hobbykamer. Daarnaast bevindt zich hier de praktische wasruimte.

Tuin & buitenruimte
De achtertuin op het westen is met zorg aangelegd en kenmerkt zich door de speelse indeling met hoogteverschillen en meerdere zitplekken. Hier creëert u moeiteloos verschillende sferen: een plek voor de ochtendkoffie, een loungehoek voor lange zomeravonden en voldoende ruimte voor kinderen om te spelen.

De ligging aan een plantsoen aan de voorzijde én een groene binnenplaats met speeltuin aan de achterzijde maakt dit een ideale woonomgeving voor gezinnen.

Bijzonderheden
- Energielabel A
- Volledig voorzien van kunststof kozijnen
- Gelegen aan een groen plantsoen
- Groene binnenplaats met speeltuin achter de woning
- Achtertuin op het westen
- Speels aangelegde tuin met hoogteverschillen en zithoekjes
- Ruime woonkamer met veel daglicht
- Drie slaapkamers op de eerste verdieping
- Royale zolder met dakkapel (mogelijkheid tot twee slaapkamers)
- Airco in woonkamer en master bedroom

De locatie
Zaagvisplantsoen 52 is gelegen in een rustige en kindvriendelijke wijk in Almere met veel groen en speelvoorzieningen. Scholen, winkels, openbaar vervoer en uitvalswegen richting de A6 en A27 zijn goed bereikbaar. Hier woont u comfortabel, ruim en in een prettige woonomgeving.

Maak kennis met deze complete gezinswoning.
Bent u op zoek naar een energiezuinige, goed onderhouden woning met veel ruimte, een zonnige tuin en een groene ligging?

Dan is Zaagvisplantsoen 52 absoluut een bezichtiging waard.

Neem vandaag nog contact op met Staat Makelaars voor een afspraak – wij laten u deze woning graag persoonlijk ervaren!

Kenmerken

Overdracht
Prijs € 425.000,- k.k.
Status Nieuw in verkoop
Aanvaarding In overleg
Aangeboden sinds Maandag 4 mei 2026
Laatste wijziging Woensdag 13 mei 2026
Bouw
Type object Eengezinswoning, woonhuis, tussenwoning
Soort bouw Bestaande bouw
Bouwjaar 1986
Dakbedekking Dakpannen
Type dak Zadeldak
Isolatievormen Volledig geïsoleerd
Oppervlaktes en inhoud
Perceeloppervlakte 126 m²
Woonoppervlakte 112 m²
Inhoud 381 m³
Oppervlakte externe bergruimte 7 m²
Indeling
Aantal bouwlagen 3
Aantal kamers 5 (waarvan 4 slaapkamers)
Locatie
Ligging Aan rustige weg
In woonwijk
Tuin
Type Achtertuin
Hoofdtuin Ja
Oriëntering West
Heeft een achterom Ja
Staat Prachtig aangelegd
Tuin 2 - Type Achtertuin
Tuin 2 - Staat Prachtig aangelegd
Tuin 3 - Type Voortuin
Tuin 3 - Staat Prachtig aangelegd
Energieverbruik
Energielabel A
Uitrusting
Verwarmingssysteem Stadsverwarming
Badkamervoorzieningen Inloopdouche
Ligbad
Toilet
Wastafel
Wastafelmeubel
Heeft airco Ja
Glasvezelaansluiting aanwezig Ja
Tuin aanwezig Ja
Heeft rolluiken Ja
Heeft schuur/berging Ja
Heeft een dakraam Ja
Heeft zonwering Ja
Heeft ventilatie Ja
Kadastrale gegevens
Kadastrale aanduiding Almere O 2151
Perceeloppervlakte 126 m²
Omvang Geheel perceel
Eigendomsituatie Eigen grond
Neem contact met mij op
Sluiten

Recent bekeken