Te koop: Parkwijklaan 87, 1326 DR Almere

€ 475.000,- k.k. € 3.861,79/m2

Beschrijving

Staat Makelaars biedt aan: Parkwijklaan 87 in Almere
Ruimte, lichtinval en een heerlijke tuin met royale overkapping, welkom in de populaire en kindvriendelijke wijk Parkwijk.
Bekijk de woningvideo voor een perfecte indruk van deze fijne gezinswoning met zonnig dakterras, rustige ligging en alle voorzieningen binnen handbereik. De woning wordt aangeboden middels een bieden-vanaf-prijs.

Welkom bij Parkwijklaan 87
Deze verzorgde tussenwoning met dakterras op het zuidwesten ligt in het hart van de geliefde wijk Parkwijk in Almere Stad. Hier woont u centraal, maar toch rustig — met scholen, kinderdagverblijven, winkels, het gezondheidscentrum én het NS-station op loop- of fietsafstand. Dankzij de gunstige ligging bereikt u de A6 en A27 binnen enkele minuten, waardoor u snel onderweg bent richting Amsterdam, Utrecht of Lelystad.

Indeling
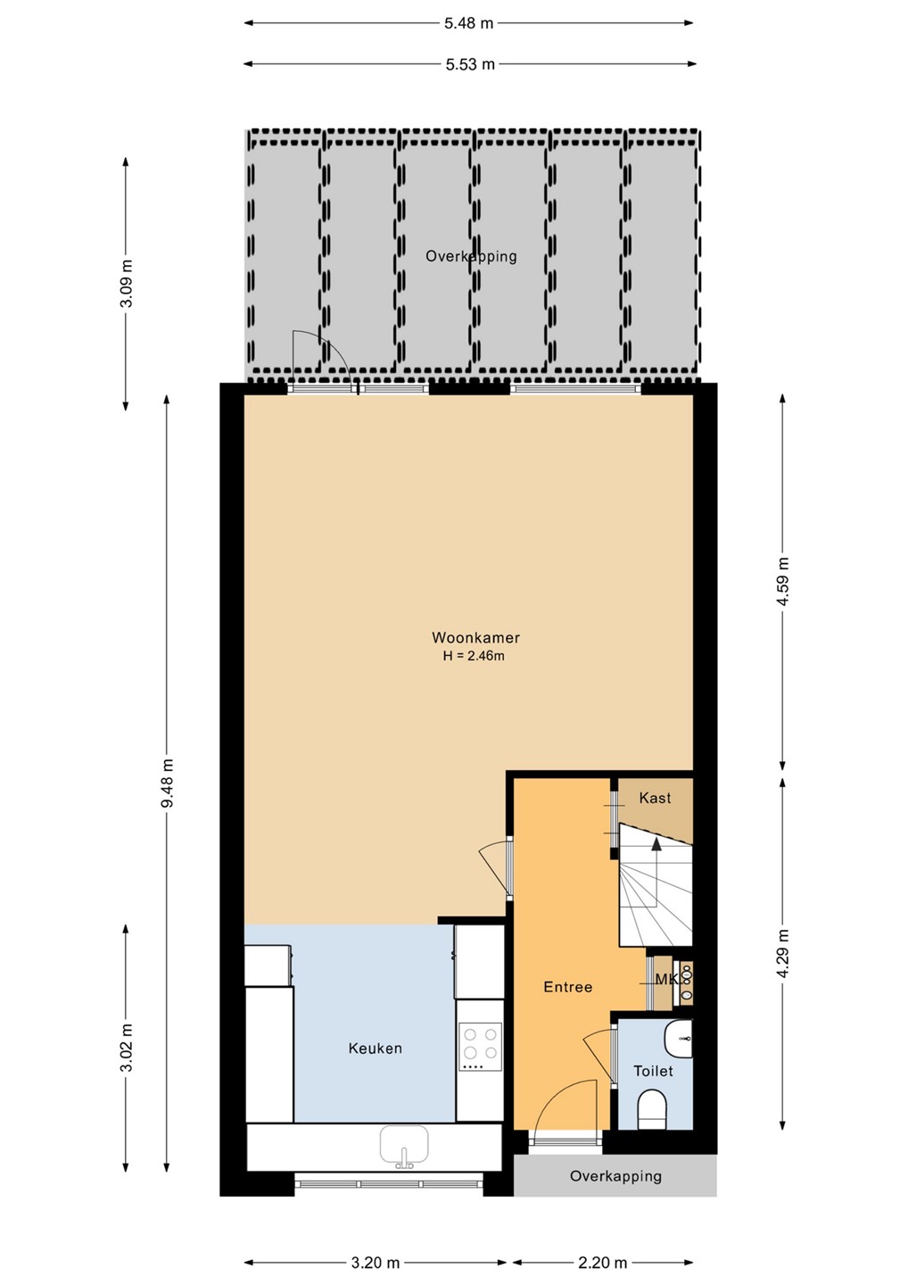
Begane grond
U betreedt de woning via de hal met toilet, meterkast en trapopgang naar de eerste verdieping. De lichte, tuingerichte woonkamer biedt via een schuifpui toegang tot de fraai aangelegde achtertuin met een ruime overkapping direct aan de woning, perfect om het hele jaar door buiten te genieten.

De tuin is voorzien van sierbestrating, groene erfafscheidingen, een houten berging en een eigen achterom.
Aan de voorzijde bevindt zich de open keuken, die ruim en praktisch is ingericht met voldoende kastruimte en compleet is uitgerust met inbouwapparatuur. De gehele begane grond is afgewerkt met een nette laminaatvloer.

Eerste verdieping
De overloop biedt toegang tot drie ruime slaapkamers, twee aan de achterzijde en één aan de voorzijde. De badkamer is keurig betegeld en voorzien van een ligbad, aparte douche, wastafel met meubel, tweede toilet en een raam voor natuurlijke ventilatie.

Tweede verdieping
De tweede verdieping is een royale, open zolderruimte met een aparte wasruimte voor de wasmachine en droger, en volop bergruimte. Dankzij de ruime opzet kunt u hier eenvoudig een extra slaapkamer creëren. Met het plaatsen van een dakkapel zijn zelfs twee extra slaapkamers mogelijk.
Vanuit deze verdieping heeft u toegang tot het zonnige dakterras op het zuidwesten, waar u tot in de avond van de zon kunt genieten.

Tuin & buitenruimte
De achtertuin is fraai aangelegd en beschikt over een ruime overkapping direct aan de woning, waardoor u hier in elk seizoen comfortabel buiten kunt zitten. De houten berging biedt praktische opbergruimte voor fietsen en tuingereedschap, en via de achterom is de tuin ook vanaf de achterzijde bereikbaar.

Bijzonderheden
- Perfecte gezinswoning
- 3 volwaardige slaapkamers, 4e en zelfs 5e mogelijkheden
- Centrale ligging nabij NS-station Almere-Parkwijk
- Zonnig dakterras op het zuidwesten
- Tuin met ruime overkapping en houten berging
- Voldoende (gratis) parkeergelegenheid in de straat
- Mogelijkheid om extra kamers te realiseren op zolder
- Oplevering in overleg

De locatie
Parkwijklaan 87 ligt in een rustige en kindvriendelijke woonomgeving met volop voorzieningen binnen handbereik. Scholen, winkels, sportfaciliteiten en het NS-station Almere-Parkwijk bevinden zich op loopafstand. Ook de binnenstad van Almere is snel bereikbaar, evenals de uitvalswegen A6 en A27.

Maak kennis met deze complete gezinswoning
Zoekt u een ruime woning met een zonnig dakterras, een heerlijke overkapping in de tuin en een centrale ligging?
Dan is Parkwijklaan 87 absoluut een bezichtiging waard.
Neem vandaag nog contact met ons op voor een afspraak — wij laten u deze fijne woning graag zien!

Kenmerken

Overdracht
Prijs € 475.000,- k.k.
Aanvaarding In overleg
Aangeboden sinds Vrijdag 7 november 2025
Laatste wijziging Maandag 15 december 2025
Bouw
Type object Eengezinswoning, woonhuis, tussenwoning
Soort bouw Bestaande bouw
Bouwjaar 1994
Dakbedekking Dakpannen
Type dak Lessenaarsdak
Isolatievormen Volledig geïsoleerd
Oppervlaktes en inhoud
Perceeloppervlakte 165 m²
Woonoppervlakte 123 m²
Inhoud 419 m³
Oppervlakte externe bergruimte 8 m²
Oppervlakte gebouwgebonden buitenruimte 32 m²
Indeling
Aantal bouwlagen 3
Aantal kamers 5 (waarvan 4 slaapkamers)
Locatie
Ligging In woonwijk
Tuin
Type Achtertuin
Hoofdtuin Ja
Oriëntering Oosten
Heeft een achterom Ja
Staat Prachtig aangelegd
Tuin 2 - Type Achtertuin
Tuin 2 - Staat Prachtig aangelegd
Tuin 3 - Type Voortuin
Tuin 3 - Staat Prachtig aangelegd
Energieverbruik
Energielabel A
Uitrusting
Verwarmingssysteem Stadsverwarming
Badkamervoorzieningen Douche
Ligbad
Toilet
Wastafel
Wastafelmeubel
Glasvezelaansluiting aanwezig Ja
Tuin aanwezig Ja
Heeft schuur/berging Ja
Heeft ventilatie Ja
Kadastrale gegevens
Kadastrale aanduiding Almere U 1460
Perceeloppervlakte 165 m²
Omvang Geheel perceel
Eigendomsituatie Eigen grond
Neem contact met mij op
Sluiten

Recent bekeken