Te koop: Laan der V.O.C. 224, 1335 RX Almere

€ 499.000,- k.k. € 3.158,23/m2

Beschrijving

Staat Makelaars biedt aan: Laan der VOC 224 in Almere. Wonen op een toplocatie! Deze woning wordt u aangeboden middels een bieden-vanaf-prijs.

Welkom bij deze ruime en speelse woning aan de Laan der VOC 224! Een prachtig huis op een perfecte locatie, met werkelijk alles binnen handbereik. Zo woon je hier op loopafstand van het winkelcentrum én het treinstation, waardoor zowel de dagelijkse boodschappen als je woon-werkverkeer eenvoudig geregeld zijn. Ook parkeren is hier geen probleem: dat doe je gewoon openbaar voor de deur.

Begane grond:
Via de verzorgde voortuin bereik je de voordeur, maar ook de deur naar de inpandige berging. Handig: deze berging is zowel van buitenaf als binnendoor bereikbaar en wordt momenteel gebruikt als tweede keuken.
Binnen kom je in de hal met het toilet en inloopdouche, de trapopgang naar de verdieping en toegang tot de berging/keuken. Hier vind je ook de aansluitingen voor de wasmachine, droger en de cv-ruimte.

Loop je verder door, dan kom je in de tuingerichte woonkamer. Een lichte en gezellige ruimte met toegang tot de achtertuin. De tuin is onderhoudsvriendelijk aangelegd met keramische tegels en daar bovenop ligt kunstgras en beschikt over een fijne overkapping waar je het hele jaar door kunt genieten. Achterin de tuin staat een extra schuur voor fietsen en opslag. Dankzij de achterom kun je met de fiets eenvoudig via de achterzijde naar binnen.

Eerste verdieping:
De hele eerste verdieping is afgewerkt met een keurige laminaatvloer. Aan de achterzijde zorgen kunststof kozijnen en grote raampartijen voor veel lichtinval en een frisse uitstraling. Hier bevindt zich de royale woonkamer, een fijne plek om te ontspannen.

Aan de voorzijde vind je de moderne keuken, die volledig is vernieuwd en van alle gemakken is voorzien. Met een stijlvol kookeiland en hoogwaardige inbouwapparatuur is dit een echte eyecatcher voor kookliefhebbers. Onder de trap is nog een handige inpandige berging te vinden, ideaal voor extra opslagruimte.

Tweede verdieping:
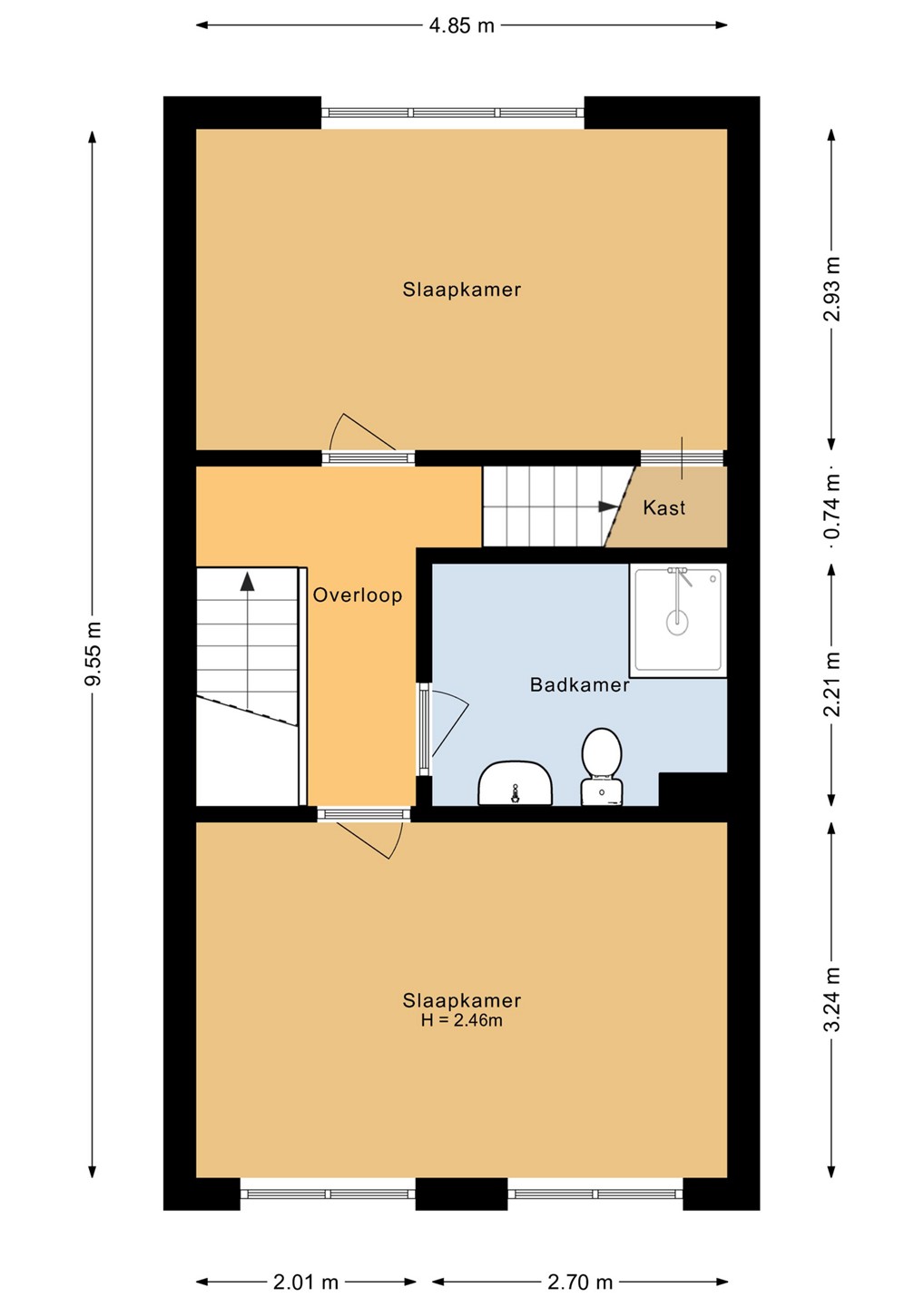
Op de tweede verdieping bevinden zich twee slaapkamers: één aan de voorzijde en één aan de achterzijde. De slaapkamer aan de achterkant is uitgerust met kunststof kozijnen. Daarnaast vind je hier de badkamer, compleet ingericht met alles wat je nodig hebt voor een frisse start van de dag.

Derde verdieping:
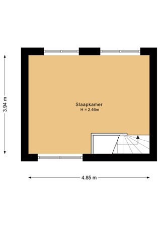
De bovenste verdieping verrast met een royale slaapkamer, een lichte ruimte dankzij de grote ramen aan zowel de voor- als achterzijde. Ook hier zijn de kozijnen uitgevoerd in onderhoudsvriendelijk kunststof. Een heerlijke verdieping die gebruikt kan worden als master bedroom, werkkamer of hobbyruimte.

Extra mogelijkheden:
Bijzonder aan deze woning is dat de begane grond volledig functioneel is ingericht met een keuken, toilet inloopdouche en woonkamer. Dit maakt de woning ideaal voor bijvoorbeeld een thuiswonend kind of iemand die graag een eigen leefruimte op de begane grond wil hebben.

Locatie:
De ligging is echt een groot pluspunt: het winkelcentrum met diverse voorzieningen bevindt zich op loopafstand en het treinstation ligt vrijwel om de hoek. Met de trein ben je binnen korte tijd in Amsterdam of Utrecht, wat deze woning ook voor forenzen zeer aantrekkelijk maakt.

Kortom: Laan der VOC 224 biedt je een verrassend ruim woonhuis met vier slaapkamers, twee keukens, een fijne tuin en een toplocatie in Almere.

Kenmerken

Overdracht
Prijs € 499.000,- k.k.
Aanvaarding In overleg
Aangeboden sinds Woensdag 19 november 2025
Bouw
Type object Eengezinswoning, woonhuis, tussenwoning
Soort bouw Bestaande bouw
Bouwjaar 2003
Dakbedekking Bitumen
Type dak Platdak
Isolatievormen Dubbel glas
Volledig geïsoleerd
Oppervlaktes en inhoud
Perceeloppervlakte 99 m²
Woonoppervlakte 158 m²
Inhoud 519 m³
Oppervlakte externe bergruimte 4 m²
Indeling
Aantal bouwlagen 4
Aantal kamers 5 (waarvan 4 slaapkamers)
Locatie
Ligging Aan rustige weg
In woonwijk
Tuin
Type Achtertuin
Hoofdtuin Ja
Oriëntering Zuidoost
Staat Normaal
Tuin 2 - Type Achtertuin
Tuin 2 - Staat Normaal
Tuin 3 - Type Voortuin
Tuin 3 - Staat Normaal
Energieverbruik
Energielabel A
CV ketel
Warmtebron Gas
Bouwjaar 2024
Eigendom Eigendom
Uitrusting
Warm water CV-ketel
Verwarmingssysteem Centrale verwarming
Badkamervoorzieningen Badkamer 1 Inloopdouche
Toilet
Wastafel
Badkamervoorzieningen Badkamer 2 Douche
Toilet
Glasvezelaansluiting aanwezig Ja
Tuin aanwezig Ja
Heeft schuur/berging Ja
Heeft ventilatie Ja
Kadastrale gegevens
Kadastrale aanduiding Almere B 7587
Perceeloppervlakte 99 m²
Omvang Geheel perceel
Eigendomsituatie Eigen grond
Neem contact met mij op
Sluiten

Recent bekeken