Te koop: Breckelenkampstraat 27, 1333 SK Almere

€ 540.000,- k.k. € 3.776,22/m2

Beschrijving

Staat Makelaars biedt aan: Breckelenkampstraat 27 in Almere middels een bieden vanaf prijs.
Ruimte, sfeer en comfort in een rustige, kindvriendelijke buurt. Bekijk de woningvideo voor een perfecte indruk van deze geschakelde twee-onder-een-kapwoning met garage, gelegen in de populaire woonwijk van Almere.

Welkom bij Breckelenkampstraat 27
Met een woonoppervlakte van maar liefst 143 m², vijf slaapkamers, een sfeervolle woonkamer met houtkachel, en een fraai aangelegde tuin op het noordwesten, is dit de ideale woning voor gezinnen die op zoek zijn naar ruimte en gezelligheid. Dankzij het energielabel B en parkeergelegenheid voor de deur combineert deze woning comfort met praktische gemakken.

Begane grond
Via de ruime hal met toilet en toegang tot de garage betreedt u de lichte woonkamer. De living is sfeervol en royaal opgezet, met grote raampartijen en een houtkachel die direct een warme, huiselijke sfeer creëert.

De keuken bevindt zich aan de voorzijde van de woning en is geplaatst in een ruime U-opstelling, volledig uitgerust met inbouwapparatuur. Grenzend aan de keuken heeft u in de eetkamer alle ruimte om gezellig samen te tafelen met familie of vrienden.

De garage is direct vanuit de hal te bereiken en biedt volop bergruimte. Ook zijn hier de aansluitingen voor de wasmachine en droger aanwezig, praktisch en efficiënt.

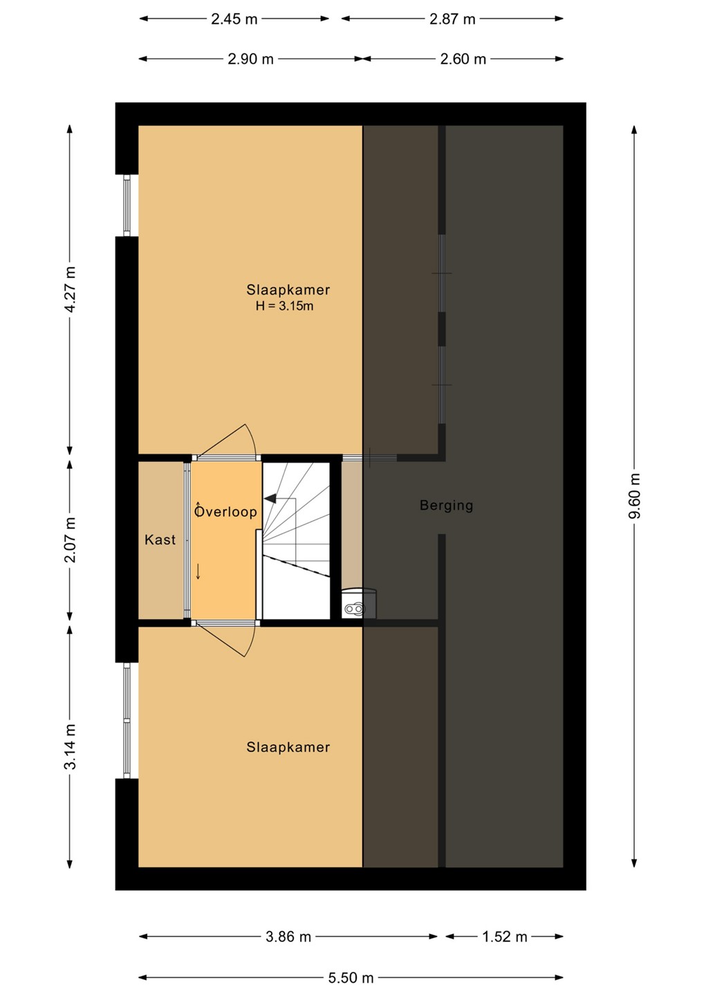
Eerste verdieping
Op de eerste verdieping bevinden zich drie slaapkamers, waaronder de master bedroom aan de voorzijde. Deze kamer heeft directe toegang tot de badkamer, die tevens via de overloop bereikbaar is. De badkamer is voorzien van een ligbad, douche, wastafelmeubel en tweede toilet, compleet en netjes afgewerkt.

Tweede verdieping
De tweede verdieping verrast met nog eens twee volwaardige slaapkamers. Beide kamers zijn licht en ruim, en kunnen desgewenst nog worden vergroot met een dakkapel. De overloop biedt daarnaast extra bergruimte.

Tuin & buitenruimte
De fraai aangelegde achtertuin ligt op het westen, ideaal om tot in de avond van de zon te genieten. Er is voldoende ruimte voor een loungehoek, eettafel en speelplek voor de kinderen. Aan de voorzijde van de woning kunt u parkeren op eigen terrein.

Bijzonderheden
- Riante twee-onder-een-kapwoning
- Woonoppervlakte ca. 143 m²
- Maar liefst 5 volwaardige slaapkamers
- Sfeervolle woonkamer met houtkachel
- Ruime keuken in U-opstelling met diverse inbouwapparatuur
- Badkamer met ligbad, douche en tweede toilet
- Garage met wasruimte en directe toegang tot de woning
- Fraaie tuin op het westen
- Energielabel B
- Parkeren voor de deur

De locatie
De Breckelenkampstraat ligt in een rustige, groene woonwijk van Almere met volop voorzieningen in de buurt. Scholen, speeltuintjes, winkels en openbaar vervoer bevinden zich op korte afstand, net als de uitvalswegen richting de A6 en A27. Hier woont u comfortabel, ruim en kindvriendelijk, met alles wat u nodig heeft binnen handbereik.

Maak kennis met deze complete gezinswoning
Zoekt u een royale woning met vijf slaapkamers, veel lichtinval en een warme, gezellige sfeer?
Dan is Breckelenkampstraat 27 absoluut een bezichtiging waard.
Neem vandaag nog contact met ons op en ervaar zelf de ruimte, rust en het wooncomfort van deze prachtige twee-onder-een-kapwoning.

Kenmerken

Overdracht
Prijs € 540.000,- k.k.
Aanvaarding In overleg
Aangeboden sinds Maandag 3 november 2025
Laatste wijziging Donderdag 27 november 2025
Bouw
Type object Eengezinswoning, woonhuis, twee onder een kap woning
Soort bouw Bestaande bouw
Bouwjaar 1991
Dakbedekking Dakpannen
Type dak Lessenaarsdak
Isolatievormen Dubbel glas
Volledig geïsoleerd
Oppervlaktes en inhoud
Perceeloppervlakte 262 m²
Woonoppervlakte 143 m²
Inhoud 549 m³
Oppervlakte overige inpandige ruimten 16 m²
Oppervlakte externe bergruimte 9 m²
Oppervlakte gebouwgebonden buitenruimte 2 m²
Indeling
Aantal bouwlagen 3
Aantal kamers 6 (waarvan 5 slaapkamers)
Locatie
Ligging Aan rustige weg
In woonwijk
Tuin
Type Achtertuin
Hoofdtuin Ja
Oriëntering West
Heeft een achterom Ja
Staat Prachtig aangelegd
Tuin 2 - Type Achtertuin
Tuin 2 - Staat Prachtig aangelegd
Tuin 3 - Type Voortuin
Tuin 3 - Staat Prachtig aangelegd
Energieverbruik
Energielabel B
CV ketel
CV ketel Nefit Proline NxT HRC 3-/CW5
Warmtebron Gas
Bouwjaar 2023
Combiketel Ja
Eigendom Eigendom
Uitrusting
Warm water CV-ketel
Verwarmingssysteem Centrale verwarming
Houtkachel
Badkamervoorzieningen Inloopdouche
Ligbad
Toilet
Wastafel
Wastafelmeubel
Glasvezelaansluiting aanwezig Ja
Tuin aanwezig Ja
Heeft schuur/berging Ja
Heeft een dakraam Ja
Heeft ventilatie Ja
Kadastrale gegevens
Kadastrale aanduiding Almere N 2436
Perceeloppervlakte 262 m²
Omvang Geheel perceel
Eigendomsituatie Eigen grond
Neem contact met mij op
Sluiten

Recent bekeken