Beschrijving

Staat Makelaars biedt aan: Tjalk 30 73 in Lelystad middels een keurige bieden-vanaf-prijs.

Op zoek naar een instapklare woning op een prachtige plek? Deze ruime eengezinswoning aan de Tjalk 30 73 combineert modern wooncomfort met een heerlijke ligging met veel rustig en vrijheid. Hier woon je in een groene, kindvriendelijke wijk met volop ruimte en rust, maar toch op korte afstand van voorzieningen.

De omgeving:
De woning ligt in een ruim opgezette straat met veel groen, brede stoepen en parkeergelegenheid op eigen terrein. De achterzijde van de woning is echt een parel: volledig vrij gelegen, zonder directe achterburen, met een fraai uitzicht over een waterpartij. Dit zorgt niet alleen voor extra privacy, maar ook voor een gevoel van ruimte en rust.

’s Ochtends hoor je hier de vogels, overdag geniet je van de zon in de zuidligging en ’s avonds kun je ontspannen aan het water met uitzicht op het groen. De wijk is kindvriendelijk en goed onderhouden, met speeltuintjes, wandelpaden en waterpartijen die het geheel een natuurlijke uitstraling geven. Winkels, scholen, openbaar vervoer en uitvalswegen bevinden zich allemaal op korte afstand.

Begane grond:
Je komt binnen in een nette hal met toegang tot het moderne toilet en de lichte woonkamer. Vloer in toilet is voorzien van elektrische vloerverwarming.
De woonkamer is ruim opgezet en biedt genoeg plek voor een gezellige zithoek én een grote eettafel. Dankzij de dubbele openslaande kunststof deuren met ingebouwde jaloezieën is er een mooie verbinding met de achtertuin en komt er veel licht binnen.

Aan de voorzijde ligt de volledig vernieuwde keuken in een L-opstelling. Deze is uitgerust met een grote oven, koelkast, vriezer, inductiekookplaat, vaatwasser en spoelbak. De afwerking is strak en modern, met veel werk- en opbergruimte. De gehele begane grond heeft een nette stenen vloer.
Vloeren in woonkamer en keuken zijn voorzien van vloerverwarming.

Eerste verdieping:
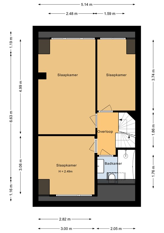
Op deze verdieping bevinden zich drie slaapkamers, waarvan twee extra ruime kamers aan de achterzijde met een dakkapel en elektrische rolluiken. De slaapkamer aan de voorzijde is eveneens keurig afgewerkt. Alle kozijnen zijn van kunststof en voorzien van geïntegreerde jaloezieën.

De badkamer is volledig vernieuwd en modern ingericht met een ruime inloopdouche, toilet en stijlvol wastafelmeubel.
Doucheruimte is voorzien van zuinige infrarood verwarming.

Tweede verdieping:
Op zolder bevindt zich een vierde slaapkamer en een praktische overloop met de cv-ketel (+waterboiler), de aansluiting voor de wasmachine, mechanische ventilatie en de omvormer voor de zonnepanelen.

Buitenruimte:
De achtertuin is echt een verlengstuk van de woonkamer: keurig aangelegd, op het zonnige zuiden en uitkijkend op een lekkere waterpartij. Dankzij de vrije ligging heb je geen directe inkijk en geniet je optimaal van rust, uitzicht en privacy. Achterin de tuin staat een ruime houten berging. De erfafscheidingen zijn degelijk uitgevoerd in houten panelen met betonnen panelen, lekker onderhoudsvrij en geeft een keurige tint aan het geheel. 

Tevens is naast de woning een garage gesitueerd, die voorbereid is om evt bij de woonkamer aansluiting te vinden als extra woonvoorziening.

Aan de voorzijde kun je twee auto’s kwijt op eigen terrein. Ideaal indien u elektrisch wilt laden. Met de zonnepanelen, welke al aanwezig zijn, maakt dit het geheel nog aantrekkelijker.

Pluspunten van deze woning:
- Rustige ligging met vrij uitzicht aan de achterzijde
- Tuin op het zuiden, direct aan het water
- Vier slaapkamers
- Kunststof kozijnen met geïntegreerde jaloezieën
- Elektrische rolluiken aan de achterzijde
- Nieuwe keuken en badkamer
- Zonnepanelen aanwezig
- Parkeren op eigen terrein (twee auto’s)
- Instapklaar en keurig onderhouden

Wil je deze woning met eigen ogen ervaren? Maak dan snel een afspraak voor een bezichtiging en ontdek zelf hoe fijn het hier wonen is!

Kenmerken