Beschrijving

Sommige huizen hebben net dat beetje extra. Ze stralen klasse uit, warmte, karakter. Vanaf het moment dat je de drempel overstapt voel je: dit klopt gewoon. De ruimte, de lichtinval, de afwerking – alles is tot in de puntjes verzorgd. Parnassialaan 152 in Lelystad is zo’n woning. Een statige twee-onder-een-kapwoning waar je niet alleen woont, maar ook écht thuiskomt.

Welkom bij STAAT makelaars – welkom in jouw toekomstige thuis.

Deze prachtige woning uit 2020 is een parel in de geliefde Warande. Met oog voor detail afgewerkt, een heerlijke tuin en volop ruimte binnen én buiten. Hier is het leven comfortabel, stijlvol en ontspannen. De woning wordt aangeboden middels een keurige bieden-vanaf-prijs.

Wat maakt deze woning zo bijzonder?

- Gebouwd in 2020 – instapklaar en modern
- Hoogwaardige hotel-chique afwerking
- Vloerverwarming op zowel de begane grond als eerste verdieping
- Riante, fraai aangelegde achtertuin op het noordwesten – zon in de middag én avond
- Parkeren op eigen terrein voor minimaal twee auto's
- Luxe keuken aan de voorzijde, 5-pits inductie, wijnklimaatkast, vaatwasser en een royale koelkast – omringd door licht en glas

Indeling die klopt:
De ruime woonkamer aan de achterzijde kijkt uit op de ruime tuin. Dankzij de openslaande deuren loopt het binnen- en buitenleven hier mooi in elkaar over. Het natuurlijke licht dat binnenvalt maakt de kamer aangenaam en geeft de ruimte een warme, gezellige sfeer.

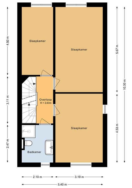
Op de eerste verdieping bevinden zich drie ruime slaapkamers. Twee van deze slaapkamers zijn gelegen aan de achterzijde van het huis met zicht op de fraaie achtertuin. De derde slaapkamer bevindt zich aan de voorzijde, welke door zijn grote raampartij een zeer aangename lichtinval heeft. Zo is er voor ieder wat wils, of je nu kiest voor de kalmte aan de achterzijde of het levendige zicht aan de voorkant. – Daarnaast is op deze verdieping de luxe badkamer aanwezig, die met zijn stijlvolle inrichting zo uit een designmagazine lijkt te komen.

De tweede verdieping is voorzien van airconditioning en momenteel ingericht als royale ouderslaapkamer en het wasgedeelte, maar biedt zóveel ruimte en hoogte dat hier met gemak twee volwaardige kamers, een separate wasruimte en eventueel zelfs nog een vliering gecreëerd kunnen worden.

Waarom hier wonen?
Omdat je op zoek bent naar een royaal gezinshuis op een toplocatie. Omdat je geen concessies wilt doen aan afwerking, ruimte of comfort. Maar vooral omdat je graag thuis wilt komen in een huis dat klopt – van de eerste indruk tot het laatste detail.

Wordt Parnassialaan 152 jouw nieuwe thuis? Maak dan snel een afspraak via STAAT makelaars – we laten je graag zien hoe bijzonder deze woning is!

Kenmerken