Beschrijving

Ben jij op zoek naar een instapklare woning waar je zo in kunt trekken? Dan is dit jouw kans.

Dit appartement aan de Douwe Brouwerweg 47 in Enkhuizen is de afgelopen jaren volledig vernieuwd en tot in detail afgewerkt met als kers op de taart een splinternieuwe badkamer (maart 2026). Deze woning wordt u aangeboden middels een bieden-vanaf-prijs.

Perfect voor starters die comfortabel willen wonen, maar ook verrassend geschikt voor wie alvast vooruitdenkt: dankzij de ligging op de begane grond is de woning met een paar kleine aanpassingen zelfs levensloopbestendig te maken.

Modern, licht en praktisch ingedeeld:
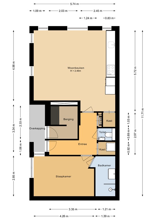
Binnen valt direct de fijne, open leefruimte op. De woonkamer, het eetgedeelte en de prachtige keuken lopen naadloos in elkaar over, wat zorgt voor een ruimtelijk en gezellig geheel de plek om te ontspannen of vrienden te ontvangen.

De woning beschikt over één comfortabele slaapkamer, een strak afgewerkt toilet, en een recent vernieuwde badkamer. Daarnaast is er een praktische aparte opstelling voor de wasmachine en droger.

Alles binnen handbereik:
De ligging is ideaal: op korte afstand vind je onder andere een sportschool, het Streekbos, sportvoorzieningen en het Koperwiekplein. Of je nu actief bezig wilt zijn of juist gemak zoekt in het dagelijks leven alles is dichtbij.

Buitenruimte en extra’s:
Voor de woning ligt een gedeelde voortuin/zitje, waar je samen met de andere VvE-leden kunt genieten van het buitenleven. Daarnaast beschikt de woning over een eigen berging en kun je gratis parkeren in de directe omgeving.

Kortom:
Een volledig gemoderniseerde, instapklare woning op de begane grond, met een slimme indeling en een fijne ligging. Ideaal als eerste koopwoning en een plek waar je nog jarenlang comfortabel kunt blijven wonen.

Zie jij jezelf hier al wonen? Plan snel een bezichtiging bij STAAT makelaars en ontdek het zelf!

Bijzonderheden:
- Kleinschalige VvE met reservefonds 
- Bijdrage per maand € 80,-
- Heerlijke ligging

Kenmerken