Beschrijving

Wonen binnen de vestingwal van Enkhuizen en toch genieten van het comfort van een moderne nieuwbouwwoning? Burgwal 33 in Enkhuizen combineert namelijk het beste van deze twee werelden! Dit appartement, officieel een maisonnette genoemd werd gebouwd in 2015 en biedt ca. 80 m² aan woonoppervlakte, verdeeld over twee volwaardige verdiepingen.

Omgeving:
De ligging van de Burgwal is zeer interessant - alle voorzieningen van de binnenstad zijn namelijk op korte loopafstand! Denk hierbij aan meerdere supermarkten, een fijne sportschool, een geweldige pizzeria, maar ook basisscholen en de winkelstraat met de wekelijkse woensdagmarkt. Parkeergelegenheid en je eigen berging zijn gelegen direct achter het complex, parkeren in de straat is middels een betaalbare parkeervergunning die geldig is voor de gehele binnenstad. De uitvalsroute om de stad te verlaten richting Hoorn/Amsterdam of Flevoland? Die is slechts één straat bij je verwijderd!

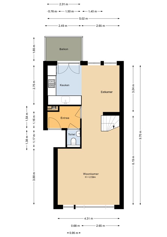
Eerste woonlaag:
Via de straatgerichte toegangsdeur bereik je via de trap jouw eigen voordeur en hal, welke voorzien is van de meterkast en het toilet. Wanneer we doorlopen, treffen we de lichte woonkamer aan de voorzijde aan. Rechtstreeks uit een woonmagazine en zeer netjes afgewerkt, met prachtig uitzicht over de vest en het groen daarachter. Aan de achterzijde van deze woonlaag bevindt zich de open keuken met eetgedeelte. De perfecte plek om gezellig te tafelen en ook aan deze zijde van de woning, groen en vrij uitzicht! De keuken is modern en strak afgewerkt en voorzien van een vaatwasser, ruime koel/vrieskast en combi-oven/magnetron.

Tweede woonlaag:
Op deze tweede verdieping, die je bereikt middels de vaste trap vanuit de woonkamer, vind je aan de voorzijde een fijne slaap/werkkamer met dakkapel en dat fijne, eerder genoemde groene uitzicht. De ruime overloop, die toegang geeft tot een separate cv-/wasruimte én de moderne badkamer die voorzien is van een inloopdouche, wasmeubel en designradiator. Aan de achterzijde ligt de grootste van de twee slaapkamers, lekker ruim, licht en groot genoeg voor een groot bed en royale kledingkast.

Waarom Burgwal 33 bijzonder is:
- Gelegen binnen de vestingwal van Enkhuizen – je wandelt zo naar de Westerstraat of je favoriete koffietentje
- Gebouwd in 2015: dus alle voordelen van nieuwbouw, midden in de oude stad
- Modern en netjes afgewerkt, met een frisse keuken en recent sanitair
- Ca. 80 m² woonoppervlak verdeeld over twee verdiepingen (een echte maisonnette!)
- Fijn balkon om te genieten van de zon en het uitzicht
- Vrij uitzicht zowel aan de voor- als achterkant, zeldzaam in de binnenstad
- Eigen berging én parkeerplaats: nooit meer zoeken naar een parkeerplekje

Praktische weetjes:
- VvE-kosten € 93,- per maand
- Energielabel A
- Prijs: € 319.000,- k.k. (bieden-vanaf)
- Oplevering: kan zeer spoedig

Wil jij weten hoe modern en instapklaar wonen in de oude binnenstad aanvoelt? Maak een afspraak met de makelaars van STAAT en kom het zelf ervaren!

Kenmerken