Beschrijving

Instapklaar wonen met comfort, duurzaamheid en rust – welkom aan de Korenmolenlaan 86 in Bovenkarspel!

Op een fijne, rustige en kindvriendelijke locatie in de geliefde wijk Plan Zuid staat deze uitstekend onderhouden tussenwoning die alles in huis heeft om direct zorgeloos te wonen. Licht, ruimte en energiezuinigheid komen hier perfect samen, waardoor deze woning uitermate geschikt is voor gezinnen die comfortabel en toekomstgericht willen wonen.
STAAT makelaars biedt u deze heerlijke gezinswoning aan middels een bieden-vanaf-prijs.

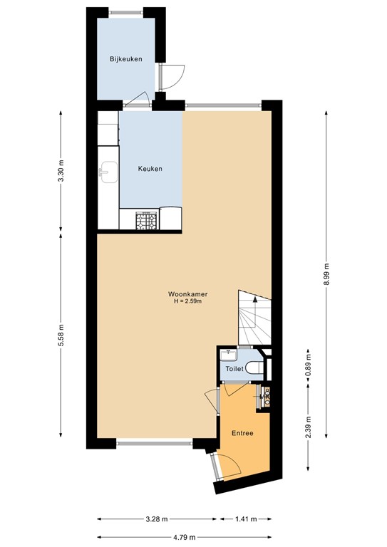
Bij binnenkomst via de voordeur kom je in een ruime hal met toilet. Vanuit hier betreed je de lichte en ruime woonkamer, waar grote raampartijen zorgen voor een prettige sfeer en veel daglicht. De open keuken aan de achterzijde is voorzien van recent vernieuwde inbouwapparatuur en vormt een heerlijke plek om samen te koken, de dag door te nemen of gasten te ontvangen. Daarnaast beschikt de woning over een praktische stenen bijkeuken aan de achterzijde.

De woning telt drie volwaardige slaapkamers. Op de eerste verdieping bevinden zich twee slaapkamers, waarbij de achterste kamer is samengevoegd tot een royale ouderslaapkamer. De moderne badkamer is compleet uitgevoerd met vloerverwarming, een tweede toilet en een inloopdouche en biedt dagelijks comfort voor het hele gezin.
Ook de zolderverdieping is een absolute plus: een ruime slaap- of werkkamer met twee grote dakramen, perfect als tienerkamer, thuiswerkplek of logeerkamer.

Ook buiten is het prettig wonen. De achtertuin op het noordwesten biedt volop ruimte om te spelen, ontspannen en tot in de avond van de zon te genieten. De stenen schuur is recent aangepakt, waarbij het asbesthoudende dak volledig is gesaneerd en vernieuwd. Aan de voorzijde ligt een verzorgde voortuin met groenstrook op het zuiden, wat zorgt voor een groene, vrije uitstraling en extra privacy.

Goed om te weten:
- Energielabel A
- Vloer- en gevelisolatie (2021)
- Intergas CV-ketel (2021)
- 10 zonnepanelen (2022)
- Kunststof kozijnen
- Vernieuwde groepenkast
- Moderne badkamer
- Gewenste overdracht: april 2026

De ligging maakt het plaatje compleet: scholen, winkels en dagelijkse voorzieningen op loopafstand, terwijl ook de uitvalswegen snel en eenvoudig bereikbaar zijn. Rustig wonen, met alle gemakken dichtbij.

Kortom: een modern, energiezuinig en instapklaar gezinshuis op een rustige en centrale plek, waar je zó in kunt.
Korenmolenlaan 86 is klaar voor nieuwe bewoners – kom kijken en ervaar het zelf!

Kenmerken