Beschrijving

Staat Makelaars biedt aan: Valetaweg 94 in Almere, een werkelijk plaatje!

Zo’n woning dus. Waar je binnenkomt en denkt: ja, dit voelt als thuiskomen. Een instapklare woning met veel licht, een speelse indeling, luxe afwerking én een heerlijke tuin op het zuidoosten. Alles klopt.

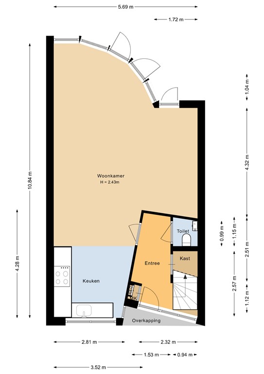
Begane grond:
Je komt binnen in de verzorgde hal met een modern toilet en een praktische trapkast/berging onder de trap. Vanuit hier neem je de trap naar boven, naar de eerste verdieping. Door de raampartijen die vanuit de hal doorlopen tot boven komt er bijzonder veel daglicht naar binnen. De gehele verdieping is voorzien van een luxe marmervloer met vloerverwarming, die zorgt voor een comfortabele en stijlvolle basis.

De witte keuken aan de voorzijde is strak, modern en van alle gemakken voorzien. Denk aan een quooker, extra diepe lades, veel werkruimte en een tijdloze uitstraling. De keuken loopt naadloos over in de ruime en lichte woonkamer, met aan de achterzijde een speelse halve erker. Die zorgt voor nog meer lichtinval en een prettige zithoek.

In de meterkast is een waterontkalkingssysteem geplaatst, wat zorgt voor zacht, zuiver water in de hele woning. Ook fijn: het schilderwerk aan de voorzijde is in 2024 uitgevoerd, en aan de achterzijde begin 2025.

Eerste verdieping:
Op de eerste verdieping vind je twee zeer ruime slaapkamers voorheen waren dit er drie. De indeling is aangepast voor meer comfort, maar desgewenst weer eenvoudig te wijzigen. Aan de voorzijde bevindt zich de nette badkamer, voorzien van een inloopdouche, dubbele wastafel en een tweede toilet. De vloer is afgewerkt met een laminaatvloer met houten toplaag en het schilderwerk is strak uitgevoerd. Alles is tot in detail verzorgd.

Tweede verdieping:
De tweede verdieping biedt opnieuw volop ruimte. Er is een ruime overloop met de aansluiting voor de wasmachine en droger, en toegang tot de vliering via een vlizotrap, handig als extra bergruimte. Daarnaast zijn er twee volwaardige slaapkamers, één aan de voorzijde en één aan de achterzijde. Alles is netjes afgewerkt, instap klaar en goed onderhouden.

Tuin:
De achtertuin is keurig aangelegd met grote tegels en ligt ideaal op het zuidoosten. Hier kun je dus optimaal van de zon genieten. Er is zowel aan de voor- als achterzijde van de tuin stroom aanwezig, en aan de achterzijde is bovendien een wateraansluiting gerealiseerd ideaal voor de tuinliefhebber of een buitenkeuken. De tuin is voorzien van een houten berging met elektra en aan de woningzijde is een zonnescherm en screens geplaatst, wat zorgt voor comfort op warme dagen. Buitenleven voelt hier als vakantie.

Ligging:
De woning ligt in een rustige, kindvriendelijke straat met veel groen en speelruimte direct achter de woning. Winkels, scholen, openbaar vervoer en uitvalswegen zijn allemaal dichtbij. Een heerlijke plek om te wonen!

Bijzonderheden:
- Een woning die je door een ringetje kan halen
- Perfecte ligging t.o.v. uitvalswegen naar Amsterdam en Utrecht
- Veel lichtinval door de grote raampartijen
- Heerlijke achtertuin en keurig onderhouden
- Schilderwerk 2025 voorkant en 2024 achterkant
- Deze woning wordt u aangeboden middels een bieden-vanaf-prijs.

Kortom: Valetaweg 94 is een verrassende en stijlvolle woning met karakter, ruimte, luxe én een fantastische tuin. Hier hoef je niets meer aan te doen.

Kenmerken