Beschrijving

Tenerifestraat 7 in Almere is wonen aan het water met ruimte, licht en luxe. Staat Makelaars biedt deze woning aan middels een keurige bieden-vanaf-prijs. Bekijk de woningvideo om een perfecte indruk te ontvangen van de woning.

Op zoek naar een woning die écht alles heeft? Dan is Tenerifestraat 7 in Almere absoluut een kans die je niet wilt missen. Deze verrassend ruime woning combineert een speelse indeling met een keurige afwerkingen, een prachtige ligging aan het water en een tuin die voelt als een privé-oase.

Het buitenleven - privacy & mogelijkheden:
Al bij binnenkomst op het perceel valt de royale voortuin op. Hier geniet je de hele dag door van de zon en verschillende zitplekken. Dankzij de vrije ligging kijk je ver door de straat en heb je alle privacy die je wenst. Voor de woning vind je een verlengde garage, ideaal voor auto, fietsen of als multifunctionele ruimte voor bijvoorbeeld een kantoor, salon of gym aan huis. Voor de garage ligt een eigen parkeerplaats met mogelijkheid tot elektrisch laden. Combineer dit met zonnepanelen en je bent klaar voor de toekomst.

De tuin is fraai aangelegd met een veranda, mooie bestrating, een groenaccent én een vijver. De ligging aan het water geeft je volop rust: via de zijtuin loop je zo naar de houten vlonder, waar je heerlijk geniet van het kabbelende water en het rustgevende uitzicht.

Licht, ruimte en luxe binnen:
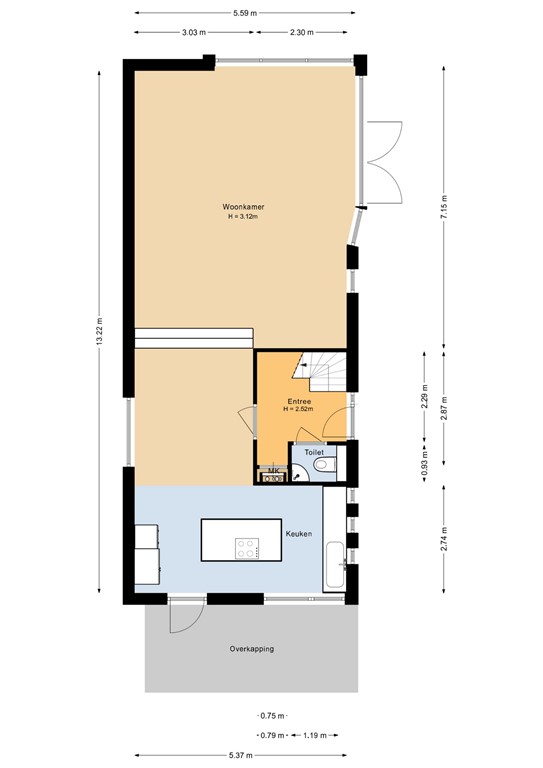
De woning zelf is tot in de puntjes verzorgd en instapklaar. De keuken, voorzien van een kookeiland, is een echte blikvanger en het hart van het huis. Dankzij de grote raampartijen aan de voorzijde en zijkant staat de woning in direct contact met de tuin en het water.

Het zitgedeelte is speels verlaagd en hierdoor voorzien van extra hoge plafonds. De schuifpui zorgt ervoor dat binnen en buiten naadloos in elkaar overlopen. Dit maakt het een unieke plek waar je altijd geniet van licht en ruimte. Tussen het zitgedeelte en de keuken bevindt zich een heerlijke plek waar gezelligheid samen komt middels een riante eetkamertafel.

Comfort op de verdiepingen:
Op de eerste verdieping vind je twee slaapkamers en een badkamer die pure ontspanning ademt, met een heerlijke douche en keurig sanitair. Het toilet is apart van de badkamer, wat extra comfort biedt.

De tweede verdieping is een waar master level: een royale slaapkamer met een eigen inloopkast/ruimte. Dit waren voorheen twee aparte kamers, waardoor je eenvoudig vier slaapkamers kunt creëren als je dat wenst. Verder vind je hier een aparte wasruimte met tevens de cv-opstelling.

Een bijzonder detail: de trappen, overloop en één van de slaapkamers zijn afgewerkt met onderhoudsvrij grind, wat zorgt voor een moderne en praktische uitstraling.

De pluspunten op een rij:
- Serre-uitbouw aan de voorzijde
- Kookeiland in de keuken
- Grote raampartijen en directe verbinding met de tuin, het water en de vlonder
- Toilet apart van de badkamer
- Twee ruime inloopkasten in twee slaapkamers
- Royale voortuin met veel privacy en vrij uitzicht
- Sfeervolle tuin met veranda, vijver en zijtuin aan het water
- Verlengde multifunctionele garage + eigen parkeerplek met laadmogelijkheid
- Tuin is door tuinarchitect (Warners tuinen) aangelegd
- Tuinverlichting en stopcontacten op diverse plaatsen in zij en voortuin aangelegd door Tuinarchitect
- Apart washok op de tweede verdieping

Tenerifestraat 7 in Almere biedt ruimte, luxe en flexibiliteit in één. Een woning waar je écht nooit meer weg wilt.

Kenmerken