Beschrijving

Staat Makelaars biedt aan: Schönbergweg 31 in Almere. Ruim, licht en ideaal gelegen wonen in Muziekwijk!
Deze woning wordt u aangeboden middels een bieden-vanaf-prijs.

Welkom bij deze verrassend ruime hoekwoning aan de Schönbergweg 31 in Almere. Dankzij de royale hoekligging, het ruime perceel en de zonnige achtertuin op het zuiden is dit een woning waar comfort en leefruimte perfect samenkomen. Het huis ligt in de geliefde Muziekwijk, een groene, rustige omgeving met scholen, speeltuinen, een winkelcentrum, station Muziekwijk én snelle verbindingen richting Amsterdam en het Gooi.
Hier woont u heerlijk vrij, met alle voorzieningen binnen handbereik.

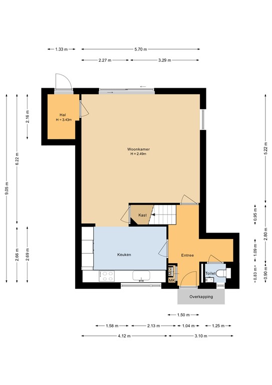
Begane grond:
Bij binnenkomst valt direct op hoe verzorgd en uitnodigend deze woning is. Via de hal met toilet en toegang tot zowel de woonkamer als de keuken, loopt u door naar de ruime, aan de voorzijde gelegen keuken. Deze is prettig opgezet, met volop werkbladruimte en een fijne plek om te koken terwijl u uitkijkt over de rustige straat.

Vanuit de keuken bereikt u de lichte en royale woonkamer, waar de grote raampartijen en de brede schuifpui meteen voor een open, frisse sfeer zorgen. Dankzij de zonnige ligging op het zuiden stroomt het daglicht hier de hele dag binnen. Aangrenzend vindt u nog een handige ruimte, ideaal als bijkeuken, extra berging of werkplek. De biopolymeer vloer op de gehele begane grond geeft het geheel een moderne, strakke uitstraling en zorgt voor eenheid in de leefruimte.

Eerste verdieping:
Op de eerste verdieping gaat de ruimtebeleving onverminderd verder. Hier bevinden zich drie volwaardige slaapkamers, waarvan twee aan de achterzijde en één aan de voorzijde. Alle kamers zijn heerlijk licht en bieden volop mogelijkheden voor een gezin, thuiswerkplek of hobbyruimte.

De badkamer is een echte verrassing: royaal opgezet en compleet uitgerust met een ligbad, een ruime inloopdouche, een toilet en een stijlvol wasmeubel met dubbele waskommen. Een fijne plek om de dag ontspannen te beginnen of juist rustig af te sluiten.

Tweede verdieping:
De tweede verdieping is een volwaardige verdieping en voelt als een extra woonlaag op zich. De royale open ruimte is nu ingericht als slaapkamer/werkkamer en extra ruimte, maar de mogelijkheden zijn eindeloos. Dankzij de grootte kunt u hier met gemak nog één extra slaapkamer realiseren, zonder dat de ruimte krap aanvoelt.

Tussen de verschillende delen bevindt zich een praktisch hoekje met aansluitingen voor de wasmachine en droger.

Buitenruimte:
De buitenruimte is absoluut een van de grootste pluspunten van deze woning. De zonnige achtertuin, gelegen op het zuiden, biedt de hele dag door zon en voelt dankzij de hoekligging extra ruim en vrij. Of u nu houdt van tuinieren, loungen, barbecueën of een speelplek voor de kinderen, hier kan het allemaal.

In de tuin staat een nette houten berging, ideaal voor fietsen en tuingereedschap. Dankzij de achterom bereikt u de tuin ook eenvoudig met de fiets of kinderwagen. De voortuin draagt bij aan de uitstraling van de woning en zorgt voor een extra welkom thuis gevoel.

Bijzonderheden:
- Hoekwoning op riant perceel
- Zonnige achtertuin op het zuiden
- Ruime keuken aan de voorzijde
- Lichte woonkamer met schuifpui
- Inpandige bijruimte (bijkeuken/berging)
- Drie slaapkamers op de eerste verdieping
- Grote badkamer met ligbad, inloopdouche en dubbele waskommen
- Riante tweede verdieping met een extra slaapkamer en mogelijkheid voor nóg een slaapkamer
- Gelegen in de geliefde Muziekwijk nabij alle voorzieningen

Een woning die u gezien móét hebben:
Schönbergweg 31 is een woning die verrast door ruimte, licht en mogelijkheden. Met zijn fijne afwerking, brede tuin, hoekligging en ideale locatie in Muziekwijk is dit een plek waar u zich direct thuis zult voelen.

Bent u nieuwsgierig geworden? Maak dan snel een afspraak voor een bezichtiging, deze woning ziet u het liefst in het echt!

Kenmerken