Beschrijving

Robert Hofstadterstraat 7 – instapklare en duurzame gezinswoning in Nobelhorst! Bekijk de woningvideo om een perfecte indruk te krijgen van deze fijne woning en haar ligging. De woning wordt aangeboden middels een bieden-vanaf-prijs.

Op zoek naar een moderne, energiezuinige woning waar je zó in kunt? Dan is Robert Hofstadterstraat 7 precies wat je zoekt. Deze uitgebouwde tussenwoning uit 2022 combineert comfort, ruimte en duurzaamheid op hoog niveau. Met energielabel A+++, een warmtepomp, warmte-terugwinsysteem, vloerverwarming door de gehele woning en maar liefst 9 zonnepanelen ben je hier helemaal klaar voor de toekomst.

Wat direct opvalt, is de fijne ligging aan een groen plantsoen met speeltuin aan de voorzijde. Ideaal voor gezinnen en een heerlijk vrij uitzicht vanuit de keuken.

Begane grond
Via de verzorgde voortuin bereik je de entree van de woning. In de hal bevinden zich het moderne toilet en de trapopgang naar boven.

De woonkamer is dankzij de uitbouw vanuit de bouw uitzonderlijk ruim: met een lengte van ruim 10,5 meter heb je hier alle ruimte voor een royale zithoek en een grote eettafel. De gehele begane grond is voorzien van comfortabele vloerverwarming. De dubbele openslaande deuren verbinden binnen en buiten op een prettige manier en geven toegang tot de achtertuin op het Noorden.

Aan de voorzijde van de woning bevindt zich de luxe parallelkeuken. Deze is volledig uitgerust met hoogwaardige inbouwapparatuur, waaronder twee combi-ovens, een koelkast, vriezer, vaatwasser, Bora kookplaat en een Quooker. Vanuit het keukenraam kijk je vrij uit over het plantsoen en de speeltuin, een heerlijk levendig en groen uitzicht.

Eerste verdieping
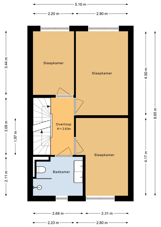
De eerste verdieping beschikt over drie volwaardige slaapkamers, waarvan twee aan de achterzijde en één aan de voorzijde van de woning.

De verdieping is hoogwaardig afgewerkt met een visgraat PVC-vloer en vloerverwarming, wat zorgt voor een luxe uitstraling en een strak, comfortabel woonklimaat.

De badkamer bevindt zich aan de voorzijde en is modern en compleet uitgevoerd met een ruime inloopdouche, een dubbele wastafel met meubel en een toilet.

Tweede verdieping
De zolderverdieping is verrassend ruim en biedt volop mogelijkheden. Momenteel ingericht als open ruimte, maar eenvoudig te gebruiken als vierde slaapkamer. Daarnaast is deze verdieping groot genoeg om op te splitsen in bijvoorbeeld een werkkamer en extra slaapkamer.

Ook deze verdieping is afgewerkt met een nette visgraat PVC-vloer en voorzien van vloerverwarming, waardoor het comfort en de uitstraling naadloos aansluiten op de rest van de woning.

Met het plaatsen van een dakkapel creëer je hier zelfs de mogelijkheid voor twee volwaardige slaapkamers.
Daarnaast vind je op deze verdieping de installatieruimte met de warmtepomp, het warmte-terugwinsysteem en de aansluitingen voor wasmachine en droger.

Buiten
De achtertuin is gelegen op het noord oosten en bereikbaar via de openslaande deuren. Een fijne plek om te ontspannen, met voldoende ruimte voor zowel een loungehoek als een eettafel.

De omgeving – Nobelhorst
Nobelhorst staat bekend om zijn dorpse karakter, groene opzet en kindvriendelijke sfeer. Je woont hier in een rustige wijk met veel speelgelegenheden, scholen, kinderopvang en sportfaciliteiten in de directe omgeving. Daarnaast zijn uitvalswegen richting Amsterdam en Lelystad snel bereikbaar en ben je binnen korte tijd in het centrum van Almere.

Bijzonderheden
- Energielabel A+++
- Bouwjaar 2022 (instapklaar en modern)
- Volledig voorzien van vloerverwarming (alle verdiepingen)
- Warmtepomp en warmte-terugwinsysteem aanwezig
- 9 zonnepanelen
- Luxe parallelkeuken met hoogwaardige inbouwapparatuur en Quooker
- Vrij uitzicht over plantsoen en speeltuin aan de voorzijde
- Drie slaapkamers op de eerste verdieping
- Moderne badkamer
- Royale zolder met mogelijkheid tot extra kamers
- Achtertuin op het Noorden

Kortom: een moderne, duurzame en bijzonder ruime gezinswoning op een toplocatie in Nobelhorst. Hier woon je comfortabel, energiezuinig én tot in detail strak afgewerkt – je hoeft alleen nog maar te verhuizen!

Kenmerken