Beschrijving

Wonen in ruimte, licht en comfort – welkom aan de Raoul Dufystraat 7 in Almere.

Op een rustige en kindvriendelijke locatie in Almere vind je deze royale eengezinswoning met verrassend veel leefruimte, een fijne indeling én een heerlijke tuin op het noordwesten. De woning biedt niet alleen veel binnenruimte, maar ook buiten heb je alle gemak: aan de voorzijde, aan de sfeervolle voortuin, kun je namelijk twee auto’s parkeren op eigen terrein. Hier vind je ook een ruim bestraat voorterras (patio-tuintje) waar je ’s ochtends al heerlijk van de eerste zon kunt genieten.

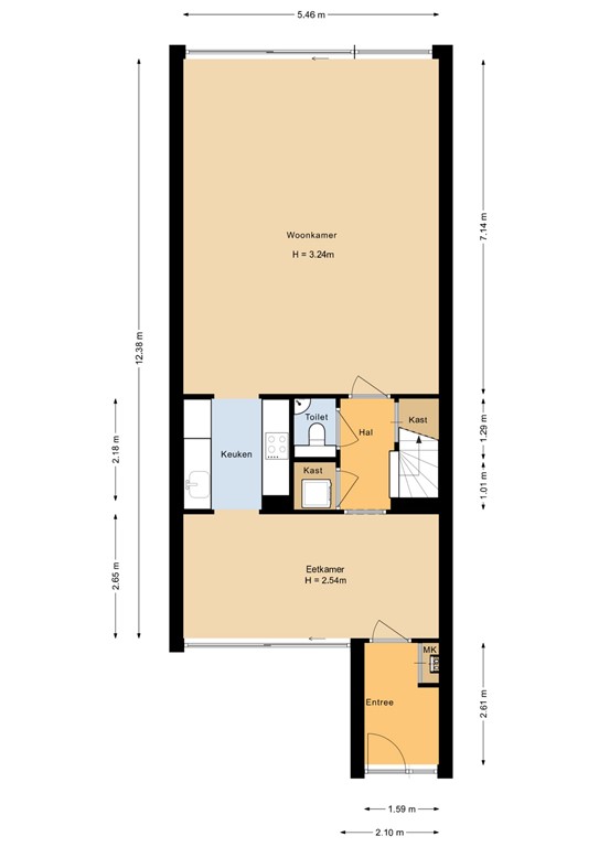
Begane grond:
Via de voordeur stap je binnen in een compacte hal met meterkast. Daarna betreed je direct het hart van de woning: een riante woonkeuken met volop ruimte voor een grote eettafel en meerdere stoelen. Dit is dé plek voor lange avonden tafelen of gezellig samen koken en eten. Door de grote raampartijen aan de voorkant van de woning, beleef je hier meer dan enkele binnen. De voortuin, zon en het buitenleven wordt zo perfect betrokken in uw dagelijks leven.

Aan de linkerzijde vind je de keuken, die in open verbinding staat met de royale woonkamer aan de achterzijde. Het zitgedeelte is opvallend licht dankzij de speelse verdeling in plafondhoogte, wat zorgt voor extra lichtinval én een ruimtelijk gevoel.

Kies je in de woonkeuken voor de rechterzijde, dan kom je via de hal bij het toilet, de wasruimte en de trapopgang. Onder de trap bevindt zich bovendien een praktische trapkast: ideaal voor extra bergruimte.

*Wij hebben als voorbeeld een keukenopstelling toegevoegd in de foto's. De mogelijkheden voor het plaatsen van de keuken zijn eindeloos. Graag vertellen wij er meer over tijdens de bezichtigingen.

Buitenleven:
De achtertuin is keurig aangelegd met bestrating, heeft een achterom én een houten berging. Door de ligging op het noordwesten kun je hier tot in de avond heerlijk genieten van de zon.

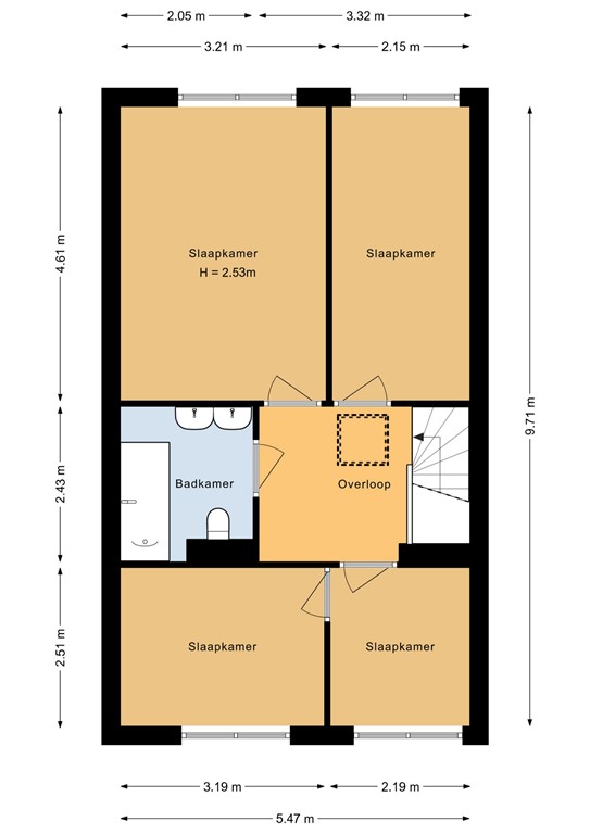
Eerste verdieping:
Op de eerste verdieping zijn vier volwaardige slaapkamers te vinden, twee aan de voorzijde en twee aan de achterzijde. De kamers aan de voorzijde bieden daarbij volop mogelijkheden, denk bijvoorbeeld aan een thuiskantoor of hobbyruimte.

De badkamer is centraal gelegen en voorzien van een ligbad, toilet en een dubbele wastafel. Ook de overloop is verrassend licht dankzij een nette lichtkoepel.

Samengevat:
- Ruime gezinswoning met royale leefruimtes
- Mechanische ventilatie vernieuwd in 2024
- Parkeren op eigen terrein voor twee auto’s
- Fijne patio aan de voorzijde en zonnige achtertuin met achterom
- Grote woonkeuken en lichte woonkamer met verhoogd plafond
- Vier goede slaapkamers en nette badkamer met ligbad
- Een keurige startprijs
- Praktische indeling met veel bergruimte

Kortom: een heerlijke plek voor wie op zoek is naar ruimte, comfort én een fijne buitenbeleving. Plan vandaag nog je bezichtiging!

---------------------- Engels ---------------------

Living with space, light and comfort – welcome to Raoul Dufystraat 7 in Almere.

In a quiet and child-friendly location in Almere, you will find this spacious family home with a surprising amount of living space, a practical layout, and a lovely northwest-facing garden. The property not only offers plenty of space indoors, but also excellent convenience outdoors: at the front, next to the charming front garden, you can park two cars on your own driveway. You’ll also find a generously paved front patio where you can enjoy the morning sun.

Ground floor:
Through the front door, you enter a compact hallway with the meter cupboard. From there, you step directly into the heart of the home: a spacious kitchen-diner with plenty of room for a large dining table and multiple chairs. This is the perfect spot for long evenings of dining or cooking and eating together. Thanks to the large windows at the front of the house, the indoor and outdoor spaces blend beautifully. The front garden, the sunlight, and the outdoors become a natural extension of your daily life.

On the left-hand side, you’ll find the kitchen, which connects openly to the generous living room at the rear. The sitting area is remarkably bright due to the playful variation in ceiling height, allowing extra daylight to flow in and creating an airy feel.

If you choose the right side in the kitchen-diner, you’ll reach the hallway leading to the toilet, laundry room, and staircase. Under the stairs is a practical storage cupboard – ideal for extra storage space.

Outdoor living:
The rear garden is neatly landscaped with paving, features a back entrance, and includes a wooden storage shed. Thanks to the northwest orientation, you can enjoy the sun here until the evening.

First floor:
On the first floor, you’ll find four full-sized bedrooms, two at the front and two at the rear. The rooms at the front offer plenty of versatility – ideal for a home office or hobby room, for example.
The bathroom is centrally located and equipped with a bathtub, toilet, and double sink. The landing is also pleasantly bright thanks to a neat skylight.

In summary:
- Spacious family home with generous living areas
- Mechanical ventilation renewed in 2024
- Parking on private property for two cars
- Pleasant front patio and sunny rear garden with back entrance
- Large kitchen-diner and bright living room with raised ceiling
- Four well-sized bedrooms and neat bathroom with bathtub
- Attractive starting price
- Practical layout with lots of storage space

In short: a wonderful place for anyone looking for space, comfort, and enjoyable outdoor living. Schedule your viewing today!

Kenmerken