Beschrijving

Staat Makelaars biedt aan: Polluxstraat 40 in Almere Poort
Een modern en licht 3-kamerappartement met vrij uitzicht, ruim balkon en centrale ligging in het populaire Homeruskwartier. Deze woning wordt aangeboden middels een bieden-vanaf-prijs. LET OP: geen lift aanwezig!

Wonen op een centrale en geliefde plek in Almere Poort? Dit verzorgde en lichte appartement op de tweede verdieping van een modern appartementencomplex biedt alles wat u zoekt. Met een woonoppervlakte van ca. 73m², een royaal balkon op het westen, een gezamenlijke binnentuin en een nette afwerking hoeft u alleen nog maar uw spullen neer te zetten en te genieten!

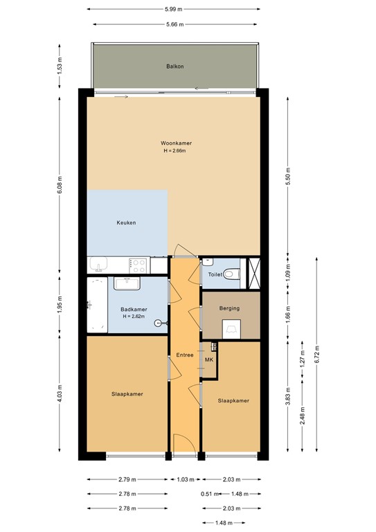
Indeling van het appartement
Via de afgesloten entree op de begane grond met bellentableau en brievenbussen bereikt u de trap naar de tweede verdieping.

De hal geeft toegang tot alle vertrekken en biedt extra bergruimte met een aparte wasruimte voor wasmachine en droger.
De lichte woonkamer is ruim van opzet en heeft grote raampartijen die zorgen voor veel daglicht. Vanuit de woonkamer bereikt u het zonnige balkon van circa 10 m², gelegen op het westen. Hier geniet u ’s middags en ’s avonds van de zon — een heerlijke plek om te ontspannen.

De moderne open keuken heeft een praktische hoekopstelling en is voorzien van diverse inbouwapparatuur, waaronder een combimagnetron, inductiekookplaat, koel-vriescombinatie en vaatwasser. Daarnaast is er voldoende kastruimte én plek voor een eettafel.

Aan de voorzijde van het appartement bevinden zich twee slaapkamers van verschillende afmetingen, ideaal in te richten als hoofdslaapkamer en logeer- of werkkamer.

De badkamer is volledig betegeld en uitgerust met een wastafel met meubel, inloopdouche en ligbad. Het separate toilet beschikt over een modern hangend closet met fonteintje.

Ligging en omgeving
De Polluxstraat ligt in het Homeruskwartier van Almere Poort, een jonge en levendige wijk met alle voorzieningen binnen handbereik. Op loop- en fietsafstand vindt u diverse supermarkten, scholen, een gezondheidscentrum, sportvoorzieningen, horeca, het strand van Almere Poort én het bos. De uitvalswegen A6 en A1 liggen om de hoek, waardoor u binnen no-time in Amsterdam bent. Ook het NS-station Almere Poort en de bushalte zijn dichtbij — ideaal voor forenzen!

Aan de achterzijde van het complex bevindt zich bovendien een gezamenlijke binnentuin met fruitbomen, een groot gazon en speeltoestellen. Een fijne plek voor bewoners en gezinnen.

Bijzonderheden
- Woonoppervlakte: ca. 73 m²
- Energielabel: A
- Bouwjaar: 2012
- Vrij uitzicht aan voor- en achterzijde
- Geheel voorzien van vloerverwarming
- Gezamenlijke binnentuin met speelgelegenheid
- Actieve VvE, bijdrage: € 163,- per maand
- Geen lift aanwezig
- Aanvaarding: in overleg


Bent u enthousiast geworden?
Maak dan snel een afspraak voor een bezichtiging — wij laten u dit prachtige appartement graag zien!

Kenmerken