Beschrijving

Instapklaar appartement met twee slaapkamers, een moderne keuken en volledig verbouwd in 2023! Peter Sellershof 186 in Almere, een waar plaatje vlakbij het centrum van Almere. Staat Makelaars biedt deze woning aan middels een keurige bieden-vanaf-prijs.

Op zoek naar een compleet vernieuwd appartement waar je zó in kunt trekken? Dit appartement aan de Peter Sellershof 186 biedt alles wat je zoekt: een lichte woonkamer met open keuken, twee slaapkamers én een strak afgewerkte badkamer. Bovendien profiteer je van gratis bewonersparkeren en een ideale ligging in Almere.

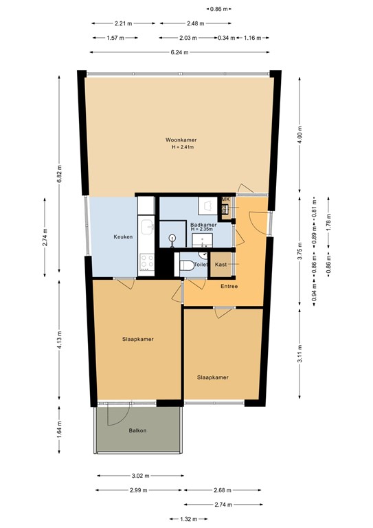
Verdieping:
Via de centrale entree kom je bij de woning. Vanuit de hal heb je toegang tot de twee slaapkamers, het toilet, de badkamer en de woonkamer.

Woonkamer & keuken:
De woonkamer is ruim en licht, met voldoende plek voor een gezellige zithoek en eettafel. De open keuken (2023) is geplaatst in een strakke uitvoering en voorzien van moderne apparatuur en veel opbergruimte. Vanuit de woonkamer bereik je bovendien direct de slaapkamer, die uitstekend als slaapkamer of werkkamer te gebruiken is.

Slaapkamers:
De woning beschikt over in totaal twee slaapkamers die vanuit de hal bereikbaar zijn. Alle kamers zijn netjes afgewerkt en voorzien van de in 2023 gelegde laminaatvloer met geluiddempende ondervloer. De masterbedroom is tevens vanuit de woonkamer/keuken bereikbaar. Een gezellig balkon direct grenzend aan de slaapkamer zorgt voor nog meer vrijheid.

Badkamer & toilet:
De badkamer is in 2023 vernieuwd en uitgevoerd met frisse tegels, een modern badkamermeubel en nette afwerking. Ook het separate toilet met fonteintje is volledig vernieuwd.

Tijdens de verbouwingen in 2023 zijn de volgende items meegenomen:
- Muren, plafonds, kozijnen en deuren geverfd
- Nieuwe laminaatvloer met geluiddempende ondervloer en nieuwe plinten
- Nieuwe wandcontactdozen en schakelaars
- Nieuwe keuken, heelrijk licht en ruim
- Nieuwe badkamermeubel, sanitair, tegels en fonteintje
- Nieuwe groepenkast

Omgeving:
Met het Lumière- en Ebenezer Howardpark om de hoek én dicht bij het centrum van Almere Stad is dit een super gewilde plek in Almere. Het centrum met alle voorzieningen en openbaar vervoer bevinden zich op loopafstand en ook voorzieningen zoals scholen, gezondheidscentra en culturele voorzieningen tref je in de buurt. De uitvalswegen richting de A6 en A27 zijn bereikbaar binnen enkele minuten.

Kortom: volledig instapklaar!

Parkeren:
Als bewoner parkeer je gratis in de buurt (via jaarlijkse registratie bij Parkeerservice Almere, kosteloos te verlengen). Bezoekers betalen in 2025 slechts €0,40 voor de hele dag – ideaal voor logees of bezoek!

Opleverdatum Peter Sellershof 186 Almere: na 10-11-2025.

Kenmerken