Beschrijving

Staat Makelaars biedt aan: Parkwijklaan 145 in Almere
Comfortabel wonen met veel licht, een zonnig dakterras en een verzorgde tuin, welkom in de populaire en kindvriendelijke wijk Parkwijk.

Bekijk de woningpresentatie voor een goede indruk van deze instapklare gezinswoning met energielabel A, een dakterras op het zuidwesten, een rustige ligging en alle voorzieningen binnen handbereik. De woning wordt aangeboden middels een bieden-vanaf-prijs.

Welkom bij Parkwijklaan 145
Deze goed onderhouden tussenwoning met dakterras op het zuidwesten is gelegen in het hart van de geliefde wijk Parkwijk in Almere. U woont hier centraal, maar toch rustig. Scholen, kinderopvang, winkels, gezondheidsvoorzieningen en het NS-station bevinden zich op korte afstand. Ook de uitvalswegen richting de A6 en A27 zijn snel bereikbaar, waardoor steden als Amsterdam, Utrecht en Lelystad eenvoudig aan te rijden zijn.

Indeling
Begane grond
Via de entree komt u in de hal met toilet, uitgebreide meterkast en trapopgang naar de eerste verdieping. De woonkamer is licht en prettig van formaat en biedt een fijne verbinding met de achtertuin. De begane grond is afgewerkt met een moderne vloer (2023), wat zorgt voor een strakke en verzorgde uitstraling.

Aan de voorzijde van de woning bevindt zich de keuken, vernieuwd in 2017 en praktisch ingericht met voldoende kastruimte en inbouwapparatuur. Dankzij de ligging aan de voorzijde is er prettig zicht op de straat.

De achtertuin is gelegen op het noordoosten en is in 2021 opnieuw aangelegd met keramische tegels, vernieuwde schuttingen en een nette berging met vernieuwde dakbedekking. De tuin is onderhoudsvriendelijk en beschikt over een achterom.

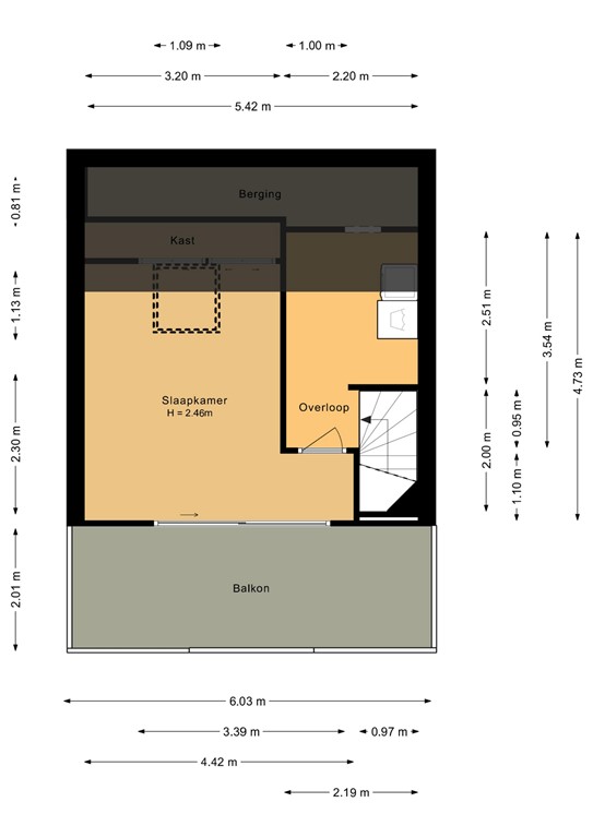
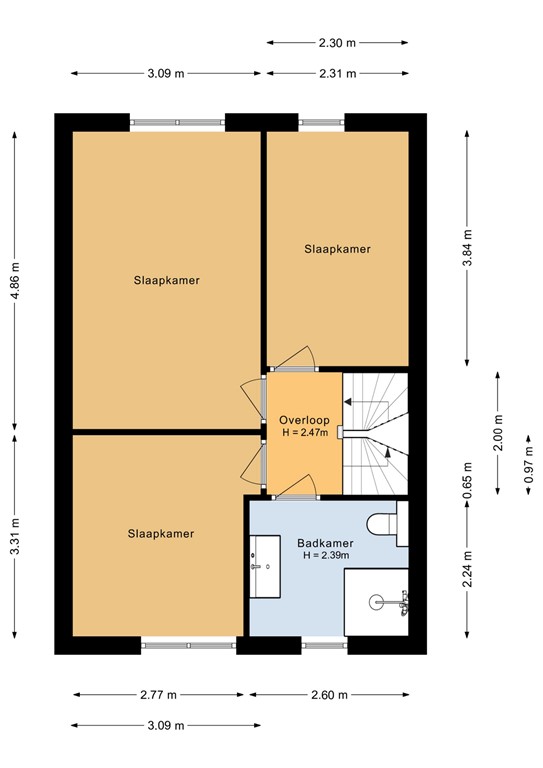
Eerste verdieping
De overloop geeft toegang tot drie slaapkamers, waarvan twee aan de achterzijde en één aan de voorzijde. Alle kamers zijn functioneel van formaat en keurig afgewerkt. De badkamer is in 2017 vernieuwd en modern ingericht met onder andere een douche, wastafelmeubel en toilet. 

Tweede verdieping
De zolderverdieping is een open en multifunctionele ruimte met een nette vloer en veel gebruiksmogelijkheden. In 2024 is hier een kunststof dakraam geplaatst, wat zorgt voor extra daglicht.
Via een schuifpui heeft u direct toegang tot het zonnige dakterras. Dit dakterras is gunstig gelegen op het zuidwesten en voorzien van vernieuwde dakbedekking (2025), een heerlijke plek om tot in de avond van de zon te genieten.

Tuin & buitenruimte
De achtertuin is strak en verzorgd aangelegd en biedt voldoende ruimte om comfortabel buiten te zitten. De houten berging is vernieuwd met composiet bekleding en biedt praktische opbergruimte voor fietsen en tuingereedschap. Het dakterras vormt een waardevolle extra buitenruimte en maakt deze woning compleet.

Bijzonderheden
- Energielabel A
- Instapklare en goed onderhouden gezinswoning
- Drie slaapkamers op de eerste verdieping
- Zonnig dakterras op het zuidwesten, bereikbaar via schuifpui
- Keurig aangelegde achtertuin op het noordoosten
- Keuken, badkamer en toilet vernieuwd in 2017
- Gehele woning voorzien van kunststof kozijnen
- Dakbedekking dakterras recent vernieuwd (2025)
- Centrale ligging nabij NS-station Almere Parkwijk
- Oplevering in overleg

De locatie
Parkwijklaan 145 ligt in een rustige en kindvriendelijke woonomgeving met alle dagelijkse voorzieningen binnen handbereik. Scholen, winkels, sportfaciliteiten en het NS-station Almere Parkwijk bevinden zich op korte afstand. Ook het centrum van Almere en de uitvalswegen A6 en A27 zijn snel bereikbaar.

Maak kennis met deze complete gezinswoning
Zoekt u een goed onderhouden woning met energielabel A, een zonnig dakterras en een fijne ligging in Parkwijk?
Dan is Parkwijklaan 145 absoluut een bezichtiging waard.

Neem vandaag nog contact op met Staat Makelaars voor een afspraak – wij laten u deze woning graag zien!

Kenmerken