Beschrijving

Staat Makelaars biedt aan: Ommelandvaart 22, een vrijstaande split-level woning van 153 m² met een bijzondere indeling, hoge plafonds en een groene tuin rondom. De Ommelandvaart 22 wordt aangeboden middels een bieden-vanaf prijs. Bekijk de woningvideo om een perfecte indruk van deze woning en haar omgeving te krijgen. 

Op zoek naar een vrijstaande woning waarin ruimte, licht, privacy en duurzaamheid samenkomen? Dan is Ommelandvaart 22 een woning die je zeker niet mag missen. Deze speels ingedeelde split-level woning staat op een royale hoekkavel van 517 m², beschikt over een moderne keuken uit 2020, een indrukwekkende woonkamer met een plafondhoogte van maar liefst 3,44 meter en vier ruime slaapkamers. De geïsoleerde drive-in garage biedt volop mogelijkheden voor kantoor, praktijkruimte of studio aan huis. Dankzij de 15 zonnepanelen, HR++ glas en energielabel A+ woon je hier met lage energielasten én toekomstbestendig comfort.

De omgeving
De woning is gelegen in een rustige, groene woonomgeving waar privacy en ruimte centraal staan. Toch zijn voorzieningen zoals scholen, supermarkten, speeltuinen en sportvoorzieningen dichtbij huis. Wandelaars en natuurliefhebbers kunnen hun hart ophalen in de omliggende groengebieden en de nabijgelegen Oostvaardersplassen. De bereikbaarheid is uitstekend: het NS-station en diverse bushaltes liggen binnen handbereik en met de A6 en A27 op korte afstand rijd je eenvoudig richting Amsterdam, Utrecht of Lelystad. Een fijne woonlocatie voor wie rust zoekt zonder afgelegen te wonen.

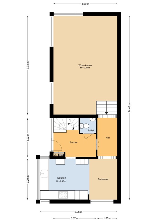
Begane grond/ Souterrain
De woning heeft een karakteristieke en speelse entree: via een trap bereik je de voordeur, wat direct het unieke split-level karakter onderstreept. De ruime hal bij binnenkomst vormt een centraal knooppunt in de woning. Vanuit hier heb je direct toegang tot zowel de hoger gelegen keuken als de lager gelegen woonkamer. Dit maakt de hal niet alleen functioneel, maar ook een opvallend prettige binnenkomer met veel ruimte en licht.

Op de benedenverdieping bevindt zich de geïsoleerde drive-in garage, met een totale souterrainoppervlakte van circa 32,8 m². Deze ruimte is ideaal voor het stallen van een auto, maar door de isolatie en de royale afmetingen tevens zeer geschikt als studio, praktijkruimte of kantoor aan huis. Aangrenzend tref je de wasruimte, praktisch gesitueerd op de laagste verdieping van de woning.

De woonverdieping: keuken en woonkamer
De keuken bevindt zich op het hogere splitlevel boven de garage. Deze moderne keuken uit 2020 is stijlvol, ruim en volledig uitgerust met onder meer een Quooker, 5 pits-inductiekookplaat, combi-oven, vaatwasser, koel-vriescombinatie en een hoogwaardig granieten werkblad. De verhoogde ligging zorgt voor een prettige lichtinval en een fijn zicht over de voortuin.

Enkele treden lager ligt de indrukwekkende woonkamer, het hart van de woning. Met een plafondhoogte van 3,44 meter en grote raampartijen voelt de woonkamer bijzonder ruim en open aan. Het vele daglicht, het zicht op de groene achtertuin en de rustige ligging aan de achterkant van de woning creëren een heerlijke leefruimte waar je werkelijk kunt ontspannen. De woonkamer is afgewerkt met een massief eiken parketvloer, wat de ruimte een warme en hoogwaardige uitstraling geeft. Dankzij de hoekligging geniet je hier van optimale privacy.

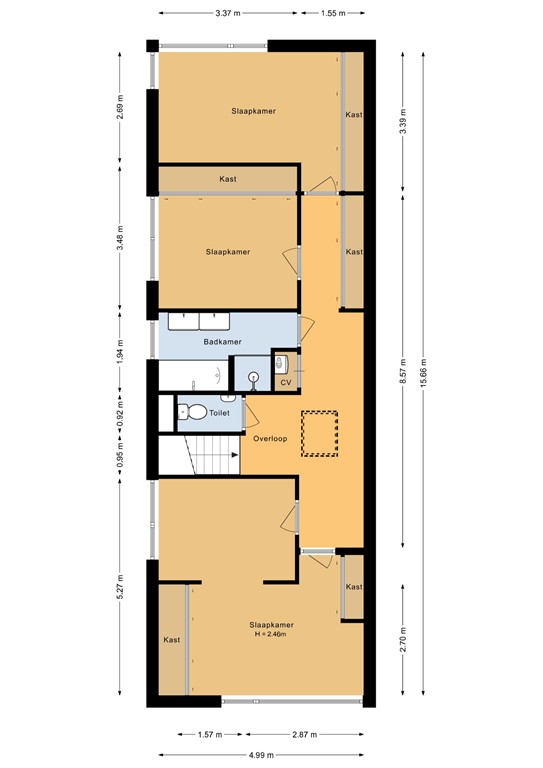
Eerste verdieping
De lichte overloop op de bovenste verdieping wordt verrijkt door een grote lichtkoepel, die de gehele verdieping voorziet van daglicht. Hier bevinden zich vier comfortabele slaapkamers en de badkamer. Aan de voorzijde zijn twee slaapkamers samengevoegd tot één grote woningbrede kamer. Deze ruimte is ideaal als master bedroom, maar kan eenvoudig weer worden opgesplitst in twee afzonderlijke kamers. Aan de achterzijde liggen nog twee ruime slaapkamers, waarvan één eveneens woningbreed.

De badkamer beschikt over een ligbad, een douche en een dubbele wastafel. Het toilet bevindt zich apart van de badkamer, wat praktisch is voor dagelijks gebruik.

Duurzaamheid en afwerking
De woning is uitstekend onderhouden en zeer energiezuinig uitgevoerd. Met 15 zonnepanelen, HR++ glas en een energielabel A+ ben je verzekerd van lage energielasten. De geïsoleerde garage biedt extra mogelijkheden voor het creëren van een werkruimte of praktijk, wat perfect aansluit op de woonwensen van deze tijd.

Het perceel en de tuin
De woning staat op een bijzonder ruime hoekkavel van 517 m², waarbij extra grond van de gemeente is aangekocht om de tuin verder te vergroten. Hierdoor is een fraaie, groene en volledig privé gelegen buitenruimte ontstaan. Aan de voorzijde ligt een ruime oprit met carport, waar meerdere auto’s comfortabel geparkeerd kunnen worden. De tuin loopt rondom de woning en biedt de hele dag door mogelijkheden om van de zon te genieten. De zon komt op aan de voorzijde, draait over de zijkant van de tuin en gaat onder achter in de diepe en groene achtertuin. Een heerlijke plek om te ontspannen, te tuinieren of lange zomeravonden door te brengen.

Bijzonderheden
- Energielabel A+
- Woonoppervlakte ca. 153 m²
- Vrijstaande split-level woning op royale hoekkavel van 517 m²
- Woonkamer met 3,44 m hoog plafond en massief eiken parketvloer
- Moderne keuken (2020) met Quooker en granieten werkblad
- Vier slaapkamers, mogelijkheid tot creëren extra kamer(s)
- Geïsoleerde drive-in garage met circa 32,8 m² souterrainruimte
- Parkeren op eigen terrein met carport
- Zonnepanelen (15 stuks) en HR++ glas
- Zonnige tuin rondom met optimale privacy

Kortom
Ommelandvaart 22 is een vrijstaande woning met een speelse split-level indeling, een royale woonoppervlakte van 153 m² en een perceel van 517 m² dat volledige privacy biedt. De hoge woonkamer, de moderne keuken, de vier ruime slaapkamers en de veelzijdige garage maken dit een woning die geschikt is voor een brede doelgroep. Met zijn groene ligging, energiezuinigheid en uitstekende bereikbaarheid is het een plek waar je direct kunt gaan wonen én genieten.

Wil je deze woning met eigen ogen ervaren? Maak dan snel een afspraak voor een bezichtiging — wij laten je dit unieke huis graag zien!

Kenmerken