Nieuw in verkoop

Te koop: Novemberstraat 13, 1335 EW Almere

€ 500.000,- k.k. € 3.144,65/m2

Beschrijving

Fantastisch gelegen aan het park, een woonkamer van maar liefst 60m² én op loopafstand van station en winkels verwelkomt Staat Makelaars u aan de Novemberstraat 13 in Almere! Staat Makelaars biedt deze woning aan middels een keurige bieden-vanaf-prijs.

Ben je op zoek naar een uniek huis met een speelse indeling, veel leefruimte en een ligging die rust én bereikbaarheid combineert? Dan is deze woning aan de Novemberstraat 13 in Almere echt iets voor jou. Aan de achterzijde grenst het perceel aan een bosrand je eigen ‘oneindige’ bostuin en vanaf het royale balkon op de eerste verdieping kijk je vrij weg over het groen. Binnen vijf minuten loop je naar het NS-station Almere Buiten en het gelijknamige winkelcentrum. Deze woning is ideaal voor wie ruim, comfortabel én praktisch wil wonen.

Begane grond:
Via de voortuin bereik je direct de inpandige berging, ideaal voor fietsen, opslag of als werkruimte. Deze schuur is verbonden met de hal, waardoor je gemakkelijk binnenkomt, ook als het regent. Voor de woning bevindt zich een ruime parkeerplek op eigen terrein, onder een keurige overkapping.

Bij binnenkomst in de hal tref je het toilet, de trapopgang en de doorgang naar de open leefruimte beneden. De begane grond is voorzien van een nette laminaatvloer en ingericht met een moderne half open keuken, uitgerust met alle gewenste inbouwapparatuur. Dankzij deze indeling vormt de keuken één geheel met de rest van de ruimte perfect als woonkeuken, eetkamer of zelfs als woonkamer.

Aan de achterzijde ligt de zonnige tuin op het zuidwesten. Hier geniet je tot in de avond van de zon. De tuin is keurig aangelegd, beschikt over een extra berging en grenst aan een rustige bosrand een bijzonder fijne plek met veel privacy en groen uitzicht.

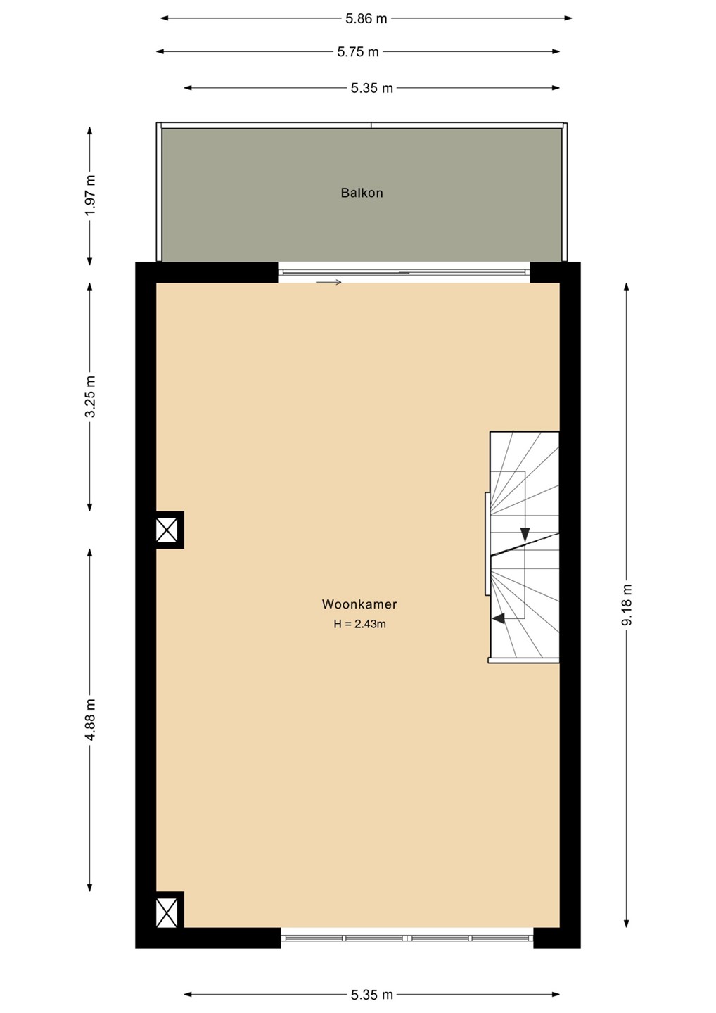
Eerste verdieping: een woonkamer met de wauw-factor!
Uniek aan deze woning is de gigantische woonkamer van circa 60m² op de eerste verdieping. Een zeldzame ruimte, met grote raampartijen en fantastisch vrij uitzicht over het bos. Via de schuifpui bereik je het ruime dakterras, ook op het zuidwesten. Het zonnescherm zorgt ervoor dat je hier comfortabel zit, in zon of schaduw. *Deze ruimte is eenvoudige op te delen in tweeën. Hierbij creëert u een slaapkamer extra en houdt u voldoende ruimte over voor een ruime woonkamer (tussen de foto's hebben wij als optie, een extra slaapkamer toegevoegd).

Extra bijzonder: deze verdieping is voorzien van een ingebouwde thuisbioscoop met elektrisch projectiescherm van 3 meter breed, ideaal voor filmavonden met vrienden of familie.
Dankzij de indeling is deze etage eenvoudig aan te passen naar meerdere (slaap)kamers, als jouw wensen veranderen.

Tweede verdieping:
Op de bovenste verdieping bevinden zich drie volwaardige slaapkamers en een royale badkamer. De badkamer is uitgerust met een ligbad, wastafel en toilet. Er is daarnaast voldoende ruimte om hier nog een aparte douche te realiseren. Ook vind je hier een aparte wasruimte/berging met aansluitingen voor wasmachine en droger, én de opstelling van de cv-ketel.

Buitenruimte:
De woning beschikt over een voortuin met parkeergelegenheid onder een overkapping, een zonnige achtertuin grenzend aan een bosrand én een heerlijk balkon/dakterras op de eerste verdieping. Zowel tuin als terras liggen op het zuidwesten, waardoor je optimaal van de zon kunt genieten.

Ligging: groen, rustig én centraal
Wat deze woning echt bijzonder maakt is de ligging: aan de achterzijde vrij uitzicht over een groene bosrand, aan de voorzijde op slechts vijf minuten lopen van station Almere Buiten, winkelcentrum, scholen en andere voorzieningen. Dit is wonen in het groen zonder concessies te doen aan bereikbaarheid.

Bijzonderheden:
- Speelse indeling met volop mogelijkheden
- Tuin én balkon/dakterras op het zuidwesten
- Tuin aan bosrand gelegen voor rust en privacy
- Parkeren op eigen terrein onder overkapping
- Schilderwerk 2021 buiten
- Inpandige berging via de voortuin én binnendoor bereikbaar
- Open keuken met alle gewenste inbouwapparatuur
- Laminaatvloer op de begane grond
- Mogelijkheid tot wonen en slapen op meerdere verdiepingen
- Drie slaapkamers op de tweede verdieping
- Grote badkamer met ligbad en ruimte voor extra douche
- Aparte wasruimte met cv-opstelling
- Gelegen in een rustige, kindvriendelijke straat met alle voorzieningen nabij

Zie jij jezelf al wonen aan de Novemberstraat 13? Neem dan snel contact met ons op voor een bezichtiging en ontdek zelf hoe veelzijdig en comfortabel deze woning is!

---------------------------------

Space, Sunshine, and Playful Possibilities at Novemberstraat 13 in Almere! Staat Makelaars presents this property with a competitive starting price.

Are you looking for a surprising home with generous living space, full flexibility, a sunny garden, and a rooftop terrace? Then this property at Novemberstraat 13 in Almere is exactly what you’ve been searching for! With three floors, a playful layout, private parking, and a lovely location on the edge of a forest, this home has all the ingredients for comfortable living.

Ground Floor:
Through the front garden, you have direct access to the internal storage room—perfect for bikes, storage, or even a workspace. This shed is connected to the hallway, allowing easy entry even on rainy days. In front of the house is a spacious private parking spot under a neat carport.

Upon entering the hallway, you’ll find the toilet, staircase, and access to the open-plan living area. The ground floor features a neat laminate floor and a modern semi-open kitchen, equipped with all the desired built-in appliances. This layout allows the kitchen to seamlessly flow into the rest of the space, making it ideal as a live-in kitchen, dining area, or even as your main living room.

At the rear, the sunny southwest-facing garden awaits. Here you can enjoy sunlight well into the evening. The garden is nicely landscaped, includes an extra shed, and borders a quiet forest edge—a wonderfully private and green retreat.

First Floor:
The current owners have transformed the first floor into a cozy living room—a playful yet effective choice. Large windows provide plenty of natural light and a spacious feel. Sliding doors lead to the generous rooftop terrace, also southwest-facing. With a comfortable sunshade, you can choose between sun and shade as you please. This outdoor space truly extends your living area. Prefer a bedroom on this floor? That’s entirely possible too—this level can easily be adapted to your needs.

Second Floor:
The top floor offers three full-sized bedrooms and a spacious bathroom, fitted with a bathtub, sink, and toilet. There’s also enough room to add a separate shower if desired. Additionally, there is a separate laundry/storage room with connections for a washer and dryer, and the central heating system.

Outdoor Space:
The home offers a front garden with covered parking, a sunny backyard bordering a forest edge, and a wonderful balcony/rooftop terrace on the first floor. Both the garden and the terrace face southwest, ensuring plenty of sunshine throughout the day.

Highlights:

Playful layout with many possibilities
Garden and rooftop terrace facing southwest
Backyard borders a forest for peace and privacy
Private parking under a carport
Exterior paintwork done in 2021
Internal storage accessible from both inside and the front garden
Open-plan kitchen with all desired built-in appliances
Laminate flooring on the ground floor
Flexible layout: live and sleep on multiple levels
Three bedrooms on the top floor
Large bathroom with bathtub and space for separate shower
Separate laundry room with central heating system
Located in a quiet, child-friendly street with all amenities nearby
Can you already picture yourself living at Novemberstraat 13?
Get in touch with us today to schedule a viewing and discover just how versatile and comfortable this home truly is!

Kenmerken

Overdracht
Prijs € 500.000,- k.k.
Status Nieuw in verkoop
Aanvaarding In overleg
Aangeboden sinds Maandag 3 november 2025
Bouw
Type object Herenhuis, woonhuis, tussenwoning
Soort bouw Bestaande bouw
Bouwjaar 1999
Isolatievormen Dubbel glas
Oppervlaktes en inhoud
Perceeloppervlakte 150 m²
Woonoppervlakte 159 m²
Inhoud 561 m³
Oppervlakte overige inpandige ruimten 8 m²
Oppervlakte externe bergruimte 3 m²
Oppervlakte gebouwgebonden buitenruimte 12 m²
Indeling
Aantal bouwlagen 3
Aantal kamers 6 (waarvan 4 slaapkamers)
Locatie
Ligging Aan bosrand
Aan rustige weg
In woonwijk
Tuin
Type Achtertuin
Hoofdtuin Ja
Oriëntering Zuid-west
Heeft een achterom Ja
Staat Normaal
Tuin 2 - Type Achtertuin
Tuin 2 - Staat Normaal
Energieverbruik
Energielabel A
CV ketel
CV ketel Vaillant HR Ecotec plus
Warmtebron Gas
Bouwjaar 2016
Combiketel Ja
Eigendom Eigendom
Uitrusting
Warm water CV-ketel
Verwarmingssysteem Centrale verwarming
Badkamervoorzieningen Ligbad
Toilet
Wastafel
Glasvezelaansluiting aanwezig Ja
Tuin aanwezig Ja
Heeft schuur/berging Ja
Heeft een schuifpui Ja
Heeft ventilatie Ja
Kadastrale gegevens
Kadastrale aanduiding Almere B 2864
Perceeloppervlakte 150 m²
Omvang Geheel perceel
Eigendomsituatie Eigen grond
Neem contact met mij op
Sluiten

Recent bekeken