Beschrijving

Murenepad 18 in Almere, ruimte, licht en comfort op een fijne locatie in Almere Stad! Bekijk de woningvideo om een perfecte indruk van de woning en omgeving te ontvangen. Deze woning wordt u aangeboden middels een bieden-vanaf-prijs. Let op: oplevering kan per direct!

Op zoek naar een ruime woning met uitgebouwde woonkamer, zonnige tuin én een extra grote tweede verdieping? Dan is deze uitgebouwde eengezinswoning aan het Murenepad 18 precies wat je zoekt. Gelegen in een rustige, kindvriendelijke straat, met de Albert Heijn om de hoek, het openbaar vervoer en scholen op loopafstand, combineert deze woning het beste van comfortabel wonen en een centrale ligging. Er wordt geadverteerd met 4 slaapkamers, dit is omdat er voorheen 4 slaapkamers waren en er dus ook een mogelijkheid is om dit terug te brengen naar originele staat.

Voortuin:
De voortuin is netjes aangelegd en biedt ruimte voor het stallen van fietsen of het plaatsen van een gezellig zitje. Dankzij het rustige straatbeeld en het groene karakter van de wijk, stap je hier elke dag met een prettig gevoel je woning binnen.

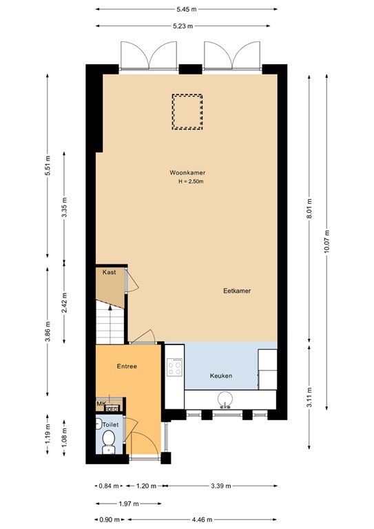
Begane grond:
Bij binnenkomst tref je een lichte hal met meterkast, toilet en trapopgang naar boven. De ruime woonkamer is in 2009 uitgebouwd, wat zorgt voor een heerlijk royale leefruimte met volop indelingsmogelijkheden. Grote raampartijen en twee dubbele openslaande deuren naar de tuin zorgen voor veel daglicht. De vloer is prachtig en geeft een warm gevoel aan de "al" sfeervolle woning.

De open keuken aan de voorzijde is uitgevoerd in een moderne stijl en biedt volop kastruimte, werkblad en diverse inbouwapparatuur. Een ideale plek om uitgebreid te koken terwijl je in contact blijft met het gezin of je gasten.

Eerste verdieping:
Op de eerste verdieping bevinden zich twee goed bemeten slaapkamers en een nette badkamer. De kamers zijn licht en praktisch ingedeeld, perfect bemeten en ruim opgezet. De slaapkamer aan de achterzijde van de woning kan opgedeeld worden in twee slaapkamers, voor nog meer wooncomfort. De badkamer is compleet met een inloopdouche, wastafelmeubel en tweede toilet. De kozijnen op deze verdieping zijn vervangen door onderhoudsarme kunststof kozijnen, wat bijdraagt aan duurzaamheid en isolatie.

Tweede verdieping:
De zolder is voorzien van een extra opbouw, waardoor hier een verrassend ruime extra verdieping is ontstaan. Ideaal als riante ouderslaapkamer, werkkamer of zelfs een combinatie van beide. Er is bovendien volop bergruimte en ruimte voor de wasmachine- en drogeraansluiting. Ook op deze verdieping zijn de kozijnen uitgevoerd in kunststof, wat zorgt voor een moderne uitstraling en weinig onderhoud. Dankzij de opbouw geniet je hier van extra licht en een prettig wooncomfort.

Achtertuin:
De achtertuin is gelegen op het zonnige zuidwesten: ideaal voor zonliefhebbers! Hier kun je na een lange werkdag heerlijk ontspannen met een drankje in de zon. De tuin is verzorgd aangelegd, biedt veel privacy en beschikt over een achterom en vrijstaande berging voor extra opslagruimte.

De omgeving:
Murenepad 18 ligt in een rustige straat in de populaire Waterwijk van Almere Stad. Binnen enkele stappen sta je bij de Albert Heijn, basisscholen, speelgelegenheden en de bushalte met directe verbinding naar het centrum en station. Ook ben je met de fiets of auto zo bij het Weerwater, het stadscentrum van Almere, uitvalswegen richting A6/A27 en recreatiemogelijkheden in de natuur. Dit is een buurt waar je met veel plezier woont!

Bijzonderheden:
- Woonkamer uitgebouwd in 2009
- Extra grote tweede verdieping door opbouw
- Kunststof kozijnen op de eerste én tweede verdieping
- Zonnige tuin op het zuidwesten
- Ruime eengezinswoning met veel licht
- Nabij winkels, openbaar vervoer en scholen
- Rustige en kindvriendelijke woonomgeving
- 5 zonnepanelen
- Oplevering: per direct!

Wil je deze fijne woning zelf ervaren? Neem dan snel contact met ons op voor een bezichtiging, je bent van harte welkom aan het Murenepad 18!

Kenmerken