Beschrijving

Staat Makelaars biedt aan: Marjoleinstraat 27 in Kruidenwijk middels een keurige bieden-vanaf-prijs.

Welkom aan de Marjoleinstraat 27, een fraaie hoekwoning in de geliefde Kruidenwijk in Almere. Deze wijk staat bekend om haar rustige, groene opzet en kindvriendelijke karakter, met volop speelgelegenheden, scholen en winkels in de directe omgeving. De bereikbaarheid is uitstekend: zowel het openbaar vervoer als de uitvalswegen richting de A6 en A27 zijn snel en eenvoudig te bereiken. Ook het stadscentrum van Almere ligt op korte afstand, waardoor je hier woont met alle voorzieningen binnen handbereik, maar wel in een ontspannen woonomgeving.

Bij aankomst valt direct de hoekligging op, wat zorgt voor extra ruimte en privacy. Parkeren doe je comfortabel op eigen terrein, een groot pluspunt in het dagelijks gebruik.

Voortuin:
Aan de voorzijde van de woning bevindt zich een verzorgde voortuin met parkeergelegenheid op eigen terrein, wat zorgt voor extra comfort en gemak in het dagelijks gebruik. Je parkeert hier eenvoudig je auto op eigen grond, altijd dichtbij huis. Daarnaast is er een praktische stenen berging aanwezig, ideaal voor het stallen van fietsen, gereedschap of tuinmeubilair. De berging is recent voorzien van een nieuw dak, wat bijdraagt aan de duurzaamheid en het onderhoudsarme karakter. Samen vormt de voortuin een functionele en nette entree die perfect past bij het comfortabele woonbeeld van deze woning.

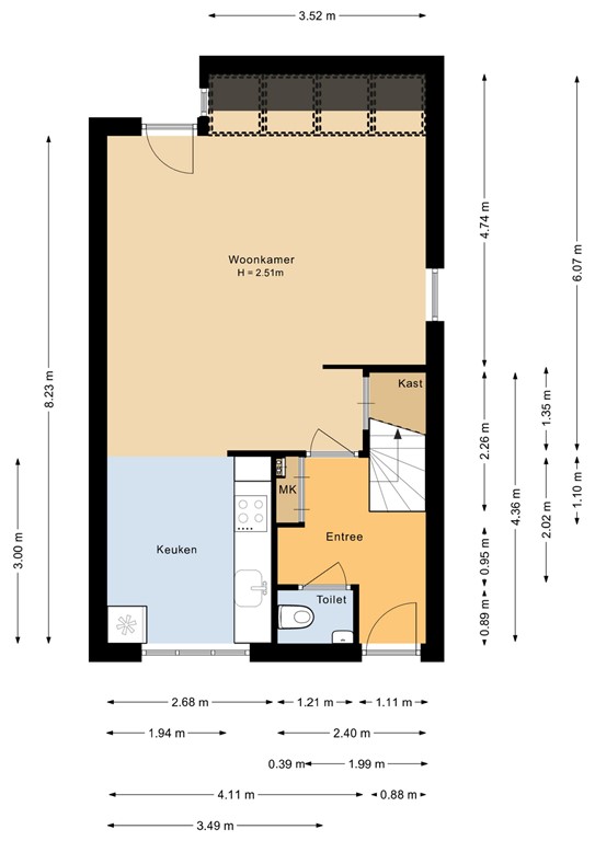
Begane grond:
Via de entree betreed je de woning en loop je door naar de leefruimte, waar direct de ruimtelijkheid en het licht opvallen. De open keuken vormt het hart van de begane grond en sluit naadloos aan op de woonkamer. Deze indeling zorgt voor een fijne verbinding tussen koken, eten en ontspannen, ideaal voor gezinnen en voor wie graag gasten ontvangt.

De woonkamer is zonder twijfel een van de meest bijzondere plekken in huis. Aan de achterzijde zijn indrukwekkende raampartijen gerealiseerd die schuin doorlopen richting het plafond. Dit architectonische detail zorgt voor een zee aan daglicht en geeft de ruimte een extra gevoel van hoogte en vrijheid. De tuin wordt hierdoor als het ware bij de woonkamer betrokken, wat de leefruimte nog prettiger maakt.

Eerste verdieping:
Op de eerste verdieping bevinden zich twee goed bemeten slaapkamers (voorheen 3 slaapkamers). Dankzij de praktische indeling zijn alle kamers veelzijdig te gebruiken, bijvoorbeeld als kinderkamer, werkkamer of logeerkamer. De overloop verbindt de vertrekken op een prettige manier en zorgt voor een rustige en overzichtelijke verdieping.

Tweede verdieping:
De vaste trap brengt je naar de riante zolderverdieping. Deze ruimte biedt verrassend veel mogelijkheden en kan uitstekend dienen als extra slaapkamer, thuiskantoor, hobbyruimte of zelfs als combinatie van meerdere functies. Door de royale afmetingen is dit een volwaardige verdieping die het wooncomfort aanzienlijk vergroot.

Tuin:
Via de woonkamer bereik je de riante achtertuin, die dankzij de hoekligging uitzonderlijk ruim is opgezet. De tuin is gelegen op het noordwesten, waardoor je hier vanaf de middag tot in de avond heerlijk van de zon kunt genieten. Door het royale formaat is er meer dan genoeg ruimte voor meerdere terrassen, speelgelegenheid of juist een groene, rustige indeling. In de zomer is de tuin een waar pareltje, met verschillende planten en bomen is het hier maximaal genieten. Een handige (grote) poort aan de zijkant van de woning is er zelf ruimte een boot/caravan of dergelijke op eigen terrein te plaatsen. De berging alsmede de schuur en het hek/poort zijn in 2026 opnieuw in de verf gezet. Prachtig!

*Een bijzonder en onderscheidend kenmerk van deze woning is de mogelijkheid om in de achtertuin een extra woning te realiseren. De gemeente heeft bevestigd dat het toegestaan is om een tiny house of kleine woning van maximaal 50 m² te bouwen. Dit biedt unieke kansen, bijvoorbeeld voor mantelzorg, een praktijk aan huis, verhuur of een zelfstandige woonruimte voor een familielid. Een zeldzame en waardevolle mogelijkheid die deze woning extra aantrekkelijk maakt. De combinatie van de noordwestelijke ligging, de enorme ruimte en het toekomstperspectief maakt deze tuin tot een absoluut hoogtepunt van de woning.

Samenvattend:
Marjoleinstraat 27 is een lichte en ruime hoekwoning met parkeren op eigen terrein, een open keuken, drie slaapkamers, een royale zolder en een riante tuin. Het bijzondere lichtinval in de woonkamer, dankzij de schuin doorlopende raampartijen, maakt deze woning echt uniek. In combinatie met de fijne ligging in Kruidenwijk is dit een ideale woning voor wie ruimte, licht en comfort zoekt in Almere.

----------- English version -------

Staat Makelaars presents: Marjoleinstraat 27 in Kruidenwijk, offered with an attractive “starting at” asking price.

Welcome to Marjoleinstraat 27, a beautiful corner house located in the popular Kruidenwijk district of Almere. This neighborhood is known for its peaceful, green layout and family-friendly character, with plenty of playgrounds, schools, and shops nearby. Accessibility is excellent: both public transport and the main roads towards the A6 and A27 motorways are quick and easy to reach. Almere’s city center is also just a short distance away, allowing you to enjoy all amenities within easy reach while living in a relaxed residential environment.

Upon arrival, the corner position immediately stands out, providing extra space and privacy. Parking is conveniently available on your own property, a major advantage in everyday life.

Front garden
At the front of the property you will find a well-maintained garden with private parking on site, offering extra comfort and convenience. You can easily park your car on your own driveway, always close to home. There is also a practical stone storage shed, ideal for bicycles, tools, or garden furniture. The shed has recently been fitted with a new roof, contributing to the durability and low-maintenance character of the property. Together, the front garden forms a functional and tidy entrance that perfectly matches the comfortable living experience this home offers.

Ground floor
Through the entrance you step into the home and continue into the living area, where the sense of space and light immediately stands out. The open-plan kitchen forms the heart of the ground floor and connects seamlessly with the living room. This layout creates a pleasant flow between cooking, dining, and relaxing — ideal for families or for those who enjoy entertaining guests.

The living room is undoubtedly one of the most special areas of the house. At the rear, impressive window panels extend diagonally towards the ceiling. This architectural feature floods the space with natural light and enhances the feeling of height and openness. The garden almost becomes an extension of the living room, making the living space even more enjoyable.

First floor
The first floor features two well-proportioned bedrooms (formerly three). Thanks to the practical layout, the rooms can be used flexibly, for example as children’s bedrooms, a home office, or a guest room. The landing connects the rooms in a pleasant and practical way, creating a calm and well-organized floor plan.

Second floor
A fixed staircase leads to the spacious attic floor. This area offers many possibilities and can easily serve as an additional bedroom, home office, hobby room, or even a combination of functions. Thanks to its generous dimensions, this is a full and functional floor that significantly increases the living comfort of the home.

Garden
From the living room you access the generous rear garden, which is exceptionally spacious thanks to the corner location. The garden faces northwest, allowing you to enjoy the sun from the afternoon until the evening. Its generous size provides more than enough space for multiple terraces, play areas, or a lush green layout.

In summer the garden truly becomes a highlight, with various plants and trees creating a wonderful atmosphere. A large side gate offers the possibility to park a boat, caravan, or similar vehicle on your own property. The storage shed, additional shed, and the fence/gate were repainted in 2026, giving everything a fresh and well-maintained appearance.

A unique and distinctive feature of this property is the possibility to build an additional dwelling in the rear garden. The municipality has confirmed that it is permitted to construct a tiny house or small home of up to 50 m². This offers exceptional opportunities, for example for informal care, a home-based practice, rental purposes, or independent living space for a family member. A rare and valuable option that makes this property even more attractive. The combination of the northwest orientation, the generous space, and the future potential makes this garden an absolute highlight of the home.

In summary
Marjoleinstraat 27 is a bright and spacious corner house with private parking, an open kitchen, three bedrooms, a generous attic floor, and a large garden. The remarkable natural light in the living room, thanks to the diagonally extended windows, makes this home truly unique. Combined with its pleasant location in Kruidenwijk, this is an ideal property for those seeking space, light, and comfort in Almere.

Kenmerken