Beschrijving

Staat Makelaars biedt aan: Marie Curiestraat 32 in Almere (Nobelhorst). Een instapklare gezinswoning met twee dakkapellen, twee badkamers, moderne afwerking én parkeren op eigen terrein.

Welkom bij deze prachtige eengezinswoning in de gewilde wijk "Nobelhorst". Een woning waar werkelijk alles klopt: strak afgewerkt, verrassend ruim én voorzien van alle comfort. Dankzij de dakkapellen aan zowel de voor- als achterzijde, twee complete badkamers en een heerlijk lichte woonkamer is dit huis een plek waar je direct verliefd op wordt.

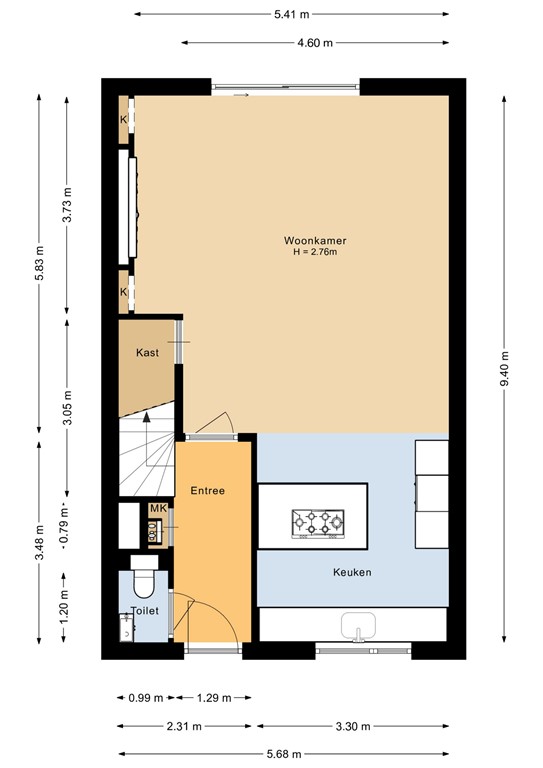
Begane grond:
Bij binnenkomst tref je een keurige hal met toegang tot het moderne toilet, de trapopgang en de woonkamer. De woonkamer is strak afgewerkt met gladde wanden en plafonds, een smaakvolle vloer gelegd én voorzien van vloerverwarming. Dankzij de grote raampartijen komt hier de hele dag door natuurlijk licht naar binnen en geniet je van een mooi zicht op de achtertuin.
Aan de voorzijde bevindt zich de luxe keuken. Deze is uitgerust met een kookeiland inclusief barretje, perfect voor een heerlijk ontbijt of gezellig borrelen tijdens het koken. Daarnaast is er een hoge kastenwand met alle inbouwapparatuur die je maar wenst: koelkast, vriezer, oven en meer. Hier kookt de hobbychef met plezier!

Achtertuin en voortuin:
De achtertuin is strak en onderhoudsvriendelijk aangelegd met nette bestrating en volop ruimte om te genieten van de zon. Uniek is dat je hier ook je auto kunt parkeren: via het achtergelegen hofje rijd je zo je tuin in. Daarnaast is er een houten berging aanwezig, ideaal voor fietsen of tuinspullen. De tuin wordt omringd door onderhoudsvrije schuttingen waardoor je optimaal privacy hebt. Ook aan de voorzijde van de woning is gedacht aan comfort. De voortuin is ruim opgezet, keurig aangelegd en biedt een fijne plek om in de ochtend of vroege middag van de zon te genieten.

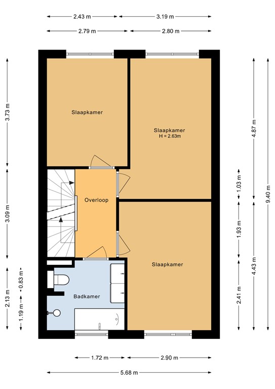
Eerste verdieping:
Op de eerste verdieping vind je drie goed bemeten slaapkamers, allen voorzien van een keurige vloer en vloerverwarming. De moderne badkamer heeft een luxe uitstraling met donkere accenten en is van alle gemakken voorzien: een inloopdouche, ligbad, tweede toilet én een dubbele wastafel met twee waskommen. Dankzij de inbouwspots en strakke afwerking is dit een plek om echt even tot rust te komen.

Tweede verdieping:
De tweede verdieping is een ware verrassing. Via de voorzolder met wasmachineaansluiting en cv-opstelling bereik je een ruime slaapkamer, die door de dakkapellen extra groot en licht aanvoelt. Hier vind je ook een inloopkast waar menig mode-liefhebber van droomt. Daarnaast beschikt deze verdieping over een tweede badkamer. Chic afgewerkt met lichte wandtegels, donkere vloertegels en inbouwspots. De ruimte is voorzien van een ligbad, een royale inloopdouche en wederom een dubbele wastafel met twee waskommen. Luxe ten top!

Locatie, wonen in Nobelhorst:
De woning ligt in de dorpse wijk Nobelhorst, een van de meest gewilde en kindvriendelijke buurten van Almere. Hier ervaar je een gezellige, groene en sociale leefomgeving met veel speelplekken, scholen, kinderopvang en sportfaciliteiten in de directe nabijheid. Nobelhorst heeft een dorps karakter met hofjes, een buurtwinkel en leuke ontmoetingsplekken. Daarbij woon je gunstig ten opzichte van de uitvalswegen (A6/A27) en ben je binnen no-time in het centrum van Almere of Amsterdam.

Bijzonderheden:
- Instapklare eengezinswoning
- Twee dakkapellen (voor én achter)
- Twee luxe badkamers
- Moderne keuken met kookeiland en bar
- Vloerverwarming op alle verdiepingen
- Strakke afwerking: glad stucwerk, visgraatvloer, inbouwspots
- Parkeren op eigen terrein in de achtertuin
- Ruime voortuin én achtertuin met berging
- Gelegen in de populaire wijk Nobelhorst

Kortom: Marie Curiestraat 32 is een woning die werkelijk alles biedt: ruimte, luxe en comfort, op een toplocatie in Almere. Helemaal af, je hoeft alleen nog maar te verhuizen!

Kenmerken