Beschrijving

Staat Makelaars biedt aan: Een unieke kans! Stijlvol appartement op de bovenste verdieping met heerlijk uitzicht en luxe afwerking. De prijs betreft een keurige beiden vanaf prijs..

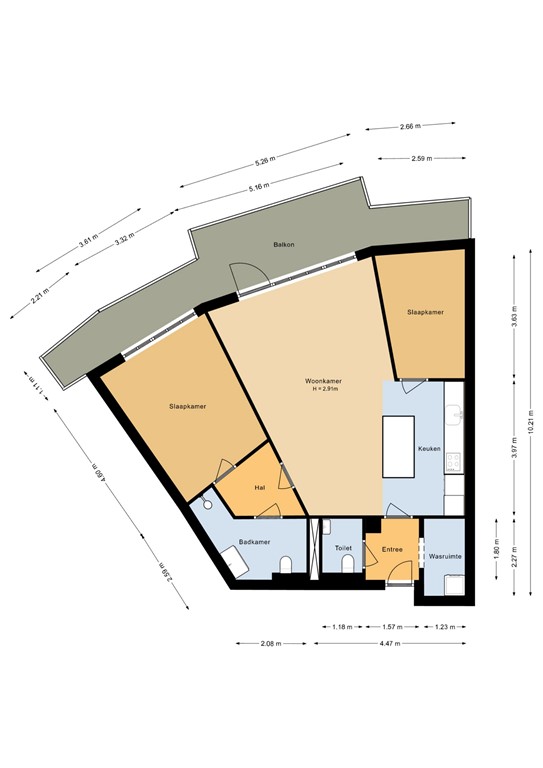
Welkom aan de Louis Armstrongweg 60-D: een appartement dat luxe, comfort en een perfect uitzicht samenbrengt. Dit moderne appartement, gelegen op de hoogste etage, biedt alles wat je zoekt in een thuis. Met een eigen ruim balkon op het oosten en een gezamenlijk dakterras in het appartementencomplex, geniet je hier van het ultieme buitenleven.

Smaakvolle details en optimaal comfort:
Bij binnenkomst via de ruime hal wordt meteen de toon gezet: een stijlvolle afwerking en praktische indeling. Hier bevindt zich een modern toilet en een handige kast met aansluitingen voor de wasmachine en droger.

De royale woonkamer is een absolute eyecatcher. De prachtige visgraatvloer geeft de ruimte een warme, luxe uitstraling, terwijl de strakke wand- en plafondafwerking zorgt voor een moderne en frisse look. De deuren in het appartement zijn voorzien van stijlvolle accenten en keurige zwarte grepen, wat de moderne uitstraling helemaal afmaakt.

De zwarte keuken is een droom voor kookliefhebbers. Voorzien van alle moderne inbouwapparatuur, zoals een oven, vaatwasser, koelkast en inductiekookplaat, biedt deze keuken zowel stijl als gemak. Een extra blikvanger is de vrijstaande keukenbar, waar je gezellig aan kunt plaatsnemen. Perfect om tijdens het koken in gesprek te blijven met familie of vrienden.

Ruime en lichte slaapkamers:
Dit prachtige appartement beschikt over twee ruime slaapkamers, beide voorzien van dezelfde strakke wand- en plafondafwerking en de luxe visgraatvloer die in het gehele appartement doorloopt. De slaapkamers bieden volop mogelijkheden: van een comfortabele hoofdslaapkamer tot een stijlvolle werkplek of logeerkamer. De grote ramen zorgen voor veel natuurlijke lichtinval en dragen bij aan een aangename sfeer in beide ruimtes. Met voldoende ruimte voor kasten en persoonlijke inrichting creëer je hier eenvoudig jouw ideale plek om tot rust te komen.

Ruime badkamer en ultiem woongemak:
De badkamer van groot formaat is een waar luxe paradijs. Hier vind je een heerlijke inloopdouche, een tweede toilet en een moderne wastafel, allemaal uitgevoerd in hoogwaardige materialen. De ruimte biedt een oase van rust en comfort, ideaal voor een ontspannen begin of einde van de dag.

Bovenste etage met uitzicht en gemak:
Als bewoner van dit appartement geniet je van het voordeel van wonen op de hoogste verdieping, wat een prachtig uitzicht over de wijk biedt. Zowel beneden als boven is een berging aanwezig, ideaal voor het opbergen van bijvoorbeeld fietsen of andere spullen.

Buiten genieten in alle comfort:
Het privé balkon op het oosten is de perfecte plek om in de ochtendzon te genieten van een kop koffie. Dankzij de glazen schermen zit je hier heerlijk uit de wind en kun je optimaal genieten van het buiten zijn, ongeacht het weer. Het gezamenlijke dakterras biedt extra mogelijkheden voor gezellige momenten met buren of vrienden.

Bijzonderheden:
- Luxe visgraatvloer
- Strakke wand- en plafondafwerking
- Stijlvolle deuren met zwarte accenten en grepen
- Moderne zwarte keuken met inbouwapparatuur én vrijstaande bar
- Grote badkamer met inloopdouche en tweede toilet
- Eigen balkon op het oosten én een gedeeld dakterras
- Gelegen op de hoogste etage met prachtig uitzicht, lift aanwezig.
- Handige bergingen op zowel de begane grond als de verdieping

Dit appartement is meer dan een woning; het is een lifestyle. Maak snel een afspraak om dit unieke appartement zelf te ervaren!

Kenmerken