Beschrijving

Staat Makelaars biedt aan: Lastdragerstraat 72 in Almere (Oostvaardersbuurt). Een verrassend ruime gezinswoning met 4 slaapkamers, eigen parkeergelegenheid en een zonnige tuin!
Deze woning wordt u aangeboden middels een bieden-vanaf-prijs.

Welkom aan de rand van de geliefde Oostvaardersbuurt! Deze uitstekend onderhouden woning combineert ruimte, comfort én een heerlijke ligging nabij natuur en voorzieningen. Met maar liefst vier slaapkamers, een zonnige tuin op het zuidoosten en parkeergelegenheid voor twee auto’s op eigen terrein is dit de ideale woning voor gezinnen die nét dat beetje extra zoeken.

De ligging is werkelijk perfect: rustig en kindvriendelijk, met het Kotterbos en natuurgebied De Oostvaardersplassen letterlijk om de hoek. Hier geniet u dagelijks van prachtige wandelingen en fietstochten. Tegelijkertijd woont u centraal ten opzichte van uitvalswegen (A6/A27), het NS- en busstation Oostvaarders (op loopafstand), scholen, supermarkt en een gezondheidscentrum. Bouwjaar: 2001.

Begane grond:
U betreedt de woning via de hal met meterkast, trapopgang en een nette toiletruimte met hangend toilet en fonteintje. Vanuit hier bereikt u de riante, tuingerichte woonkamer met een prettige lichtinval en voldoende ruimte voor een royale zithoek.

Aan de voorzijde bevindt zich de moderne keuken, voorzien van diverse inbouwapparatuur en een verzorgde uitstraling. De gehele begane grond is afgewerkt met een lichte laminaatvloer en beschikt over een praktische trapkast voor extra bergruimte.

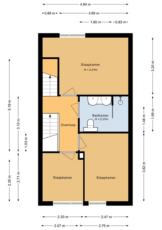
Eerste verdieping:
De ruime overloop geeft toegang tot drie volwaardige slaapkamers. De royale ouderslaapkamer aan de achterzijde is woningbreed en biedt volop comfort. De twee overige slaapkamers bevinden zich aan de voorzijde en zijn ideaal als kinder-, werk- of hobbykamer.

De badkamer is ruim opgezet en modern uitgevoerd, voorzien van een inloopdouche, tweede toilet en een dubbele wastafel.

Tweede verdieping:
Een verrassend ruime verdieping, verdeeld in twee functionele ruimtes. De voorzolder biedt plaats aan de cv-installatie, wasmachine- en drogeraansluiting én veel bergruimte.
De vierde slaapkamer is ruim van formaat en dankzij de dakkapel aan de voorzijde heerlijk licht – een volwaardige extra kamer!

Tuin:
De onderhoudsvriendelijke achtertuin is gelegen op het zuidoosten, waardoor u hier optimaal geniet van de zon. De tuin is volledig bestraat en voorzien van een houten berging en een handige achterom – ideaal voor fietsen en extra opslag.

Bijzonderheden
- Parkeergelegenheid voor 2 auto’s op eigen terrein (incl. carport)
- Op loopafstand van NS- en busstation Oostvaarders
- Ruime gezinswoning met 4 slaapkamers
- Gelegen nabij natuurgebied De Oostvaardersplassen en het Kotterbos
- Keurig onderhouden en instapklaar

Kenmerken