Beschrijving

Staat Makelaars presenteert: Kruidnagelstraat 1 in Almere Wij bieden deze charmante hoekwoning aan middels een bieden-vanaf-prijs.

Deze ruime en verzorgde woning ligt in de geliefde Kruidenwijk en beschikt over maar liefst vier slaapkamers (eventueel 5e te creëren), een strakke achtertuin, een garage en een parkeerplek op eigen terrein. De ligging is ideaal: op loopafstand vindt u een supermarkt, basisschool, kinderopvang en openbaar vervoer. Bovendien ligt het Beatrixpark om de hoek, een heerlijke plek om te sporten, te skaten of gewoon te genieten van een fijne wandeling. Binnen enkele minuten fietsen staat u al in Almere Centrum.

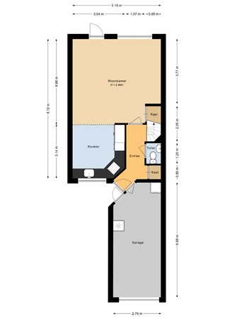
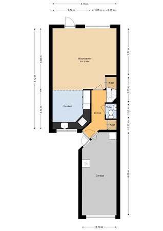
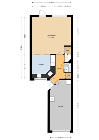
Voortuin en garage:
Via de strakke voortuin bereikt u de voordeur. De garage is van buitenaf op twee manieren toegankelijk en biedt volop ruimte voor een auto, motor of extra opslag. Wilt u de ruimte liever gebruiken als praktijk of hobbyruimte? Dat behoort zeker tot de mogelijkheden! En parkeert u liever buiten, dan kan dat gewoon op eigen terrein.

Begane grond:
Binnenkomst in de ruime hal met toilet, trapopgang naar de eerste verdieping en een binnendoor naar de garage. Vervolgens betreedt u de lichte, tuin gerichte woonkamer met grote raampartijen waardoor de ruimte heerlijk open en licht aanvoelt.

De open keuken aan de voorzijde is in 2021 vernieuwd en voorzien van moderne inbouwapparatuur. De pvc-vloer op de begane grond, eveneens uit 2021, zorgt voor een stijlvolle en onderhoudsvriendelijke basis. Dankzij de kunststof kozijnen is het geheel bovendien energiezuinig en onderhoudsarm.

Eerste verdieping:
Overloop met toegang tot drie ruime slaapkamers en de badkamer. De badkamer is voorzien van een douche, toilet, wasmachineaansluiting en wastafel. De badkamer is eenvoudig te upgraden zodat u een eigen wellness creëert thuis.

Tweede verdieping:
Via de vaste trap bereikt u de zolderverdieping. Deze ruimte wordt nu als inpandige ruimte gerekend vanwege het beperkte daglicht, maar met een dakkapel of extra dakramen creëert u hier eenvoudig een volwaardige vierde slaapkamer of fijne werkplek. De zolder is officieel gemeten als overige inpandige ruimte. Deze behoord in het meetrapport ook toe aan overige inpandige ruimte á 20,6m2. Wij hebben de oppervlakte op dit moment toegevoegd aan woonoppervlakte, gezien de mogelijkheid er is om deze daar makkelijk aan toe te voegen.

Tuin:
De achtertuin is enkele jaren geleden opnieuw aangelegd en volledig onderhoudsvrij ingericht met moderne bestrating en een nette schutting. Dankzij het zonnescherm geniet u hier op zonnige dagen van een heerlijke schaduwplek.

Bijzonderheden
- Keuken vernieuwd in 2021
- Pvc-vloer op de begane grond (2021)
- Kunststof kozijnen
- Hoekwoning met veel lichtinval
- Parkeren op eigen terrein
- Nabij het Beatrixpark
- 4 slaapkamers mogelijk
- Dicht bij diverse voorzieningen

Kenmerken