Beschrijving

Kamerlingh Onnestraat 53 in Nobelhorst, wordt aangeboden middels een keurige bieden-vanaf-prijs. Een ruim en sfeervol familiehuis met volop mogelijkheden in het kindvriendelijke Nobelhorst!

Al bij aankomst ervaar je de warme uitstraling van deze woning. Via de keurige voortuin wordt je welkom geheten door een modern en verzorgd woonhuis. In de voortuin is ruimte om te parkeren, en bovendien is de mogelijkheid aanwezig om in de toekomst een laadpaal te plaatsen voor elektrisch rijden.

Begane grond:
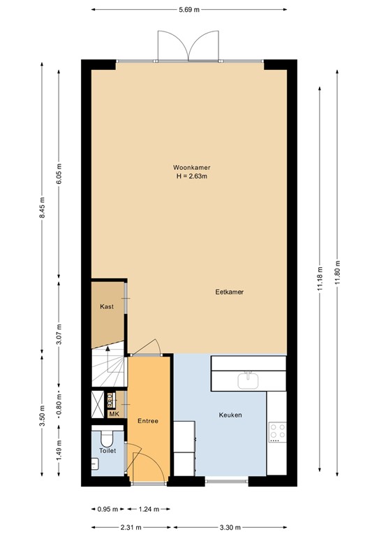
Je betreedt de woning via een nette hal tegelvloer. Deze royale tegels geven direct een imposante uitstraling en zorgen voor een stijlvolle basis. In de hal vind je de trapopgang naar de eerste verdieping en een keurig toilet.

De woonkamer is ruim opgezet, breed én diep, waardoor er volop plek is voor een royale zithoek en een eettafel. Dankzij de grote ramen is er veel lichtinval en via de achterzijde heb je toegang tot de heerlijke zuidwest gelegen tuin. Hier geniet je de hele dag van de zon. 

Achter de tuin ligt bovendien een autovrij speelhofje, ideaal voor kinderen om veilig te spelen in de buurt.

Aan de voorzijde van de woning bevindt zich de open keuken, uitgevoerd met een gezellige bar. Alle benodigde inbouwapparatuur is aanwezig, zodat je hier direct de lekkerste gerechten kunt bereiden.

Eerste verdieping:
Op de eerste verdieping bevinden zich drie riante slaapkamers: twee aan de achterzijde en één aan de voorzijde van de woning. De kamers zijn stuk voor stuk ruim en licht.

De badkamer is momenteel eenvoudig ingericht met een douche, wastafel en tweede toilet. Met een paar aanpassingen, denk aan een glazen douchewand, een modern wastafelmeubel en strak stucwerk – maak je hier eenvoudig een luxe en eigentijdse ruimte van.

Tweede verdieping:
De zolderverdieping is één grote, open ruimte en biedt volop mogelijkheden. Je kunt hier eenvoudig nog twee slaapkamers creëren, of juist kiezen voor een grote master bedroom met een apart wasgedeelte. De ruimte is flexibel in te delen en helemaal naar eigen wens te benutten.

Buiten:
De achtertuin is zonnig gelegen op het zuidwesten en biedt ruimte voor zowel een loungehoek als een eettafel. Dankzij de ligging en het achtergelegen hofje is dit een heerlijke plek voor gezinnen.

De omgeving – Nobelhorst:
Wonen in Nobelhorst betekent wonen in een moderne, kindvriendelijke wijk met een dorpse sfeer. Er zijn volop speelgelegenheden, groene hofjes en gezamenlijke voorzieningen. Je vindt er basisscholen, kinderopvang en sportverenigingen in de buurt, evenals gezellige buurtinitiatieven. Ook de bereikbaarheid is uitstekend: met de auto zit je zo op de A6 richting Amsterdam of Lelystad, en met de fiets ben je snel in het centrum van Almere.

Bijzonderheden:
- Parkeren op eigen erf, met mogelijkheid tot elektrisch laden
- Ruime woonkamer met toegang tot zonnige tuin (ZW)
- Keuken met alle inbouwapparatuur en gezellige bar
- Drie slaapkamers op de eerste verdieping
- Badkamer eenvoudig maar met veel potentie
- Grote zolder met volop indelingsmogelijkheden
- Kindvriendelijke ligging aan hofje in Nobelhorst

Kortom: Kamerlingh Onnestraat 53 is een instapklare woning met veel ruimte, een zonnige tuin en volop uitbreidingsmogelijkheden. Een heerlijke plek waar je direct kunt wonen én waar je stap voor stap je eigen droomhuis van maakt.

Kenmerken