Beschrijving

Staat Makelaars biedt aan: Julistraat 75 in Almere. Instapklare eengezinswoning met 4 slaapkamers, zonnige tuin (ZW) en dakkapel

Welkom aan de Julistraat 75 in Almere! Deze ruim opgezette en goed onderhouden eengezinswoning ligt in een rustige en kindvriendelijke woonomgeving. Met een royale woonkamer, vier volwaardige slaapkamers, een praktische zolderverdieping, een zonnige tuin op het zuidwesten en een extra grote berging is dit de ideale gezinswoning.

Begane grond:
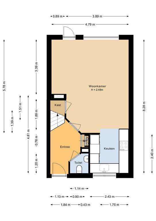
Via de verzorgde voortuin bereik je de woning. Je komt binnen in de hal met toilet, meterkast en trapopgang. Vanuit de hal stap je de lichte woonkamer binnen. De woonkamer heeft een rustige, keurige uitstraling, is voorzien van een laminaatvloer en heeft dankzij de grote raampartij aan de achterzijde een heerlijke lichtinval.

Aan de voorkant van de woning bevindt zich de open keuken, welke is uitgerust met alle benodigde inbouwapparatuur. Via de deur aan de achterzijde kom je in de zonnige, op het zuidwesten gelegen achtertuin. Hier vind je een nette overkapping met toegang tot de schuur. Via deze schuur is de achtergelegen steeg eenvoudig bereikbaar.

Eerste verdieping:
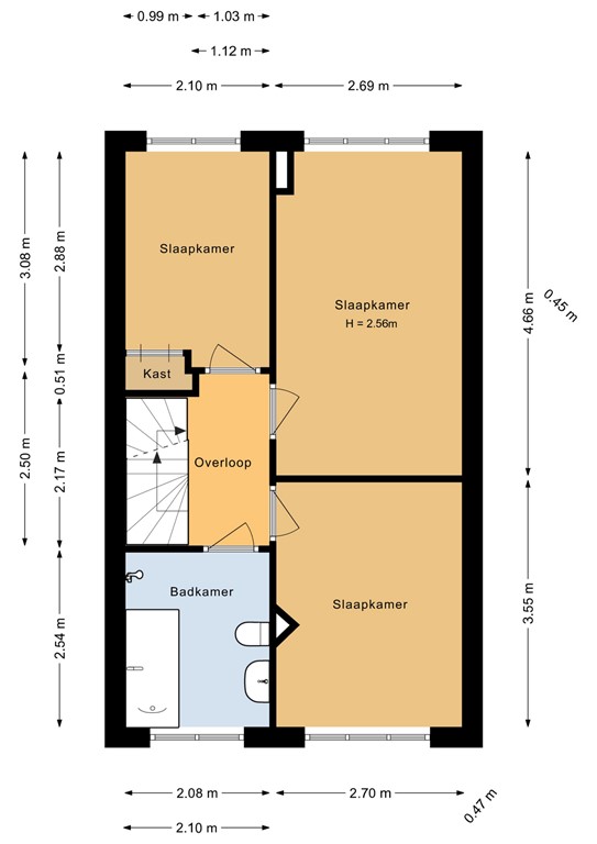
Op de eerste verdieping bevinden zich drie slaapkamers, waarvan één aan de voorzijde van de woning en twee aan de achterzijde. Alle kamers zijn praktisch van formaat en goed in te delen, waardoor ze geschikt zijn als kinderslaapkamer, werkruimte of hobbykamer. De badkamer is compleet ingericht en voorzien van een inloopdouche, ligbad, toilet en wastafelmeubel. Een fijne en functionele ruimte waar je comfortabel de dag begint en eindigt.

Tweede verdieping:
De tweede verdieping biedt verrassend veel ruimte door het geplaatste kunststof dakkapel. Op de voorzolder vind je de wasruimte en extra bergruimte. Aansluitend is er een vierde slaapkamer, die dankzij het dakkapel heerlijk licht en ruim aanvoelt. Deze verdieping is volledig voorzien van een laminaatvloer en keurig afgewerkt. In de slaapkamer is bovendien een airco-unit geplaatst voor extra comfort. Tot slot is er op zolder een extra toilet aanwezig, wat de verdieping bijzonder praktisch maakt.

Omgeving:
De Julistraat ligt in een rustige en kindvriendelijke woonwijk in Almere, met alle dagelijkse voorzieningen binnen handbereik. Op korte afstand vind je diverse supermarkten, basisscholen, speelplekken en sportfaciliteiten. De wijk is ruim opgezet en staat bekend om zijn groene karakter en prettig woonklimaat.

Ook de bereikbaarheid is uitstekend. Binnen enkele minuten fiets je naar station Almere Buiten en de busverbindingen brengen je snel naar andere delen van de stad. Met de auto zit je zo op de uitvalswegen naar de A6 en A27, waardoor steden als Amsterdam, Utrecht en Lelystad makkelijk bereikbaar zijn. Daarnaast liggen recreatiegebieden, wandelroutes en parken op korte afstand, waardoor je zowel rust als gemak in de directe omgeving ervaart.

Sterke punten van de woning:
- Instapklare eengezinswoning
- 6 zonnepanelen
- Vier ruime slaapkamers
- Kunststof dakkapel voor extra ruimte en licht
- Zonnige achtertuin op het zuidwesten
- Nette overkapping met doorgang naar de schuur
- Extra berging in de achtertuin, ideaal voor motorstalling
- Lichte woonkamer met grote raampartij
- Keurige laminaatvloeren door de hele woning
- Complete badkamer met ligbad, douche en toilet
- Tweede toilet op de zolderverdieping
- Airco op zolder voor extra comfort
- Rustige, kindvriendelijke omgeving
- Goede verbindingen met openbaar vervoer en uitvalswegen

Kenmerken