Beschrijving

Staat Makelaars biedt aan: Jarenweg 69 in Almere, middels een keurige bieden vanaf prijs. Ruimte, comfort en een groene omgeving, hier komt alles samen!

Deze prachtige woning aan de Jarenweg 69 ligt in een rustige en kindvriendelijke woonwijk in Almere. De buurt staat bekend om zijn groene karakter: brede straten, verzorgde voortuinen en veel bomen en plantsoenen zorgen voor een prettige en natuurlijke leefomgeving. Op korte loopafstand vind je diverse speelplekken voor kinderen, terwijl het nabijgelegen park ideaal is voor een wandeling of een rondje met de hond.

Qua voorzieningen zit je hier uitstekend: op slechts enkele minuten bereik je meerdere supermarkten, winkels en horecagelegenheden. Voor een uitgebreider aanbod ben je binnen tien minuten in het bruisende stadshart van Almere, met zijn gevarieerde winkelcentrum, restaurants, theater en bioscoop.

Ook qua bereikbaarheid zit je goed. Het busstation ligt op loopafstand, waardoor je binnen korte tijd in Almere Centrum of richting Amsterdam bent. Met de auto rijd je in enkele minuten naar de uitvalswegen A6 en A27, wat deze locatie ideaal maakt voor forenzen.

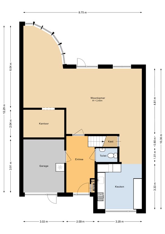
Begane grond:
Bij aankomst valt direct de keurig vernieuwde voortuin (2020) op. Vanuit hier heb je niet alleen toegang tot de voordeur, maar ook tot de garage. Binnenkomend via de voordeur stap je de hal in, met toegang tot het toilet, de garage (ook van binnenuit bereikbaar) en de trapopgang naar de eerste verdieping.

De woonkamer is ruim, licht en sfeervol. Dankzij de gezellige serre aan de achterzijde ontstaat er een perfecte plek voor een eettafel. Aan de achterzijde geniet je van een breed uitzicht over de royale achtertuin van ruim 100 m², eveneens vernieuwd in 2020. Deze is verzorgd aangelegd, beschikt over een vrijstaande houten berging en een achterom. Voor de warme zomerdagen is er een elektrisch zonnescherm (2016). Extra comfort wordt geboden door de vloerverwarming op de begane grond.

De keuken, gelegen aan de voorzijde, is eveneens ruim opgezet. Hier kun je met gemak een extra eettafel plaatsen. De meeste apparatuur is tussentijds vernieuwd, waardoor koken hier niet alleen praktisch, maar ook modern en comfortabel is.

Daarnaast is er nog een praktische werkkamer, die bereikbaar is vanuit de woonkamer. Deze ruimte is ontstaan doordat de garage is opgesplitst in een werkruimte en een garage. Vanuit de hal bereik je de garage, en via de woonkamer stap je de werkkamer binnen. Ideaal als thuiskantoor, hobbyruimte of speelkamer.

Eerste verdieping:
De eerste verdieping biedt drie ruime slaapkamers: één aan de voorzijde en twee aan de achterzijde. De slaapkamer aan de voorzijde heeft als extra pluspunt een directe doorgang naar de badkamer.
De badkamer is zowel vanuit deze slaapkamer als vanuit de overloop bereikbaar. Deze is compleet uitgerust met een ligbad, aparte douche, toilet en een breed wastafelmeubel met dubbele wasbak.

Tweede verdieping:
Op de tweede verdieping vind je een royale zolder, slim ingedeeld in twee gedeeltes. Aan de achterzijde is een vierde slaapkamer gerealiseerd, voorzien van een groot raam dat veel licht binnenlaat.
Het andere gedeelte is in gebruik als was- en bergruimte, eveneens met een groot raam voor natuurlijk licht. Hier bevinden zich ook de aansluitingen voor de wasmachine en droger, plus de omvormer voor de 12 zonnepanelen (2021, eigendom).

Onderhoud en afwerking:
De woning is uitstekend onderhouden en door de jaren heen op diverse punten vernieuwd:
- Schilderwerk buitenzijde uitgevoerd in augustus 2025
- Spachtelputz wanden in de hele woning vernieuwd in 2003
- Zonnescherm elektrisch, geplaatst in 2016
- Keukenapparatuur tussentijds vernieuwd
- Garage opgesplitst in werkruimte en garage (beide bereikbaar vanuit woning)
- Zonnepanelen (12 stuks, eigendom) geplaatst in 2021
- Achtertuin en voortuin vernieuwd in 2020
- CV-ketel (2008, eigendom)
- Dubbel glas: serre in 2009 vervangen, overige ramen in 2025 vernieuwd

Kenmerken