Beschrijving

Staat Makelaars biedt aan: Jan van Goyenstraat 58 in Almere. Heerlijk wonen in Tussen de Vaarten. 

Een heerlijke (hoek)eindwoning met een zonnige tuin op het zuidoosten, veel lichtinval, een eigen parkeerplaats en dat alles op een prachtige plek in Tussen de Vaarten. Hier woon je rustig, met de natuur en het water om de hoek, maar toch met alle voorzieningen binnen handbereik.

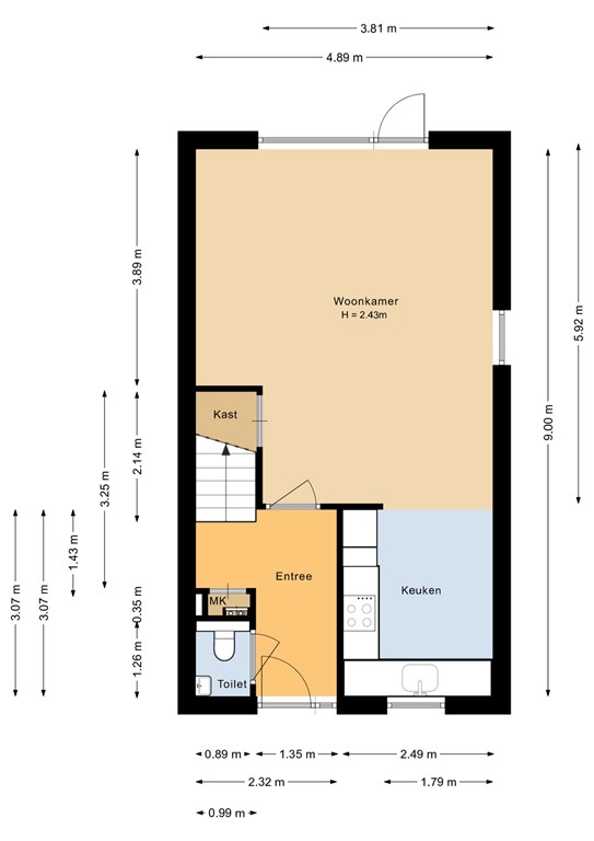
Via je eigen parkeerplek en de nette voortuin stap je de woning binnen. In de hal vind je het toilet en de trapopgang naar boven. Vanuit hier loop je de lichte woonkamer in die verzorgd, sfeervol en met uitzicht op de zonnige achtertuin.

De keuken bevindt zich aan de voorzijde en is voorzien van inbouwapparatuur. Koken met zicht op de straat, eten in de woonkamer en via de tuindeur stap je zó de achtertuin in. De woning ligt op het eind van het rijtje, waardoor je maar aan één zijde buren hebt. Aan de andere kant loopt een steeg, wat zorgt voor extra privacy en een vrij gevoel.

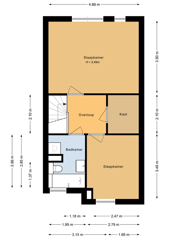
Bovenverdieping:
Op de eerste verdieping vind je twee ruime slaapkamers en een praktische berging. De grote ramen bij de slaapkamer aan de voorzijde lopen van vloer tot plafond en zorgen voor een prachtige lichtinval en een ruimtelijk gevoel.
De grote slaapkamer is eenvoudig op te splitsen in twee ruime slaapkamers.

De badkamer is voorzien van een ligbad, toilet, wastafelmeubel en de aansluiting voor de wasmachine.

Buitenleven:
De achtertuin is echt een fijne plek! Dankzij de ligging op het zuidoosten geniet je hier van de zon van ’s ochtends vroeg tot in de namiddag. De tuin is keurig betegeld, voorzien van een stukje kunstgras en een mooie houten vlonder waar je een gezellig zitje kunt creëren. Verder is er een houten berging voor fietsen en tuingereedschap, en via de achterom loop je zo naar buiten. De schuttingen zijn stevig en onderhoudsarm, met betonnen palen en een betonnen onderrand, ideaal!

De omgeving:
De ligging is perfect voor wie houdt van rust en water. Je woont hier letterlijk tussen de vaart, met wandelpaden, groen en speelgelegenheden in de buurt. Winkels, scholen en openbaar vervoer zijn allemaal dichtbij, en met de motor of auto ben je zo op de uitvalswegen.

In het kort:
- Zonnige tuin op het zuidoosten
- Onderhoudsarme tuin met houten vlonder, berging en achterom
- Eigen parkeerplaats voor de deur
- Slechts aan één zijde buren (hoek/eindwoning)
- Twee slaapkamers en extra berging boven
- Grote raampartijen met veel lichtinval
- Ligging tussen de vaart, rustig en groen
- 10 zonnepanelen, in eigendom
- Buitenzijde woonhuis en deuren zijn opnieuw geschilderd zomer 2025

Kortom:
Jan van Goyenstraat 58 is een verzorgde, lichte woning met een heerlijke tuin en een fijne ligging. Ideaal voor wie comfortabel wil wonen met een vleugje buitenleven! ??
Wil je deze woning met eigen ogen ervaren?
Plan dan snel een bezichtiging – wij laten je met plezier alle pluspunten zien!

Kenmerken