Beschrijving

Staat Makelaars biedt aan, middels een bieden-vanaf-prijs: Jan Rijksenstraat 52 in Almere-Buiten.

Wonen zonder te klussen! Compleet verbouwde gezinswoning met luxe afwerking, drie slaapkamers én twee dakkapellen. Stap binnen in deze instapklare woning aan de Jan Rijksenstraat 52 en laat je verrassen door de kwaliteit en luxe die overal voelbaar is. In de afgelopen jaren is werkelijk alles aangepakt: van strak stucwerk tot nieuwe vloeren met vloerverwarming, van een compleet vernieuwde keuken tot een moderne badkamer, van elektra tot aangelegde tuinen. Hier hoef je echt niets meer te doen – alleen maar genieten!

Begane grond:
De voorgevel laat meteen zien dat dit een verzorgd en eigentijds huis is. Via de keurige hal met modern toilet (recent vernieuwd) kom je binnen in de woonkamer. Hier valt direct de hoogwaardige afwerking op:
Strakke wanden en plafonds, Een luxe grijze tegelvloer met vloerverwarming, Verlaagde plafonddelen met inbouwspots die een chique sfeer creëren, Stijlvolle opdek deuren met moderne handgrepen.

Onder de trap bevindt zich een praktische berging. Aan de voorzijde ligt de moderne keuken: een wit keukenblok met een stoer zwart werkblad, een groot 5-pits gasfornuis inclusief wokbrander, en natuurlijk alle benodigde inbouwapparatuur. Een heerlijke plek voor de kookliefhebber!

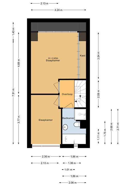
Eerste verdieping:
De eerste verdieping biedt twee royale slaapkamers, beide voorzien van een fraaie houten vloer. De hoofdslaapkamer is aan de achterzijde uitgebouwd met een kunststof dakkapel en voorzien van een op maat gemaakte inbouwkast. Hier past met gemak een groot tweepersoonsbed én extra meubilair. De tweede slaapkamer aan de voorzijde is eveneens ruim en ideaal als kinderkamer, logeerkamer of thuiswerkplek.

De badkamer is compleet vernieuwd en uitgerust met een ruime inloopdouche met regendouchekop, een ligbad, tweede toilet, modern wastafelmeubel, handdoekradiator én vloerverwarming. Luxe en comfort komen hier samen.

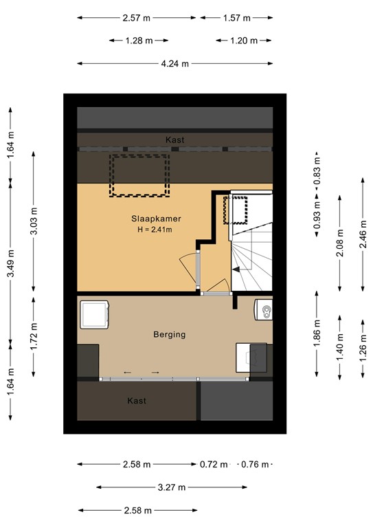
Tweede verdieping:
Op de tweede verdieping is aan de voorzijde een kunststof dakkapel geplaatst, waardoor er volop licht en ruimte is ontstaan. Hier vind je de opstelplaats voor de CV-ketel, mechanische ventilatie en wasmachine/droger, maar ook veel extra bergruimte achter de knieschotten. Aan de achterzijde is nog een derde slaapkamer, met ingebouwde lades en een groot raam. Ook hier ligt een prachtige houten vloer.

Buitenruimte:
Ook buiten is de woning tot in de puntjes verzorgd. De achtertuin is volledig vernieuwd: opgehoogd, opnieuw betegeld en strak aangelegd. Dankzij de ligging op het noordoosten geniet je hier van fijne ochtend- en middagzon. Bovendien is er een houten berging met elektra, ideaal voor je fietsen of als extra klus-/opslagruimte. Uiteraard beschikt de tuin over een handige achterom.

Pluspunten van deze woning:
- In de afgelopen jaren compleet verbouwd en instapklaar
- Luxe keuken met 5-pits gasfornuis en zwart werkblad
- Moderne badkamer met ligbad, inloopdouche, vloerverwarming en tweede toilet
- Drie ruime slaapkamers (mogelijkheid tot vierde)
- Twee kunststof dakkapellen
- Strak stucwerk, nieuwe vloeren en inbouwspots
- Fraai aangelegde voor- en achtertuin

Locatie:
De woning ligt in een rustige, kindvriendelijke straat in Almere-Buiten. Alle voorzieningen zoals scholen, winkels, gezondheidszorg en openbaar vervoer zijn dichtbij. Ook de uitvalswegen richting Amsterdam en Lelystad zijn snel bereikbaar.

Kortom: 
Jan Rijksenstraat 52 is een moderne, luxe afgewerkte gezinswoning waar je direct in kunt trekken. Een huis dat met zorg en oog voor detail is verbouwd – klaar voor de nieuwe bewoners!

Kenmerken