Beschrijving

Staat Makelaars biedt aan: Hermesstraat 19 in Almere Poort – Homeruskwartier
Comfortabel, ruim en energiezuinig wonen in een moderne stadswijk! Bekijk de woningvideo om direct een goede indruk te krijgen van de indeling, sfeer en ruimtes van deze verrassend ruime woning. Deze woning wordt aangeboden middels een bieden-vanaf-prijs. 

In het populaire Homeruskwartier in Almere Poort staat deze fijne en goed ingedeelde gezinswoning met energielabel A. De woning beschikt momenteel over drie volwaardige slaapkamers, maar biedt de mogelijkheid om eenvoudig uit te breiden naar vier of zelfs vijf slaapkamers. De woning kenmerkt zich door een centrale en knusse U-indeling, een ruime keuken, een lange en royale badkamer en een heerlijke achtertuin op het oosten. Een woning waar ruimte, comfort en praktische indeling mooi samenkomen.

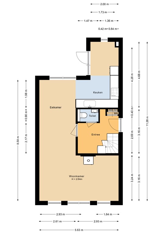
Begane grond
Via de voordeur betreed je de centrale hal, die direct het hart van de woning vormt. Vanuit deze hal heb je toegang tot het toilet, de trapopgang naar boven en de woonkamer. De centrale positie van de hal zorgt voor een prettige, overzichtelijke indeling van de begane grond.

De woonkamer bevindt zich aan de voorzijde van de woning en voelt direct warm en sfeervol aan. Hier vormt de gezellige open haard een echte blikvanger, ideaal voor lange avonden in een ontspannen en huiselijke sfeer. Dankzij de grote raampartijen valt er volop daglicht binnen en ontstaat er een prettige leefruimte.

Aan de achterzijde van de woning bevindt zich de ruime hoekkeuken. De keuken is compleet uitgevoerd en voorzien van diverse inbouwapparatuur, een echt stenen werkblad en veel werk- en opbergruimte. De keuken sluit naadloos aan op de ruime doorloop waar met gemak een grote eettafel geplaatst kan worden. Hierdoor ontstaat een fijne plek waar koken, eten en samenzijn samenkomen.

Via de dubbele openslaande deuren bereik je de achtertuin, waardoor binnen en buiten mooi in elkaar overlopen.

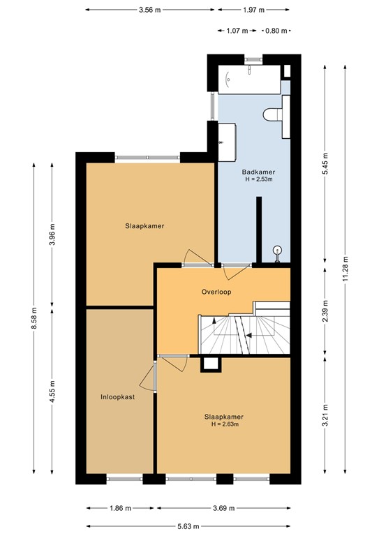
Eerste verdieping
Op de eerste verdieping bevinden zich twee ruime slaapkamers en de badkamer.

De master bedroom ligt aan de voorzijde van de woning en is woningbreed opgezet, waardoor de kamer bijzonder ruim en comfortabel aanvoelt. Aangrenzend bevindt zich een praktische inloopkast/werkruimte, ideaal als kledingkamer of thuiswerkplek. Indien gewenst kan deze ruimte eenvoudig worden teruggebracht tot een derde slaapkamer op deze verdieping.

Aan de achterzijde van de woning bevinden zich de tweede slaapkamer en de badkamer. De badkamer is opvallend ruim en maar liefst circa 5,5 meter lang, waardoor er volop ruimte is voor een royale inloopdouche, ligbad, zwevend toilet en een wastafelmeubel. Een comfortabele en lichte ruimte waar je de dag ontspannen kunt beginnen of afsluiten.

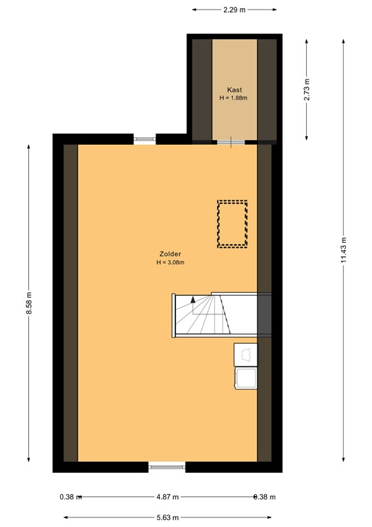
Tweede verdieping
De tweede verdieping is momenteel ingericht als derde slaapkamer met daarnaast ruimte voor opslag en de wasopstelling. Deze verdieping is praktisch ingedeeld en biedt veel mogelijkheden. Door de royale opzet van deze verdieping is het tevens goed mogelijk om hier extra slaapkamers te realiseren, waardoor de woning eenvoudig kan worden uitgebreid naar vier of zelfs vijf slaapkamers.

Grenzend aan deze verdieping bevindt zich bovendien een extra zolderruimte, ideaal als bergruimte. 

Achtertuin 
De achtertuin is gelegen op het oosten, waardoor je hier al vroeg op de dag van de zon kunt genieten. De tuin vormt een fijne verlenging van de leefruimte en biedt voldoende ruimte voor een terras, groen en een gezellige zitplek. Door de openslaande deuren vanuit de keuken voelt de tuin echt als onderdeel van de woning.

Bijzonderheden
- Energielabel A
- 3 volwaardige slaapkamers (mogelijkheid tot 4 of 5)
- Gezellige woonkamer met open haard
- Ruime hoekkeuken met stenen werkblad en inbouwapparatuur
- Dubbele openslaande deuren naar de tuin
- Achtertuin gelegen op het oosten
- Extra ruime zolder / bergzolder
- Gelegen in het populaire Homeruskwartier in Almere Poort

Tot slot
Hermesstraat 19 is een heerlijke gezinswoning met een slimme indeling, veel ruimte en volop mogelijkheden om de woning verder naar wens in te delen. De combinatie van een centrale indeling, een ruime keuken, een grote badkamer en uitbreidingsmogelijkheden maakt dit een woning waar je jarenlang met plezier kunt wonen.

Nieuwsgierig geworden? Neem contact op met Staat Makelaars en plan een bezichtiging. Wij laten je deze woning graag persoonlijk ervaren.

Kenmerken