Beschrijving

Staat Makelaars biedt aan: Hendrik IJzerbrootlaan 15 in Almere. 

Ruimte, licht en een unieke ligging aan het water — welkom bij Hendrik IJzerbrootlaan 15 in de geliefde Stripheldenbuurt van Almere Buiten.

Deze ruime eengezinswoning van 137 m² biedt alles wat je zoekt: een speelse indeling, een heerlijke splitlevel tuin met eigen aanlegsteiger én een rustige ligging aan het water. Daarnaast is de woning ook nog eens energiezuinig met een A-label. De woning wordt aangeboden middels een bieden-vanaf-prijs.

Welkom aan de Hendrik IJzerbrootlaan 15
De Stripheldenbuurt staat bekend om haar kindvriendelijke karakter, brede lanen, veel groen en waterrijke omgeving. Hier woont u rustig, maar met alle voorzieningen binnen handbereik. Scholen, kinderopvang, winkels, sportvelden, bushaltes en NS-station Almere Buiten liggen op korte afstand. Ook de uitvalswegen richting de A6 en A27 zijn vlot bereikbaar.

Indeling
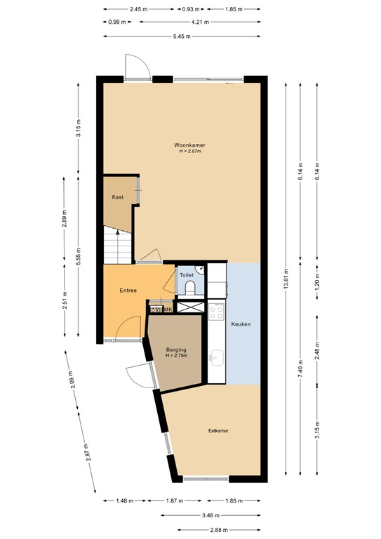
Begane grond
Via de entree bereikt u de hal met toilet, meterkast en trapopgang naar de eerste verdieping.
De tuingerichte woonkamer is ruim en licht, met grote raampartijen en een prachtig uitzicht over het water. Dankzij de berging aan de voorzijde heeft de begane grond een speelse U-vormige indeling, waardoor de keuken centraal in de woning ligt.

De open keuken is modern en praktisch ingedeeld, voorzien van diverse inbouwapparatuur en voldoende werk- en kastruimte. Vanuit de keuken loopt u direct door naar de eetkamer, een sfeervolle ruimte waar u gezellig met familie of vrienden kunt tafelen, terwijl u in contact blijft met zowel de keuken als de woonkamer.

Eerste verdieping
De eerste verdieping beschikt over drie slaapkamers, waarvan twee aan de achterzijde. Tussen deze kamers is een doorbraak gemaakt, waardoor een royale hoofdslaapkamer met inloopkast is ontstaan. De derde slaapkamer bevindt zich aan de voorzijde van de woning. De badkamer is compleet uitgevoerd met een wastafelmeubel, inloopdouche, ligbad en tweede toilet.

Tweede verdieping
Op de tweede verdieping vindt u een ruime overloop met aansluiting voor wasmachine en droger, plus voldoende ruimte voor een werkplek aan huis. Daarnaast bevindt zich hier de vierde slaapkamer, die opvallend ruim is.
Met het plaatsen van een dakkapel is deze verdieping eenvoudig te verdelen in twee volwaardige slaapkamers.

Tuin & buitenruimte
De achtertuin is fraai aangelegd en vormt een verlengstuk van de woonkamer. De tuin is splitlevel uitgevoerd, met drie niveaus die elk hun eigen sfeer bieden. Het bovenste terras grenst direct aan de woning en is ideaal voor een loungeset of eettafel. Via een trapje bereikt u de middelste laag, perfect als speelruimte of tweede zithoek. Helemaal onderaan ligt de steiger aan het water, waar u heerlijk kunt ontspannen of een bootje kunt aanleggen.
De tuin is gelegen op het noordoosten en biedt veel licht, rust en privacy dankzij de vrije ligging aan de achterzijde.

Bijzonderheden
- Woonoppervlakte ca. 137 m²
- Ruime, tuingerichte woonkamer met uitzicht op het water
- Speelse U-indeling met centraal geplaatste keuken
- Vier slaapkamers, met mogelijkheid tot vijfde kamer
- Splitlevel tuin met eigen steiger aan het water
- Energielabel A
- Gelegen in de kindvriendelijke Stripheldenbuurt
- Oplevering in overleg

De locatie
De Stripheldenbuurt is één van de meest gewilde wijken van Almere Buiten. De wijk biedt een perfecte balans tussen rust en bereikbaarheid, met volop groen, speeltuinen, scholen, sportvoorzieningen en water in de directe omgeving. Het centrum van Almere Buiten en station bevinden zich op korte afstand.

Maak kennis met deze complete gezinswoning
Zoekt u een ruime woning met een speelse indeling, een zonnige tuin aan het water en een fijne ligging in de populaire Stripheldenbuurt?
Dan is Hendrik IJzerbrootlaan 15 in Almere absoluut een bezichtiging waard.
Neem vandaag nog contact met ons op — wij laten u deze bijzondere woning graag zien!

Kenmerken