Beschrijving

Staat Makelaars biedt aan: Gustav Hertzstraat 36 in Nobelhorst. Deze woning wordt u aangeboden middels een bieden-vanaf-prijs.

Welkom aan de Gustav Hertzstraat 36, een strak afgewerkte en modern ingerichte hoekwoning in de geliefde Nobelhorst in Almere. Deze jonge wijk staat bekend om haar dorpse karakter, brede straten, veel groen en een prettige leefomgeving voor jong en oud. In de directe omgeving vind je basisscholen, kinderopvang, winkels en horeca. Ook de bereikbaarheid is uitstekend: met goede verbindingen naar de A6 en A27 en openbaar vervoer richting Almere Centrum woon je hier rustig, maar toch zeer centraal.

Bij aankomst valt direct de hoekligging op, wat zorgt voor extra ruimte, privacy en lichtinval. De woning heeft een verzorgde en eigentijdse uitstraling en kenmerkt zich door een strakke afwerking en een keurige, neutrale kleurkeuze die in de gehele woning consequent is doorgevoerd. Daarnaast is er ook aan zonnepanelen gedacht, met 10 stuks op het dak ben je klaar voor de toekomst! Zonnepanelen zijn in eigendom.

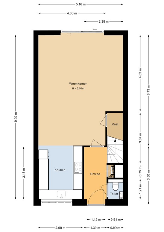
Begane grond:
Via de entree stap je de woning binnen en ervaar je meteen de rustige en moderne sfeer. De begane grond is strak afgewerkt en vormt een prettige leefruimte waarin wonen en ontspannen moeiteloos samenkomen. Dankzij de hoekligging profiteert de woonkamer van extra daglicht, wat zorgt voor een open en ruimtelijk gevoel. Grote raampartijen creëren een fijne verbinding met de tuin en maken dit tot een comfortabele plek om thuis te komen.

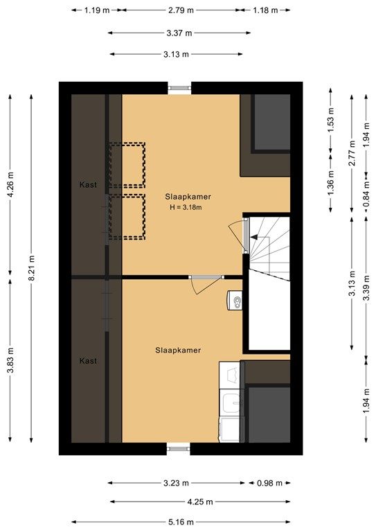
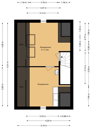
Eerste verdieping:
Op de eerste verdieping bevinden zich twee ruime slaapkamers. Beide kamers zijn keurig afgewerkt en voorzien van een laminaatvloer die doorloopt over de gehele verdieping. De slaapkamer aan de achterzijde beschikt bovendien over een nette inbouwkast, wat zorgt voor extra bergruimte en een opgeruimde uitstraling. 

De badkamer (2024) is compleet uitgevoerd en voorzien van een douche, een toilet en een wasmeubel met dubbele kraan. Een comfortabele en functionele ruimte die perfect aansluit bij het wooncomfort van de woning.

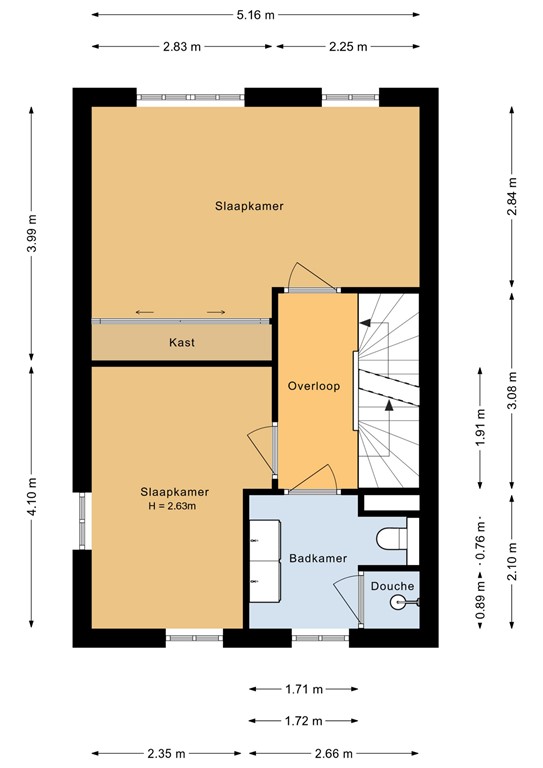
Tweede verdieping:
De vaste trap brengt je naar de tweede etage, die eveneens netjes is afgewerkt en voorzien van een keurige laminaatvloer. Hier bevinden zich twee grote kamers. Eén van deze kamers is ingericht als slaapkamer en beschikt over twee grote dakramen, waardoor er opvallend veel lichtinval is en de ruimte bijzonder prettig aanvoelt. De tweede kamer wordt momenteel gebruikt als wasruimte en herbergt de cv-opstelling, maar is dankzij de afmetingen ook uitstekend geschikt als extra slaapkamer, werkkamer of hobbyruimte. Deze verdieping biedt volop flexibiliteit en maakt de woning geschikt voor uiteenlopende woonwensen.

Tuin:
De achtertuin is gelegen op het zuidoosten, waardoor je hier in de ochtend en middag heerlijk van de zon kunt genieten. De tuin is verzorgd aangelegd en biedt voldoende ruimte voor een terras en groen. Achterin de tuin staat een houten berging, ideaal voor fietsen en tuinspullen. Direct aan de berging is een gezellige overkapping gerealiseerd, waardoor je ook op minder zonnige dagen comfortabel buiten kunt zitten. Dankzij de achterom is de tuin bovendien praktisch bereikbaar.

Samenvattend:
Gustav Hertzstraat 36 is een moderne en instapklare hoekwoning met een strakke afwerking, twee slaapkamers op de eerste verdieping, twee ruime kamers op de tweede verdieping en een zonnige tuin met berging en overkapping. De fijne ligging in Nobelhorst, gecombineerd met de verzorgde afwerking en flexibele indeling, maakt dit een ideale woning voor wie comfortabel en toekomstgericht wil wonen in Almere.

Kenmerken