Beschrijving

Heerlijk wonen aan de Grote Brekkenstraat 21 in Almere. (including the English version underneath, if applicable)
Deze woning wordt u aangeboden middels een bieden-vanaf-prijs.

Wonen met vrij uitzicht, ruimte in en om het huis en alle voorzieningen dichtbij? Aan de Grote Brekkenstraat 21 in Almere vind je deze uitgebouwde eengezinswoning met een verrassend ruime indeling, een zonnige tuin op het zuid-oosten en een vrije ligging aan de voorzijde.

De woning ligt in een rustige, kindvriendelijke woonwijk met veel groen en parkeergelegenheid in de directe omgeving. Wat deze plek extra aantrekkelijk maakt, is de vrije ligging aan de voorzijde: geen directe overburen, maar een ruimtelijk gevoel en vrij uitzicht. Dat betekent niet alleen extra privacy, maar ook een prettige lichtinval in huis. Scholen, supermarkten, speeltuinen en sportvoorzieningen bevinden zich op korte afstand. Ook het centrum van Almere Stad en het NS-station zijn eenvoudig per fiets bereikbaar, terwijl de uitvalswegen richting de Randstad snel en goed toegankelijk zijn. Een ideale combinatie van rust, ruimte en bereikbaarheid.

Begane grond:
De voortuin met vrijstaande stenen berging zorgt voor een praktische entree en extra bergruimte voor fietsen of opslag. Binnenkomst in de hal met toilet en trapopgang naar de eerste verdieping. Vanuit hier stap je de royale woonkamer binnen. Dankzij de uitbouw aan de achterzijde is hier een heerlijke, ruime leefomgeving ontstaan waar je met gemak een grote zithoek én eethoek kunt creëren. De ruimte is afgewerkt met een keurige vloer en nette wand- en plafondafwerking, wat zorgt voor een verzorgde en warme uitstraling.

Aan de voorzijde bevindt zich de keuken, opgesteld met zicht op de straat en voorzien van alle gemakken die je in het dagelijks gebruik nodig hebt. Hier kook je met plezier, terwijl je contact houdt met de omgeving. De houtkachel in de woonkamer vormt een sfeervolle blikvanger en maakt het geheel helemaal af – vooral in de koudere maanden een heerlijke toevoeging aan het wooncomfort.

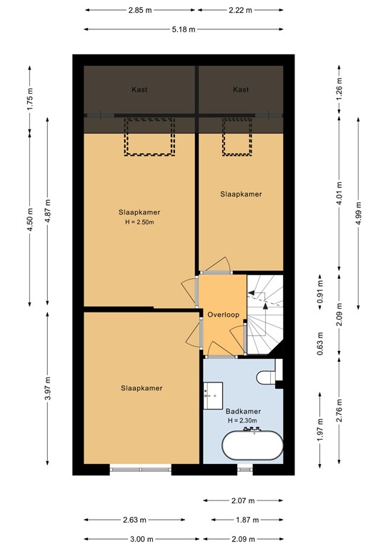
Eerste verdieping:
Op de eerste verdieping bevinden zich drie slaapkamers, stuk voor stuk netjes afgewerkt en goed indeelbaar als slaap-, kinder- of werkkamer. De badkamer is stijlvol vernieuwd en straalt luxe en comfort uit. Hier beschik je over een ligbad, een aparte douche, een toilet en een modern wastafelmeubel. Een complete en eigentijdse ruimte waar functionaliteit en uitstraling perfect samenkomen.

Tweede verdieping:
De tweede verdieping bestaat uit een voorzolder met aansluiting voor de wasmachine en een volwaardige slaapkamer. Deze verdieping biedt daarnaast mogelijkheden voor verdere uitbreiding. In de wijk hebben meerdere woningen gekozen voor het plaatsen van een dakkapel, wat ook hier tot de mogelijkheden behoort. Daarmee creëer je eenvoudig extra ruimte en nog meer wooncomfort.

Tuin:
De achtertuin is gelegen op het zuid-oosten, waardoor je hier volop kunt genieten van de ochtend- en middagzon. Dankzij de achterom is de tuin ook praktisch bereikbaar. Het is een fijne plek om te ontspannen, te tuinieren of gezellig te zitten met familie en vrienden.

Bijzonderheden:
- Nieuwe badkamer met ligbad en douche
- Vrije ligging aan de voorkant van de woning
- Ruime woonkamer i.v.m de grote aanbouw
- Rustige omgeving en perfecte voorzieningen zoals supermarkt en scholen
- Dichtbij het centrum van Almere gelegen
- Kunststof kozijnen

Grote Brekkenstraat 21 is een woning die uitblinkt in ruimte, sfeer en ligging. De vrije positie aan de voorzijde, de uitbouw op de begane grond en de uitbreidingsmogelijkheden maken dit een heerlijk gezinshuis met toekomst.
Ervaar zelf de ruimte en de fijne ligging tijdens een bezichtiging – wij laten je deze woning graag persoonlijk zien.

-------

Wonderful living at Grote Brekkenstraat 21 in Almere.
This property is offered to you via starting price. 

Looking for a home with open views, generous space inside and out, and all amenities close by? At Grote Brekkenstraat 21 in Almere, you will find this extended family home with a surprisingly spacious layout, a sunny south-east facing garden, and an open, unobstructed position at the front.

The property is located in a quiet, child-friendly residential area with plenty of greenery and parking facilities nearby. What makes this location especially attractive is its open frontage: no direct neighbors opposite, but a wonderful sense of space and unobstructed views. This not only provides extra privacy, but also ensures pleasant natural light throughout the home. Schools, supermarkets, playgrounds, and sports facilities are all within short distance. The center of Almere Stad and the train station are easily reachable by bike, while main roads towards the Randstad are quickly and conveniently accessible. An ideal combination of peace, space, and excellent connectivity.

Ground floor:
The front garden with a detached brick storage unit provides a practical entrance and additional storage space for bicycles or other belongings. Upon entering, you arrive in the hallway with a toilet and staircase leading to the first floor. From here, you step into the spacious living room. Thanks to the rear extension, a wonderfully generous living area has been created, easily accommodating both a large seating area and a dining space. The room is finished with a neat floor and well-maintained wall and ceiling finishes, giving it a warm and inviting appearance.

At the front of the house, you will find the kitchen, positioned with a view of the street and equipped with all the conveniences needed for everyday use. It’s a pleasant place to cook while staying connected to the surroundings. The wood-burning stove in the living room is an attractive focal point and completes the atmosphere – especially during the colder months, it adds wonderful comfort and coziness.

First floor:
The first floor features three bedrooms, each neatly finished and versatile enough to serve as a bedroom, children’s room, or home office. The bathroom has been stylishly renovated and radiates luxury and comfort. It includes a bathtub, a separate shower, a toilet, and a modern vanity unit. A complete and contemporary space where functionality and design blend perfectly.

Second floor:
The second floor consists of a landing with a washing machine connection and a full-sized bedroom. This level also offers opportunities for further expansion. Several homes in the neighborhood have opted to install a dormer window, which is also possible here. This would easily create additional space and even more living comfort.

Garden:
The backyard is south-east facing, allowing you to enjoy the morning and afternoon sun to the fullest. Thanks to the rear access, the garden is also practically accessible. It is a lovely place to relax, garden, or enjoy quality time with family and friends.

Special features:
- New bathroom with bathtub and shower
- Open position at the front of the property
- Spacious living room due to the large extension
- Quiet surroundings with excellent amenities such as supermarkets and schools
- Located close to the center of Almere
- PVC window frames

Grote Brekkenstraat 21 is a home that stands out in terms of space, atmosphere, and location. The open frontage, the ground-floor extension, and the expansion possibilities make this a wonderful family home with a bright future.
Come and experience the space and great location for yourself during a viewing – we would be delighted to show you this property in person.

Kenmerken