Beschrijving

Staat Makelaars biedt aan: Fugaplantsoen 7 in Almere - sfeervol, ruim en energiezuinig wonen in de Muziekwijk!
Deze woning wordt u aangeboden middels een bieden-vanaf-prijs.

Welkom bij deze keurig afgewerkte en verrassend ruime eengezinswoning aan het Fugaplantsoen 7, gelegen in de geliefde Muziekwijk van Almere. Hier woont u in een rustige, groene woonomgeving met alle voorzieningen binnen handbereik: scholen, winkels, openbaar vervoer en uitvalswegen richting Amsterdam en het Gooi. Een ideale plek voor wie comfortabel en zorgeloos wil wonen.

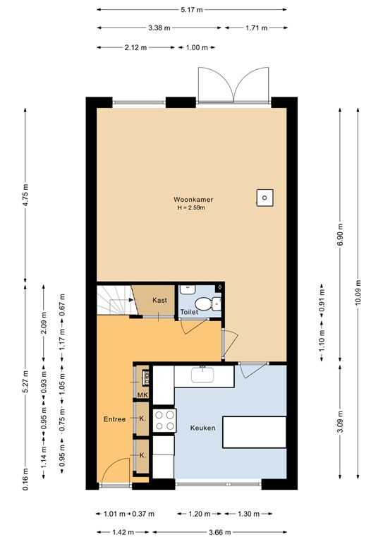
Begane grond
Bij binnenkomst ervaart u direct de warme, landelijke en gezellige uitstraling die door de gehele woning is doorgevoerd. De begane grond beschikt over een gezellige U-indeling, waardoor wonen en koken prettig van elkaar zijn gescheiden, maar toch in verbinding staan.

Aan de voorzijde bevindt zich de ruime woonkeuken met een hoekopstelling en volop kastruimte. Extra sfeervol is de gezellige bar, uitgevoerd in dezelfde afwerking als de keuken, dé plek voor een kop koffie, een goed gesprek of een borrel met vrienden.

De woonkamer ligt aan de achterzijde van de woning en voelt heerlijk knus en comfortabel aan. De haard vormt het warme middelpunt van de ruimte en samen met het fijne uitzicht op de tuin is dit een plek waar u echt tot rust komt. Dankzij de kunststof kozijnen aan de achterzijde is de woning bovendien onderhoudsvriendelijk.

Eerste verdieping
Op de eerste verdieping bevinden zich drie volwaardige slaapkamers. De master bedroom aan de voorzijde valt direct op door het vele daglicht, dankzij de raampartijen aan twee zijden. Aan de achterzijde liggen nog twee slaapkamers, waarvan één is voorzien van de aansluiting voor wasmachine en droger – praktisch en netjes uit het zicht.

De badkamer is vergroot en werkelijk een plek om te ontspannen. Deze is compleet uitgerust met een royaal ligbad, een douche, een toilet en een dubbele wastafel met meubel. Comfort en luxe komen hier perfect samen.

Tweede verdieping
De tweede verdieping is verrassend groot, mede dankzij het dakkapel. Dit is een volwaardige woonlaag met volop mogelijkheden. Er is een wateraansluiting aanwezig, waardoor hier eenvoudig een extra badkamer of wasruimte gerealiseerd kan worden. Daarnaast is de verdieping groot genoeg om eventueel op te splitsen in twee extra slaapkamers. Ideaal voor een groter gezin, thuiswerken of logees.

Buitenruimte
De achtertuin is gelegen op het zuidwesten, wat betekent dat u hier tot in de avond van de zon kunt genieten. Een fijne plek om te loungen, te eten of gewoon lekker buiten te zijn. De tuin sluit perfect aan bij de verzorgde uitstraling van de woning en is te bereiken middels dubbele openslaande deuren.

Bijzonderheden
- Energielabel A
- Kunststof kozijnen aan de achterzijde
- Gezellige U-indeling op de begane grond
- Woonkamer aan de achterzijde met sfeervolle haard
- Drie slaapkamers op de eerste verdieping
- Vergrote luxe badkamer
- Zeer ruime tweede verdieping met dakkapel en uitbreidingsmogelijkheden
- Zonnige tuin op het zuidwesten
- Gelegen in de geliefde Muziekwijk van Almere

Een woning die u gezien móét hebben
Fugaplantsoen 7 is een woning waar sfeer, ruimte en comfort samenkomen. De keurige afwerking, de fijne indeling en de uitstekende ligging maken dit een plek waar u zich direct thuis zult voelen.

Bent u nieuwsgierig geworden?
Maak dan snel een afspraak voor een bezichtiging, deze woning ervaart u het best in het echt!

Kenmerken