Beschrijving

Staat Makelaars biedt aan: Februaristraat 95 in Almere Buiten, middels een bieden-vanaf-prijs.
Wonen aan de Februaristraat betekent comfortabel wonen in een rustige, groene en kindvriendelijke omgeving. Deze fijne tussenwoning geeft je direct het gevoel van thuiskomen, met een praktische indeling en volop mogelijkheden om de woning naar eigen wens in te richten. 

Begane grond:
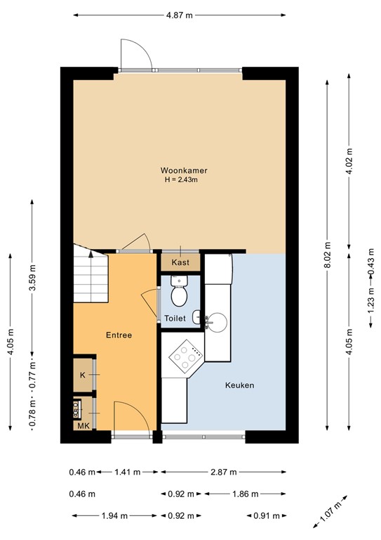
Bij binnenkomst stap je in een nette en lichte woning. De woonkamer is ruim opgezet en biedt meer dan voldoende plek voor een comfortabele zithoek én een grote eettafel. Dankzij de prettige lichtinval voelt de ruimte open en uitnodigend aan, een fijne plek om te ontspannen of gezellig samen te zijn.

Aan de voorzijde van de woning bevindt zich de keuken. Deze is volledig voorzien van inbouwapparatuur en praktisch ingedeeld, waardoor koken hier een plezier wordt. Bovendien heb je vanuit de keuken leuk zicht op de straat.

Via de woonkamer bereik je de achtertuin, gelegen op het zonnige zuidwesten. Hier kun je vrijwel de hele dag genieten van de zon – perfect voor lange zomeravonden en gezellige momenten buiten.

Eerste verdieping:
Op de eerste verdieping bevinden zich twee ruime slaapkamers. Beide kamers zijn van goed formaat en bieden volop mogelijkheden. De slaapkamer aan de achterzijde is extra royaal en kan, indien gewenst, eenvoudig worden opgesplitst in twee aparte kamers, waardoor een derde slaapkamer gerealiseerd kan worden.

De slaapkamer aan de voorzijde beschikt over een vide. Deze ruimte is ideaal te gebruiken als werkplek aan huis, extra bergruimte of bijvoorbeeld een wasruimte – een praktische en veelzijdige toevoeging aan de woning.

De badkamer is functioneel ingericht en voorzien van een douche, wastafel en aansluiting voor de wasmachine.

Omgeving:
De Februaristraat is gelegen in de populaire Seizoenenbuurt in Almere Buiten. Dit is een rustige, kindvriendelijke wijk met veel groen en speelvoorzieningen in de directe omgeving. Hier woon je in een prettige buurt waar rust en gemak samenkomen.

Op korte afstand vind je winkels, supermarkten, scholen, kinderopvang en sportfaciliteiten. Ook het openbaar vervoer en uitvalswegen richting de A6 en A27 zijn goed bereikbaar. Daarnaast zijn er diverse natuur- en recreatiegebieden in de buurt, ideaal voor een wandeling of sportieve activiteiten.

Bijzonderheden:
- Tussenwoning met circa 90 m² woonoppervlak
- Energielabel B
- Keuken aan de voorzijde, volledig voorzien van inbouwapparatuur
- Twee ruime slaapkamers
- Mogelijkheid tot creëren van een derde slaapkamer
- Slaapkamer aan voorzijde met praktische vide
- Zonnige achtertuin op het zuidwesten
- Gelegen in de geliefde Seizoenenbuurt in Almere Buiten

Februaristraat 95 in Almere is een woning met ruimte, mogelijkheden en een fijne ligging. Een huis waar je jouw eigen thuis van kunt maken – absoluut een bezichtiging waard!

Kenmerken