Beschrijving

Staat Makelaars biedt aan: Dick Bosstraat 177 in Almere. Moderne eengezinswoning met 5 slaapkamers, vloerverwarming, zonnige tuin (ZW) en veel extra’s!
Deze woning wordt u aangeboden middels een bieden-van-prijs.

Welkom aan de Dick Bosstraat 177 in de populaire Stripheldenbuurt! Deze verrassend ruime woning is tot in de puntjes onderhouden en voorzien van diverse fijne upgrades. Denk aan een moderne keuken uit 2019, vloerverwarming met een stijlvolle visgraatvloer, 10 zonnepanelen, een slimme indeling met inloopkamer op zolder en op iedere verdieping een toilet. Een perfecte gezinswoning met comfort, ruimte én een heerlijke ligging.

Begane grond:
Je betreedt de woning via de hal met meterkast, toilet en trapopgang naar de eerste verdieping. De woonkamer voelt direct ruim en licht dankzij de grote kunststof raampartijen aan de achterzijde. Deze zorgen voor een mooie verbinding met de tuin. De stijlvolle visgraatvloer (2019) met vloerverwarming geeft de ruimte een luxe uitstraling en is heerlijk comfortabel.

Aan de voorkant van de woning ligt de moderne keuken uit 2019, voorzien van werkelijk alle gemakken: een Quooker (kokendwaterkraan), inductiekookplaat, oven, combi-oven en vaatwasser. Hier kook je met plezier.
De achtertuin is gelegen op het zuidwesten, waardoor je vrijwel de hele dag van de zon geniet. Dankzij de achterom en de praktische berging is dit een heerlijke tuin om te ontspannen en om spullen handig op te bergen.

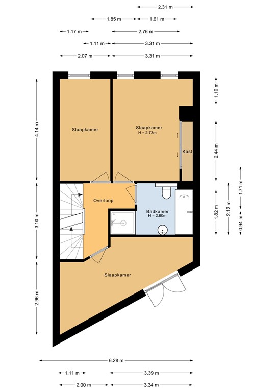
Eerste verdieping:
De eerste verdieping beschikt over drie slaapkamers: twee aan de achterzijde en één aan de voorkant. Alle kamers zijn prettig van formaat en goed in te delen. De badkamer is keurig en voorzien van een douche, ligbad, toilet, wastafelmeubel en vloerverwarming, waardoor je hier comfortabel de dag begint.

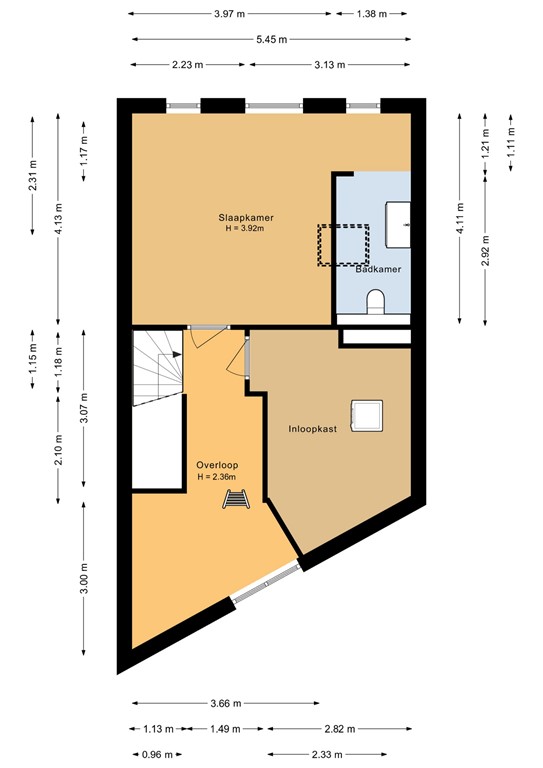
Tweede verdieping:
De tweede verdieping is ingedeeld met twee extra slaapkamers, een riante wasruimte en een praktische inloopkast.

De slaapkamer aan de voorkant heeft een speelse indeling met een slaapplek op een vliering, wat zorgt voor veel extra bruikbare ruimte. De slaapkamer aan de achterkant beschikt zelfs over een eigen wasruimte met toilet, ideaal voor tieners, logees of als zelfstandige werk-/studeerkamer.

Vanuit de wasruimte/inloopkast heb je toegang tot de vliering, perfect om seizoensspullen of bagage netjes weg te zetten.

Sterke punten van de woning:
- Moderne keuken (2019) met luxe apparatuur
- Visgraatvloer met vloerverwarming op de begane grond
- Vloerverwarming in de badkamer
- 5 slaapkamers + inloopkamer/wasruimte
- Zolder met vliering en extra opbergmogelijkheden
- Toilet op iedere verdieping
- 10 zonnepanelen (eigendom)
- Kunststof kozijnen
- Zonnige tuin op het zuidwesten
- Speelse slaapkamer met hoogslaper/vliering
- Slaapkamer met eigen wasruimte en toilet
- Riante wasruimte + inloopkast op zolder
- Kindvriendelijke en groene wijk met alle voorzieningen dichtbij

Omgeving:
De Stripheldenbuurt is een jonge, groene en bijzonder geliefde woonwijk in Almere-Buiten. Alle benodigde voorzieningen bevinden zich in de buurt: supermarkten, basisscholen, kinderopvang, sportverenigingen en diverse speeltuinen. Daarnaast woon je vlak bij natuurgebieden zoals het Kotterbos en de Oostvaardersplassen – perfect voor wandelen, hardlopen of fietsen. Station Almere Buiten is eenvoudig bereikbaar, net als de uitvalswegen richting de A6 en A27. De VvE voor de mandelige delen is aanwezig, maar stil/beheer op de achtergrond.

Kenmerken