Beschrijving

Corsicastraat 22 in Almere is een instapklaar huis met een luxe uitstraling en onderhoudsvriendelijke afwerking. Staat Makelaars biedt deze woning aan middels een keurige bieden-vanaf-prijs.

Welkom aan de Corsicastraat 22! Deze moderne woning is de afgelopen jaren grondig aangepakt: van een volledig vernieuwde begane grond in 2022 tot een moderne badkamer en bovenverdieping in 2018. Met een prachtige keuken, vloerverwarming, onderhoudsarme buitenkant (Keraliet) en een heerlijke tuin is dit een woning waar je zó in kunt trekken.

Begane grond
Eind 2022 is de begane grond volledig onder handen genomen en dat zie je meteen bij binnenkomst. De vloer is voorzien van een stijlvolle visgraat vloer met vloerverwarming, wat zorgt voor een warme en luxe uitstraling.
Alle deuren zijn vernieuwd en geven het geheel een moderne look. De woonkamer is licht, ruim en smaakvol afgewerkt.

De absolute eyecatcher is de nieuwe keuken (2022). Hier vind je alles wat een kookliefhebber zich kan wensen: een inductiekookplaat met geïntegreerde afzuiging, een koelkast, vriezer, oven en vaatwasser. Het strakke design en de praktische indeling maken dit het hart van het huis.

Ook is in 2022 de elektra uitgebreid, zodat de woning helemaal klaar is voor de toekomst.

Eerste verdieping:
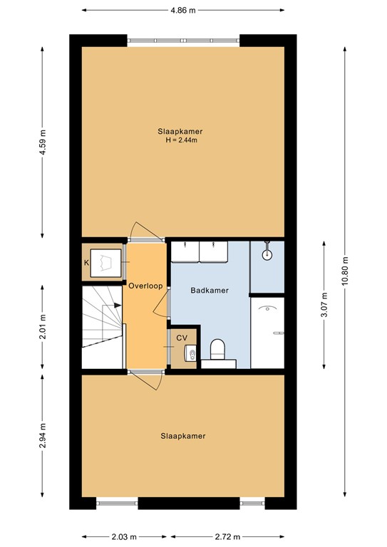
De eerste verdieping verrast met twee riante slaapkamers: één aan de voorzijde en één aan de achterzijde. Beide kamers zijn strak gestuct, voorzien van een nette laminaatvloer en uitgerust met inbouwspots.
Daarnaast is hier een praktische wasruimte aanwezig en een aparte ruimte voor de cv-ketel. Een slimme indeling die zorgt voor gemak en extra opbergruimte.

De badkamer straalt comfort en stijl uit. Alles is keurig en zeer netjes afgewerkt, met een warme en tijdloze kleurstelling die rust en luxe combineert. Hier vind je alles wat je nodig hebt voor een ontspannen start of afsluiter van de dag: een ruim ligbad om heerlijk in weg te dromen, een aparte douche voor het dagelijkse gemak en een toilet. Het moderne wastafelmeubel met dubbele kraan maakt de badkamer extra praktisch, zeker voor een druk gezin in de ochtend. Dankzij de hoogwaardige materialen en verzorgde uitstraling voelt deze badkamer als een kleine wellnessruimte in je eigen huis.

Tuin en buitenzijde:
De tuin is voorzien van een nieuwe schutting, waardoor je hier veel privacy hebt. Achterin staat een berging die extra comfortabel is doordat deze volledig is geïsoleerd en bekleed met onderhoudsvriendelijk Keraliet.
Ook de woning zelf is buitenom in 2022 geschilderd en voorzien van Keraliet: strak, modern en zo goed als onderhoudsvrij.

Pluspunten op een rij:
- Begane grond eind 2022 vernieuwd
- Luxe keuken (2022) met inductiekookplaat en geïntegreerde afzuiging
- Visgraat vloer met vloerverwarming
- Nieuwe deuren door de hele woning
- Badkamer volledig vernieuwd in 2018
- Gehele bovenverdieping in 2018 gerenoveerd
- Twee slaapkamers op de tweede verdieping met strak stucwerk, laminaatvloer en inbouw spots
- Praktische wasruimte en aparte cv-ruimte
- Nieuwe mechanische ventilatie (2021)
- Elektra uitgebreid (2022)
- Buitenzijde geschilderd (2022)
- Onderhoudsvrije Keraliet afwerking aan woning en schuur
- Geïsoleerde schuur
- Nieuwe schutting in de tuin

Tot slot:
Corsicastraat 22 is een woning waar je écht alleen je spullen hoeft neer te zetten. Alles is strak afgewerkt, modern uitgevoerd en voorzien van luxe en praktische details. Dankzij de recente verbouwingen en onderhoudsvriendelijke materialen is dit een huis waar je jarenlang zorgeloos van kunt genieten.

Zie jij jezelf hier al wonen? Maak dan snel een afspraak voor een bezichtiging en ervaar het zelf!

Kenmerken